YO31 0QS - 4 bedroom semidetached house for sale in Woodside Avenue, H…

View on Property Piper

4 bedroom semi-detached house for sale in Woodside Avenue, Heworth, York YO31 0QS, YO31

Summary - 45, WOODSIDE AVENUE, YORK YO31 0QS

4 bed 2 bath Semi-Detached

**Key Features:**
- Extended semi-detached house in Heworth, York
- 4 bedrooms, including 1 potential garden room with en-suite
- Spacious open-plan family room and kitchen
- Large garage and ample parking
- Attractive low-maintenance garden with workshop
- Chain-free sale with no onward complications
- Prominent for family-friendly spaces and potential for customization

Nestled in the sought-after Heworth neighborhood, this extended semi-detached house offers a blend of traditional charm and modern convenience. The spacious open-plan family room and kitchen bathe in natural light thanks to a lantern skylight and double doors that lead to the low-maintenance garden. Ideal for family living, the property features a cosy living room with a feature fireplace, three well-proportioned bedrooms, and a flexible garden room that includes an en-suite shower—a perfect guest suite or study.

With a large garage and additional parking space on the intricately paved forecourt, convenience is at your fingertips. The property is positioned near excellent schools and offers easy access to York’s city amenities, making it perfect for families and potential investors seeking a property with strong rental appeal. Although the home may need some minor updates, its inviting atmosphere and expansion potential make it a valuable find. Don't miss out on this rare opportunity—schedule a viewing today!

Property Details

Brochure Descriptions

Image Descriptions

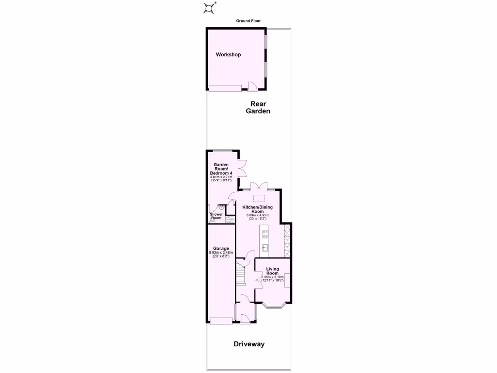
Floorplan Description

Rooms

Textual Property Features

Detected Visual Features

EPC Details

Nearby Schools

Nearest Bars And Restaurants

,,,,}

Nearest General Shops

,,}

Nearest Grocery shops

,,}

Nearest Supermarkets

,,}

Nearest Religious buildings

,,}

Nearest Medical buildings

,,,}

Nearest Leisure Facilities

,,,,}

Nearest Tourist attractions

,,}

Nearest Train stations

,,,,}

Nearest Bus stations and stops

,,,,}

Nearest Hotels

,,}

Tags

Local Market Stats

AirBnB Data

Similar Properties

Meta

High Res Images

Compatible Images

Low res Images

Thumbnails

Raw Images

High Res Floorplan Images

Compatible Floorplan Images

Low res Floorplan Images

FloorplanImages Thumbnail

Raw Floorplan Images