Spacious grounds, outbuildings and peaceful coastal-access village location.
Approx 3.9 acres of grounds including garden and adjoining paddock
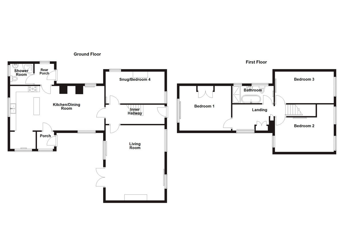
A handsome former farmhouse sensitively updated to retain original character while providing modern comforts. The kitchen/diner is a bright, sociable hub fitted with quartz worktops, an island and high-quality Neff appliances. Two cosy reception rooms both feature multi‑fuel burners and the layout includes a ground-floor shower room and flexible snug that could serve as a bedroom.
Set within about 3.9 acres, the grounds include formal gardens, an adjoining paddock suitable for small-scale equestrian or agricultural use, extensive on-site parking and a substantial range of stone outbuildings including garage, workshop, mezzanine storage and a standalone stone building good for a home office or studio. The size and variety of buildings give genuine scope for hobby farming, storage, or income-generating uses.
Practical points to note: the property uses LPG-fired central heating (not mains gas), has an EPC rating of F and slow broadband speeds. Council tax is in a high band. The house has newly renovated interiors, but the original granite walls are assumed uninsulated and the double glazing install date is unknown — further insulation work may be required. For those seeking a peaceful rural retirement home with substantial land and outbuildings — yet still within reach of coastal walks, local shops and nearby towns — this is a strong and versatile option.
4 bedroom detached house for sale in Rhostrehwfa, Llangefni, Anglesey, LL77 — £599,500 • 4 bed • 1 bath • 2465 ft²
3 bedroom detached house for sale in Gorad, Valley, Holyhead, Isle of Anglesey, LL65 — £740,000 • 3 bed • 3 bath • 2442 ft²
4 bedroom detached house for sale in Llanddeusant, Holyhead, Isle of Anglesey, LL65 — £765,000 • 4 bed • 3 bath • 4223 ft²
4 bedroom farm house for sale in Llanynghenedl, Bodedern, LL65 — £660,000 • 4 bed • 3 bath • 3065 ft²
3 bedroom character property for sale in Tremoelgoch Bach, Llanfachraeth, LL65 — £825,000 • 3 bed • 2 bath • 1292 ft²
4 bedroom detached house for sale in Tyn Lon, Holyhead, Isle of Anglesey, LL65 — £575,000 • 4 bed • 3 bath


























































































































































































