DE4 3AZ - 2 bedroom terraced house for sale in Bakewell Road, Matlock…

View on Property Piper

2 bedroom terraced house for sale in Bakewell Road, Matlock, Derbyshire, DE4

Summary - Bakewell Road, Matlock, Derbyshire, DE4 DE4 3AZ

2 bed 1 bath Terraced

**Standout Features:**
- Attractive Victorian stone fronted facade
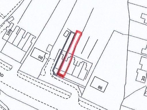
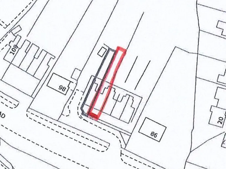
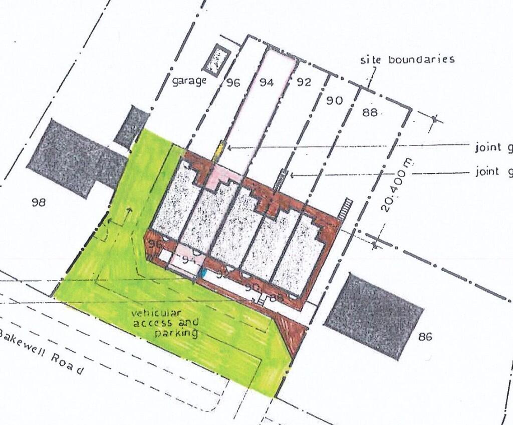
- Elevated position with mature garden
- Off-road parking available
- Two spacious bedrooms with original features
- Scope for renovation and refurbishment
- Close proximity to Matlock's town center and amenities

This charming stone fronted Victorian terraced house presents a fantastic opportunity for renovation enthusiasts and first-time buyers alike. Nestled in an elevated position, the property features two good-sized bedrooms, a spacious open-plan living area, and a well-proportioned bathroom, providing a great foundation for your vision of home. The living space boasts large bay windows that fill the room with natural light, while the delightful mature garden offers a tranquil outdoor haven.

Though the property requires cosmetic updates and some structural repairs (including identified settlement issues), an engineering report is available for review, ensuring transparency for potential buyers. Conveniently located just half a mile from Matlock's town center, you'll enjoy easy access to local shops, schools, and the beautiful Derbyshire countryside. This property represents an incredible canvas for those looking to make their mark in a comfortable, self-sufficient neighbourhood. Act quickly to seize this opportunity, as listings like this don't last long.

**Key Concerns:**
- Cosmetic updates needed
- Structural issues requiring attention

Property Details

Image Descriptions

Floorplan Description

Rooms

Textual Property Features

Detected Visual Features

Nearby Schools

Nearest Bars And Restaurants

,,,,}

Nearest General Shops

,,}

Nearest Grocery shops

,,}

Nearest Supermarkets

,,}

Nearest Religious buildings

,,}

Nearest Medical buildings

,,,}

Nearest Leisure Facilities

,,,,}

Nearest Tourist attractions

,,}

Nearest Train stations

,,,,}

Nearest Bus stations and stops

,,,,}

Nearest Hotels

,,}

Tags

Local Market Stats

AirBnB Data

Similar Properties

Meta

High Res Images

Compatible Images

Low res Images

Thumbnails

Raw Images

High Res Floorplan Images

Compatible Floorplan Images

Low res Floorplan Images

FloorplanImages Thumbnail

Raw Floorplan Images