**Standout Features:**
- Large 4-bedroom, 4-bathroom detached villa
- Newly renovated with contemporary finishes
- Flexible accommodation over three levels
- Generous landscaped gardens with distinct zones
- Spacious driveway with off-street parking
- Luxury leisure space including spa area
- Exceptional location near transport links and amenities
**Potential Concerns:**
- High council tax band (H)
- Area categorized as deprived
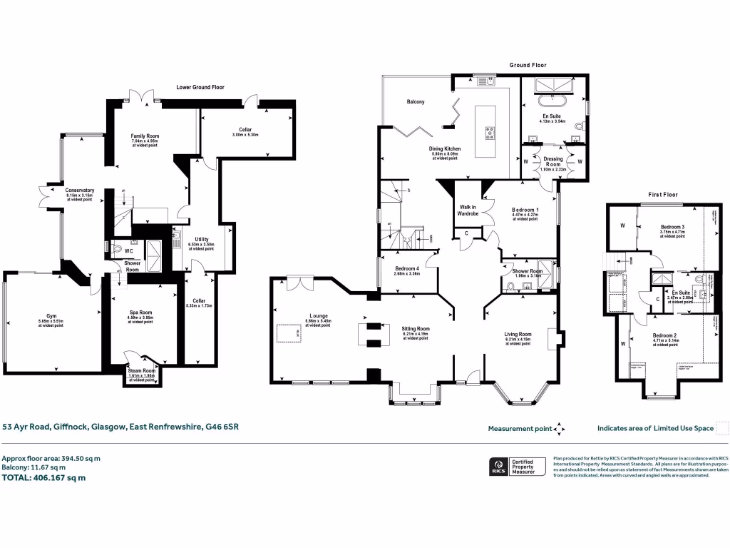
Welcome to this stunning newly renovated detached villa, offering an expansive 4,349 square feet of contemporary living space across three levels. Nestled within beautifully landscaped gardens, this home provides a perfect blend of traditional character and modern conveniences. You'll be greeted by an impressive octagonal reception hallway, leading into a spacious dining room with bay windows and a bright formal lounge featuring a Juliet balcony overlooking the private gardens.
The heart of the home is an elegant kitchen fitted with integrated appliances and stylish finishes, seamlessly connecting to a decked terrace, perfect for entertaining. The principal bedroom is a luxurious retreat complete with two dressing rooms and a beautifully refitted ensuite. Additional highlights include a family/games room, a versatile studio/gym, and a luxurious spa area with a steam room.
Set back from Ayr Road behind secure automated gates, this property ensures both privacy and comfort, making it an ideal family home or a potential haven for investors seeking rental potential in a desirable area. While the high council tax band (H) may be a consideration for some, the expansive space, modern upgrades, and proximity to excellent schools and local amenities make this home a remarkable opportunity. Don't miss your chance to own a piece of modern elegance in an exclusive neighborhood—schedule your viewing today!
4 bedroom detached house for sale in Lethington Road, Giffnock, Glasgow, East Renfrewshire, G46 — £875,000 • 4 bed • 3 bath • 2422 ft²
5 bedroom detached house for sale in Ayr Road, Giffnock, Glasgow, G46 — £1,450,000 • 5 bed • 5 bath • 4951 ft²
4 bedroom detached house for sale in Deramore Avenue, Giffnock, Glasgow, East Renfrewshire, G46 — £745,000 • 4 bed • 4 bath • 2303 ft²
4 bedroom detached house for sale in Langtree Avenue, Giffnock, Glasgow, G46 — £795,000 • 4 bed • 2 bath • 2373 ft²
4 bedroom detached house for sale in Lynebank Grove, Newton Mearns, Glasgow, G77 — £575,000 • 4 bed • 5 bath
4 bedroom detached house for sale in Milverton Road, Giffnock, Glasgow, East Renfrewshire, G46 — £845,000 • 4 bed • 3 bath • 2949 ft²














































































































































































































































