G46 6SL - 4 bedroom detached house for sale in Deramore Avenue, Giffn…

View on Property Piper

4 bedroom detached house for sale in Deramore Avenue, Giffnock, Glasgow, East Renfrewshire, G46

Summary - 5, DERAMORE AVENUE, GLASGOW, GIFFNOCK G46 6SL

4 bed 4 bath Detached

**Standout Features:**
- Spacious and meticulously maintained detached bungalow
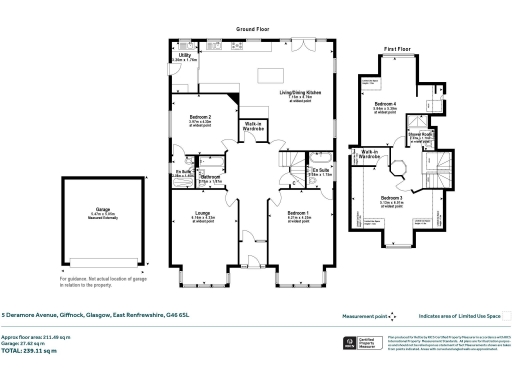
- 4 bedrooms, 4 bathrooms, and 2303 sq ft of living space
- Prime location opposite Whitecraigs Golf Club
- Open-plan kitchen, dining, and family area ideal for entertaining
- Private landscaped garden with paved patio areas
- Excellent off-street parking

**Potential Concerns:**
- Council tax is quite expensive
- Recent minor dispute with neighbors regarding fence placement, informally resolved with no current issues

Nestled in the sought-after suburb of Whitecraigs, this exceptional detached bungalow offers a harmonious blend of modern living with the charm of a well-established community. Boasting a generous 2303 sq ft layout, the home features a stunning octagonal reception hallway, a formal lounge with a bay window, and an expansive open-plan kitchen, perfect for both cozy family gatherings and lively entertaining. With four spacious bedrooms and four bathrooms, including luxurious en-suites, this property meets the needs of families looking for comfort and convenience.

Step outside to enjoy a beautiful private garden, meticulously landscaped with mature borders and paved seating areas, creating a peaceful retreat all year round. The property is well-connected, offering easy access to transport links, excellent schools, and local amenities, affirming its appeal for families and professionals alike. Although the council tax is on the higher side, and a past minor fence dispute exists with a neighbor, this does not detract from the overall allure of this home. Don’t miss your chance to own a slice of this exclusive community—an oasis of comfort awaits.

Property Details

Image Descriptions

Floorplan Description

Rooms

Textual Property Features

Detected Visual Features

Nearest Bars And Restaurants

,,,,}

Nearest General Shops

,,}

Nearest Grocery shops

,,}

Nearest Supermarkets

,,}

Nearest Religious buildings

,,}

Nearest Medical buildings

,,,}

Nearest Airports

,}

Nearest Leisure Facilities

,,,,}

Nearest Tourist attractions

,,}

Nearest Train stations

,,,,}

Nearest Bus stations and stops

,,,,}

Nearest Hotels

,,}

Tags

Local Market Stats

Similar Properties

Meta

High Res Images

Compatible Images

Low res Images

Thumbnails

Raw Images

High Res Floorplan Images

Compatible Floorplan Images

Low res Floorplan Images

FloorplanImages Thumbnail

Raw Floorplan Images