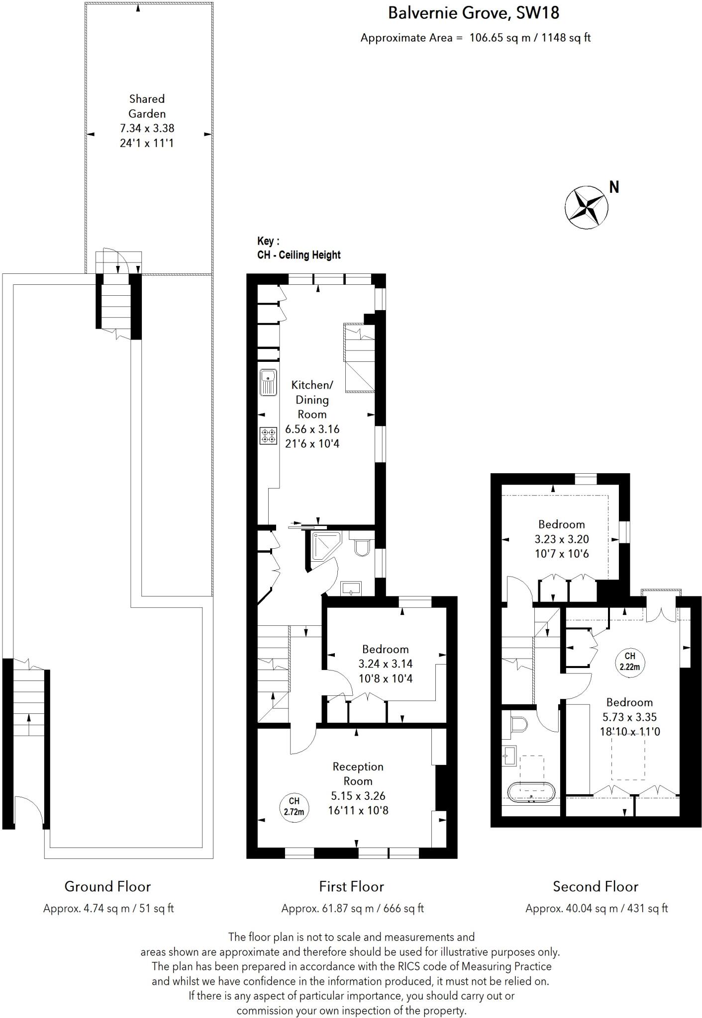
Light-filled two-bath home with private access and shared garden close to schools.
- Three bedrooms and two bathrooms across two levels
- Own private entrance, access to shared garden
- Long lease (944 years) and share of freehold
- Approximately 1,148 sq ft; average-sized rooms
- Solid brick Victorian build; period sash windows
- Double glazing fitted, install date unknown
- Likely no cavity wall insulation; retrofit may be needed
- Small front plot and modest terrace frontage
Set over two well-proportioned floors, this Victorian maisonette offers comfortable family living close to Southfields amenities. The property has three bedrooms and two bathrooms across approximately 1,148 sq ft, with a bright reception room, a modern kitchen with integrated appliances and roof lights indicating additional converted attic space.
Practical benefits include a private street-level entrance, long lease (944 years) with share of freehold, fast broadband and excellent mobile signal. Residents have access to a shared garden for outdoor relaxation; there is no flooding risk and local schools rated Good–Outstanding nearby.
Built c.1900–1929 in solid brick with original sash windows and double glazing (install date unknown), the maisonette retains period character while presenting in good, well-presented condition. Note the property likely has uninsulated solid walls (assumed) and a small plot/frontage typical of terraced London homes — improving wall insulation could be a future upgrade. Council tax is moderate.
3 bedroom maisonette for sale in Midmoor Road, Balham, SW12 — £875,000 • 3 bed • 2 bath • 1104 ft²
2 bedroom maisonette for sale in Balvernie Grove, London, SW18 — £625,000 • 2 bed • 1 bath • 1183 ft²
3 bedroom maisonette for sale in Balvernie Grove, London, SW18 — £700,000 • 3 bed • 2 bath • 970 ft²
2 bedroom flat for sale in Brookwood Road, London, SW18 — £600,000 • 2 bed • 1 bath • 674 ft²
2 bedroom maisonette for sale in Allfarthing Lane, London, SW18 — £600,000 • 2 bed • 1 bath • 746 ft²
2 bedroom apartment for sale in Brookwood Road, London, SW18 — £550,000 • 2 bed • 1 bath • 635 ft²






































