Light-filled two-bedroom flat in Hayfield’s historic centre, chain free.
Recently fully renovated throughout, ready to move into
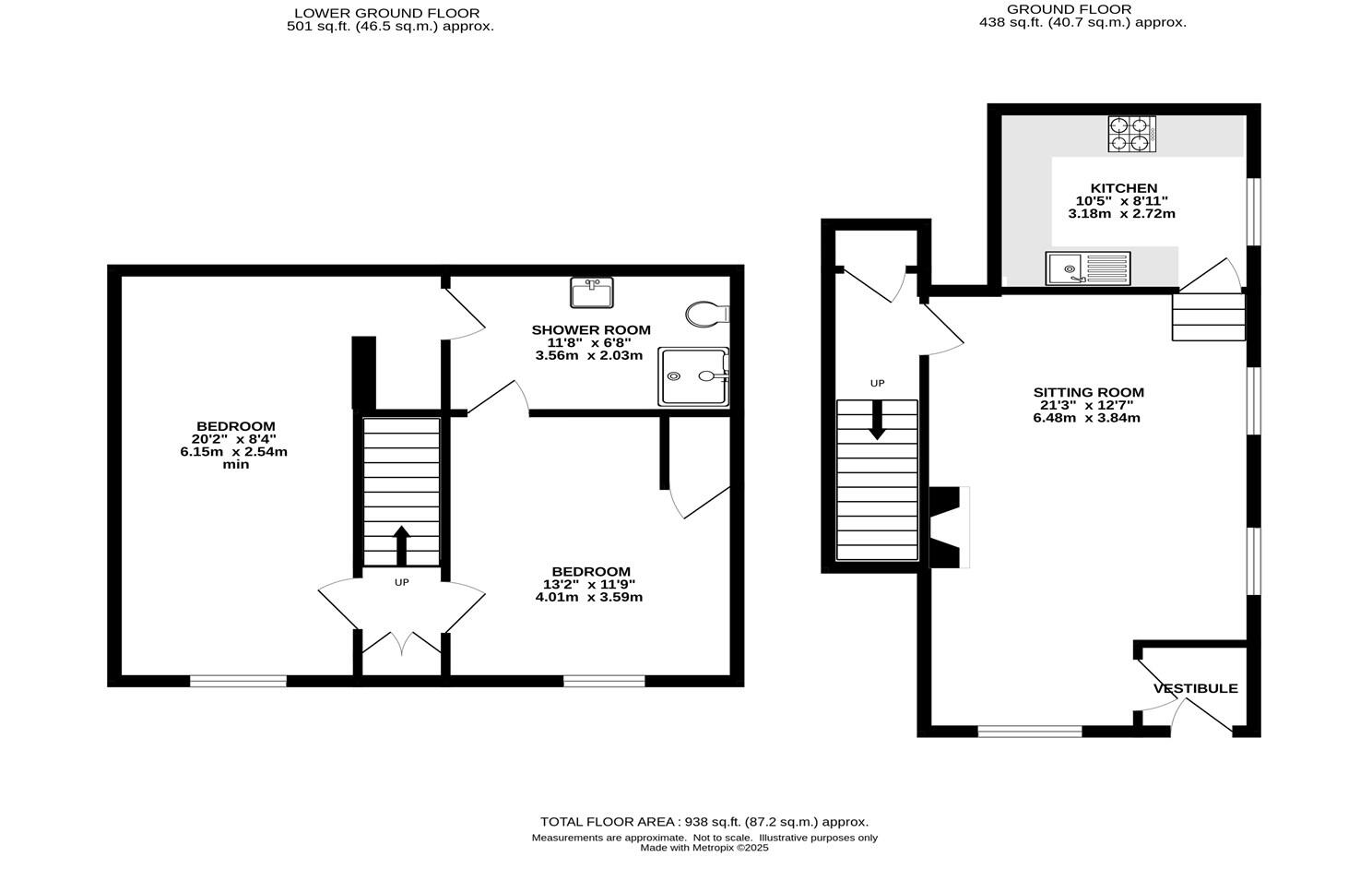
Light-filled, recently refurbished two-bedroom apartment arranged over ground and lower-ground floors in the historic Old Co‑op building. The accommodation has been fully renovated to a high standard with new plastering, electrics, insulation, fitted kitchen with Bosch appliances, and a contemporary Jack-and-Jill shower room. A large picture window and tasteful finishes give the principal living space a welcoming, airy feel.
Tucked in the centre of picturesque Hayfield, the flat sits within easy reach of shops, cafes, primary school and direct access to local walks including Kinder Scout and the Sett Valley Trail. The property includes an enclosed flagged seating terrace with partial views — a private outdoor spot uncommon for central village flats.
Practical points: the property is leasehold (999 years from 2004; 978 years remaining), chain free, with an annual maintenance charge of £480, ground rent £490, and share of buildings insurance currently £247. Heating is by electric room heaters and the EPC is rated D; buyers should note medium flood risk in area assessments.
This apartment will suit a buyer wanting a move‑in ready, characterful home in a very desirable village setting — particularly first-time buyers or downsizers who value location and low immediate maintenance. The long lease and recent comprehensive refurbishment reduce near-term costs, though ongoing running costs (electric heating, service charge, and ground rent) and the EPC rating should be considered.
3 bedroom flat for sale in CHURCH STREET, Hayfield SK22 2JE, SK22 — £250,000 • 3 bed • 2 bath • 1432 ft²
1 bedroom flat for sale in Kinder Road, Hayfield, High Peak, Derbyshire, SK22 — £100,000 • 1 bed • 1 bath • 399 ft²
2 bedroom duplex for sale in The Old Co-op Building, Church Street, Hayfield, SK22 — £695,000 • 2 bed • 2 bath • 2531 ft²
2 bedroom flat for sale in Slack Lane, Little Hayfield, High Peak, SK22 — £239,950 • 2 bed • 2 bath • 648 ft²
2 bedroom terraced house for sale in Kinder Road, Hayfield, High Peak, SK22 — £325,000 • 2 bed • 1 bath • 995 ft²
2 bedroom apartment for sale in Slack Lane, Little Hayfield, High Peak, SK22 — £219,950 • 2 bed • 2 bath • 638 ft²


























































