Bright two-bedroom mill apartment with parking and Peak District views.
Allocated off-street parking for one vehicle
Communal lift access to second-floor apartment
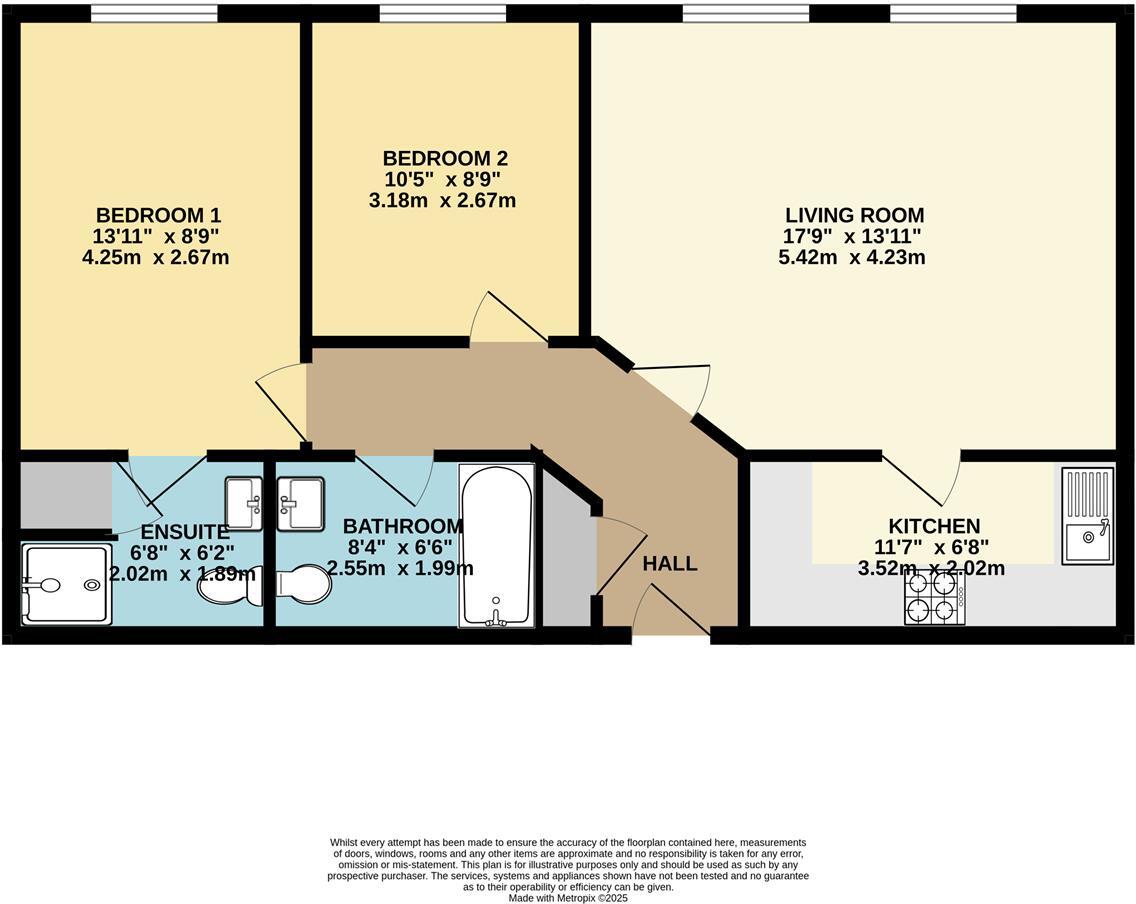
Master bedroom with en-suite shower room
Double-glazed sash windows throughout
Electric storage heating; potential higher running costs
Stone walls likely without insulation (assumed)
Slow local broadband speeds
Long lease (964 years) with £35 ground rent
Set within a handsome mill conversion at the foot of Lantern Pike, this bright two-double-bedroom apartment offers easy, low-maintenance living in the heart of the Peak District. The open-plan living/dining room and large windows capture forward views over Hayfield and the surrounding countryside, while allocated parking and well-kept communal gardens add practical comfort.
The principal bedroom has an en-suite and there is a separate family bathroom, making this layout ideal for couples or downsizers who want versatile accommodation without stairs worries — lift access serves the second-floor landing. The apartment is double glazed and benefits from a long lease (964 years) and modest ground rent, giving clear ownership security.
Buyers should note heating is by electric storage heaters and the building’s original sandstone/limestone walls are assumed to lack insulation; this can mean higher running costs than modern insulated homes. Broadband speeds are reported as slow in the area, so those who rely on fast internet should check available providers and options.
Overall this home suits someone seeking a characterful, low-upkeep base in a tranquil, nationally protected setting — close to walking routes, village amenities and good primary schools — with a little practical updating and awareness of energy implications.
2 bedroom flat for sale in Slack Lane, Little Hayfield, High Peak, SK22 — £239,950 • 2 bed • 2 bath • 648 ft²
2 bedroom apartment for sale in Slack Lane, Little Hayfield, SK22 — £450,000 • 2 bed • 2 bath • 1572 ft²
2 bedroom apartment for sale in Slack Lane, Little Hayfield, SK22 — £205,000 • 2 bed • 2 bath • 572 ft²
1 bedroom flat for sale in Slack Lane, Little Hayfield, SK22 — £175,000 • 1 bed • 1 bath • 775 ft²
3 bedroom apartment for sale in Slack Lane, Little Hayfield, SK22 — £350,000 • 3 bed • 1 bath • 1507 ft²
2 bedroom apartment for sale in Albion Mill, Wedneshough Green, Hollingworth, SK14 — £195,000 • 2 bed • 1 bath • 786 ft²






























































