Family-sized flat with private garden and separate studio close to Swiss Cottage station.
Private garden with paved courtyard and level lawn
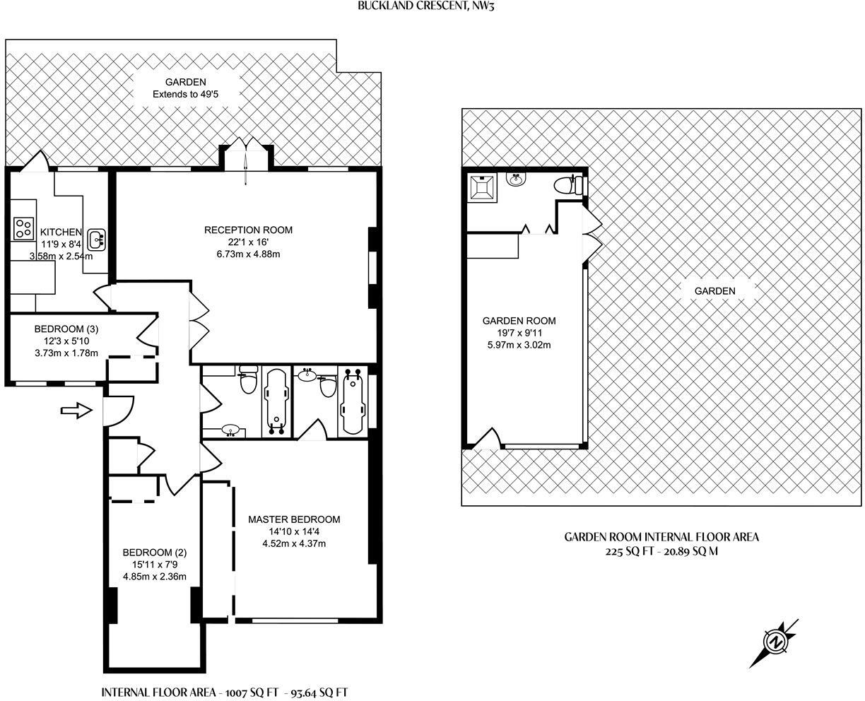
Separate studio/garden room with shower room
Private entrance; garden-level gives house-like feel
3–4 flexible bedrooms and three bathrooms
Wooden flooring and high ceilings with period character
Leasehold — 228 years remaining (long lease)
Solid brick walls assumed uninsulated; possible higher heating costs
Council tax described as quite expensive
A well-presented garden-level apartment arranged over the lower level of a handsome white-stucco period building in Belsize Park. The flat offers flexible 3–4 bedroom accommodation, three bathrooms and generous principal rooms with wooden floors and high ceilings that retain clear period character. Direct garden access via French doors and a separate private entrance give the feel of a small house rather than a typical flat.
Externally there is a paved courtyard, level lawn and a separate studio/garden room with its own shower room — a notable asset for working from home, guests or rental income. The property is close to Swiss Cottage (Jubilee line) and sits in an affluent, low-crime area with excellent mobile and fast broadband speeds, making it practical for modern family life or high-spec lettings.
Practical points to note: the flat is leasehold with 228 years remaining, council tax is described as quite expensive, and the building’s solid-brick walls are presumed uninsulated which may affect heating costs. Double glazing was installed before 2002 and the heating is mains-gas boiler and radiators. There is scope to personalise or upgrade finishes and landscaping, and any structural changes or extensions would require the usual consents.
This property suits buyers seeking a family-sized central-London home with private outside space or investors targeting premium garden flats in NW3. It combines period charm, a useful studio outbuilding and convenient transport links, balanced by clear-running costs and modest retrofit considerations.
2 bedroom flat for sale in Buckland Crescent, Belsize Park, NW3 — £1,350,000 • 2 bed • 2 bath • 1000 ft²
2 bedroom flat for sale in Buckland Crescent, Swiss Cottage, London, NW3 — £1,350,000 • 2 bed • 2 bath • 980 ft²
3 bedroom flat for sale in Belsize Grove, Belsize Park, NW3 — £2,350,000 • 3 bed • 2 bath • 1610 ft²
3 bedroom flat for sale in Buckland Crescent, Belsize Park, NW3 — £1,500,000 • 3 bed • 2 bath • 1230 ft²
2 bedroom flat for sale in Buckland Crescent, Belsize Park, London, NW3 — £800,000 • 2 bed • 2 bath • 844 ft²
3 bedroom flat for sale in Buckland Crescent, Swiss Cottage, London, NW3 — £1,500,000 • 3 bed • 2 bath • 1089 ft²






















































