NW3 5DH - 2 bed spacious garden flat in Buckland Crescent, NW3 5DH

View on Property Piper

2 bedroom flat for sale in Buckland Crescent, Swiss Cottage, London, NW3

Summary - Flat 2, 17 Buckland Crescent NW3 5DH

2 bed 2 bath Flat

Raised-ground period conversion with generous rooms and private garden.
Private south-facing garden, rare for area
Spacious reception with high ceilings and original mouldings
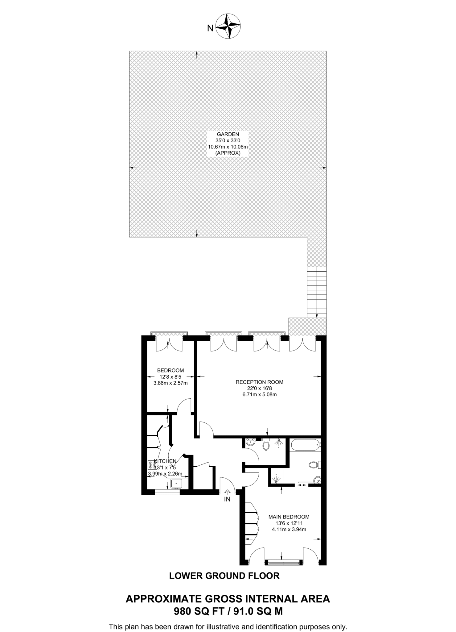
Large overall size: approx. 980 sq ft, two bedrooms, two bathrooms
Modern fitted kitchen and high specification finishes throughout
Leasehold tenure — confirm lease length, service charge, ground rent
Constructed circa 1976–1982; system-built walls, partial insulation assumed
Double glazing fitted post-2002; mains gas heating with boiler
Excellent local schools, shops, transport and low local crime
Set within a handsome period conversion on a quiet Buckland Crescent, this impressive raised-ground flat offers generous, light-filled accommodation and a private garden—rare for the area. The reception room impresses with high ceilings, large windows, original mouldings and wooden floors, while a modern kitchen and two bathrooms deliver contemporary convenience.

At approximately 980 sq ft, the layout suits a growing family or a couple who value space and entertaining room. The property benefits from double glazing (installed post-2002), mains gas central heating with a boiler and radiators, and a high-spec finish throughout. Local amenities, transport links and several well-regarded schools are all within easy reach.

Important practical points: the property is leasehold—prospective buyers should confirm the remaining term, annual service charge and ground rent. Construction records suggest a later-20th-century build/conversion (1976–1982) and walls are described as system-built with partial insulation (assumed), so buyers may wish to assess thermal performance and long-term maintenance.

Overall this is a spacious, characterful garden flat in a very affluent, low-crime pocket of NW3, offering straight-forward family living with period charm and modern comforts.

Property Details

Image Descriptions

Floorplan Description

Rooms

Textual Property Features

Target Audience

AI Tags

Detected Visual Features

EPC Details

Nearby Schools

Nearest Bars And Restaurants

,,,,}

Nearest General Shops

,,}

Nearest Grocery shops

,,}

Nearest Supermarkets

,,}

Nearest Religious buildings

,,}

Nearest Medical buildings

,,,}

Nearest Airports

,}

Nearest Leisure Facilities

,,,,}

Nearest Tourist attractions

,,}

Nearest Train stations

,,,,}

Nearest Bus stations and stops

,,,,}

Nearest Hotels

,,}

Tags

Local Market Stats

AirBnB Data

Similar Properties

Meta

High Res Images

Compatible Images

Low res Images

Thumbnails

Raw Images

High Res Floorplan Images

Compatible Floorplan Images

Low res Floorplan Images

FloorplanImages Thumbnail

Raw Floorplan Images