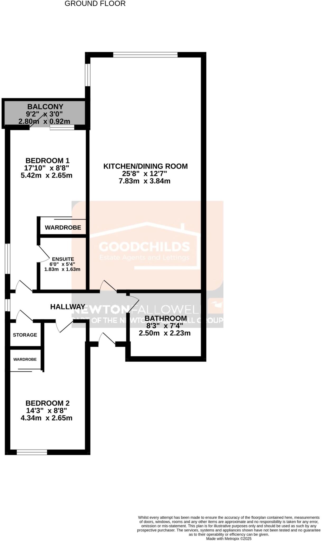
Spacious two-bedroom first-floor home with allocated parking and no onward chain.
Canal-side apartment with balcony and water views
Set on a modern canal-side development, this two-bedroom first-floor apartment offers bright open-plan living and private outdoor space from the master bedroom’s balcony. The layout includes an entrance hallway, modern bathroom, ensuite to the master, and an allocated off-street parking space — practical features rare at this price point.
The flat is chain-free and presented with double glazing and an EPC rating of B, making it suitable for buyers seeking a move-in ready home or a buy-to-let opportunity in a city-centre location. Broadband speeds are fast and mobile signal is excellent, supporting both home working and streaming.
Buyers should note this is a leasehold property and a public notice of offer is recorded against the address. There are conflicting heating details in the listing (electric heating mentioned alongside mains gas boiler and radiators), so confirm the exact system and running costs before exchange. The wider area is classified as very deprived, which may affect resale or rental demand despite nearby amenities and strong local schools.
2 bedroom apartment for sale in Hartley Court, Stoke-on-Trent, Staffordshire, ST4 — £95,000 • 2 bed • 2 bath • 571 ft²
2 bedroom flat for sale in Caldon Quay, Hanley, Stoke-on-Trent, ST1 — £110,000 • 2 bed • 2 bath • 658 ft²
2 bedroom maisonette for sale in Lock Keepers Way, Stoke-on-trent, ST1 — £130,000 • 2 bed • 2 bath • 933 ft²
2 bedroom flat for sale in Norville Drive, Hanley, Stoke-on-Trent, ST1 — £125,000 • 2 bed • 2 bath • 697 ft²
1 bedroom apartment for sale in Wilton Court, Hanley, Stoke-on-Trent, ST1 — £65,000 • 1 bed • 1 bath
2 bedroom flat for sale in Norville Drive, Stoke-on-trent, ST1 — £130,000 • 2 bed • 2 bath • 742 ft²


















































