**Standout Features:**
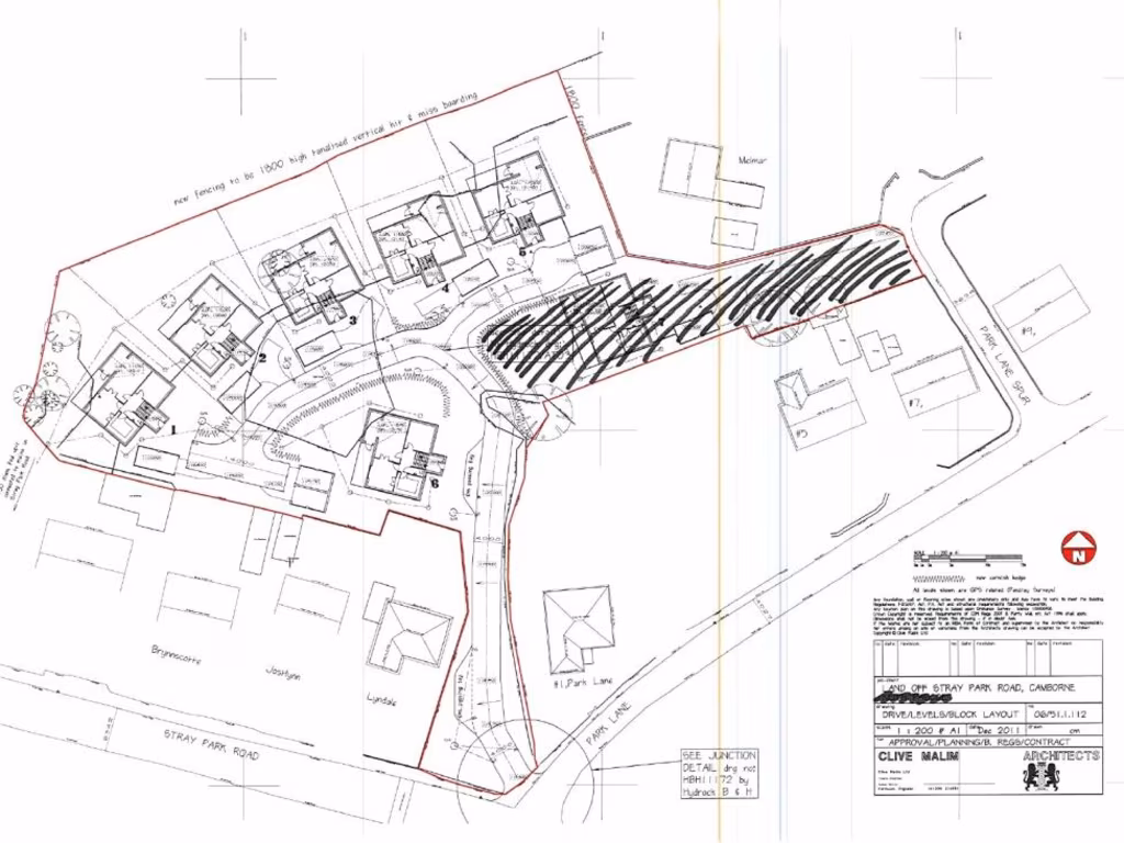
- Approximately 1 acre of development land.
- Previously granted planning permission for six detached three-bedroom family homes (reference: PA11/10193).
- Off-street parking and the potential for private gardens with each home.
- Conveniently located near Camborne with access to amenities and schools.
- The option to negotiate on a sale subject to a new planning application at a higher price.
This exceptional parcel of development land in the desirable area of Camborne, Cornwall, offers a rare investment opportunity ideal for builders and developers. Spanning approximately 1 acre, this site has a previously approved planning proposal to construct six detached, three-bedroom family homes, each featuring off-road parking and private gardens, though that permission has lapsed. Situated in a vibrant community, the plot provides proximity to local amenities, parks, and schools—including several with "Good" Ofsted ratings.
While currently sold as land with no planning permission, there is the potential for negotiation to secure an 'Option Agreement' for a new planning application at a higher price point of around £645,000. This flexible approach allows for future development tailored to the growing demand for family homes in this sought-after location, making it a prime investment opportunity not to be missed.
Commercial development for sale in Potential Development Land Camborne West, Roseworthy Hill, Treswithian, Camborne, Cornwall TR14 0PY, TR14 — POA • 1 bed • 1 bath
Residential development for sale in Land At Treleigh, Treleigh, Redruth, Cornwall, TR16 4BE, TR16 — £825,000 • 1 bed • 1 bath
Residential development for sale in Potential Development Land, East Hill/ Dudnance Lane, Pool, Redruth, Cornwall, TR15 3QT, TR15 — £1,250,000 • 1 bed • 1 bath
Land for sale in Crowlas, Penzance, TR20 — £265,000 • 1 bed • 1 bath
Land for sale in Exciting opportunity, Near Trannack, TR13 — £250,000 • 1 bed • 1 bath
Commercial development for sale in Land at South Crofty, Kerrier Way, Redruth, Cornwall, TR15 3QT, TR15 — £1,950,000 • 1 bed • 1 bath














