Extensive refurbished holiday complex with owners’ home, outbuildings and coastal access nearby..
- Five letting units plus a three-bedroom owner’s residence with residential consent
- Newly renovated interiors retaining character features and double glazing
- Very large plot with mature gardens, stream and enclosed courtyard
- Substantial outbuildings, covered carport and plentiful parking for multiple vehicles
- EPC ratings E–F; thermal upgrades likely required
- Walls assumed uninsulated stone — potential energy-efficiency costs
- Heating via community oil scheme; broadband speeds slow
- Tenure unspecified; due diligence recommended before purchase
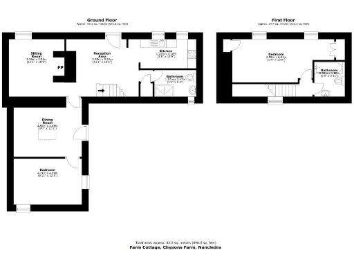
Chypons Farm Holiday Cottages is a substantial, newly refurbished period stone complex set in a large rural plot about 3 miles from Carbis Bay and St Ives. The site comprises multiple letting units (four two-bedroom holiday cottages and a B&B suite) plus an owner’s three-bedroom residence with full residential consent, extensive outbuildings, garages and generous parking arranged around a central courtyard. Renovations have upgraded the units while retaining character features; double glazing was installed post-2002.
This is a mixed lifestyle and income opportunity aimed at buyers who want rental earnings alongside a private rural home. The gardens are mature and level, bordering a stream, offering scope for landscaping or further guest-focused external spaces. Ample hardstanding and a covered carport suit multiple vehicles and potential storage or workshop uses.
Buyers should note practical constraints: EPC ratings are E–F, the external stone walls are assumed uninsulated, heating is via a community oil scheme, and broadband speeds are slow. Tenure is not specified. These factors will affect running costs and long-term energy upgrades but also present clear renovation or improvement potential that can add value for holiday-let income or conversion projects.
Overall, this rare Cornish farm-holding style property suits an investor or lifestyle buyer seeking strong holiday-let credentials, flexible ancillary buildings and a secluded countryside setting close to the coast.
Leisure facility for sale in Chypons Farm Holiday Cottages, Nancledra, St Ives, Cornwall, TR20 8NE, TR20 — £1,250,000 • 1 bed • 1 bath • 898 ft²
4 bedroom detached house for sale in Idyllic Rural Farmhouse with Annexe, Derelict Barn & Stunning Views – Nr St Erth, TR27 — £1,100,000 • 4 bed • 1 bath • 897 ft²
Farm for sale in Morvah, Pendeen, Penzance, Cornwall, TR20 — £2,500,000 • 9 bed • 5 bath • 1799 ft²
6 bedroom detached house for sale in Gwinear, Hayle, TR27 — £950,000 • 6 bed • 4 bath • 3842 ft²
5 bedroom house for sale in Gulval, Penzance, Cornwall, TR20 — £900,000 • 5 bed • 3 bath • 1504 ft²
4 bedroom detached house for sale in Amalveor, St. Ives, Cornwall, TR26 — £425,000 • 4 bed • 2 bath • 1894 ft²














































































































