Move-in ready flat close to transport, shops and parks for first-time buyers.
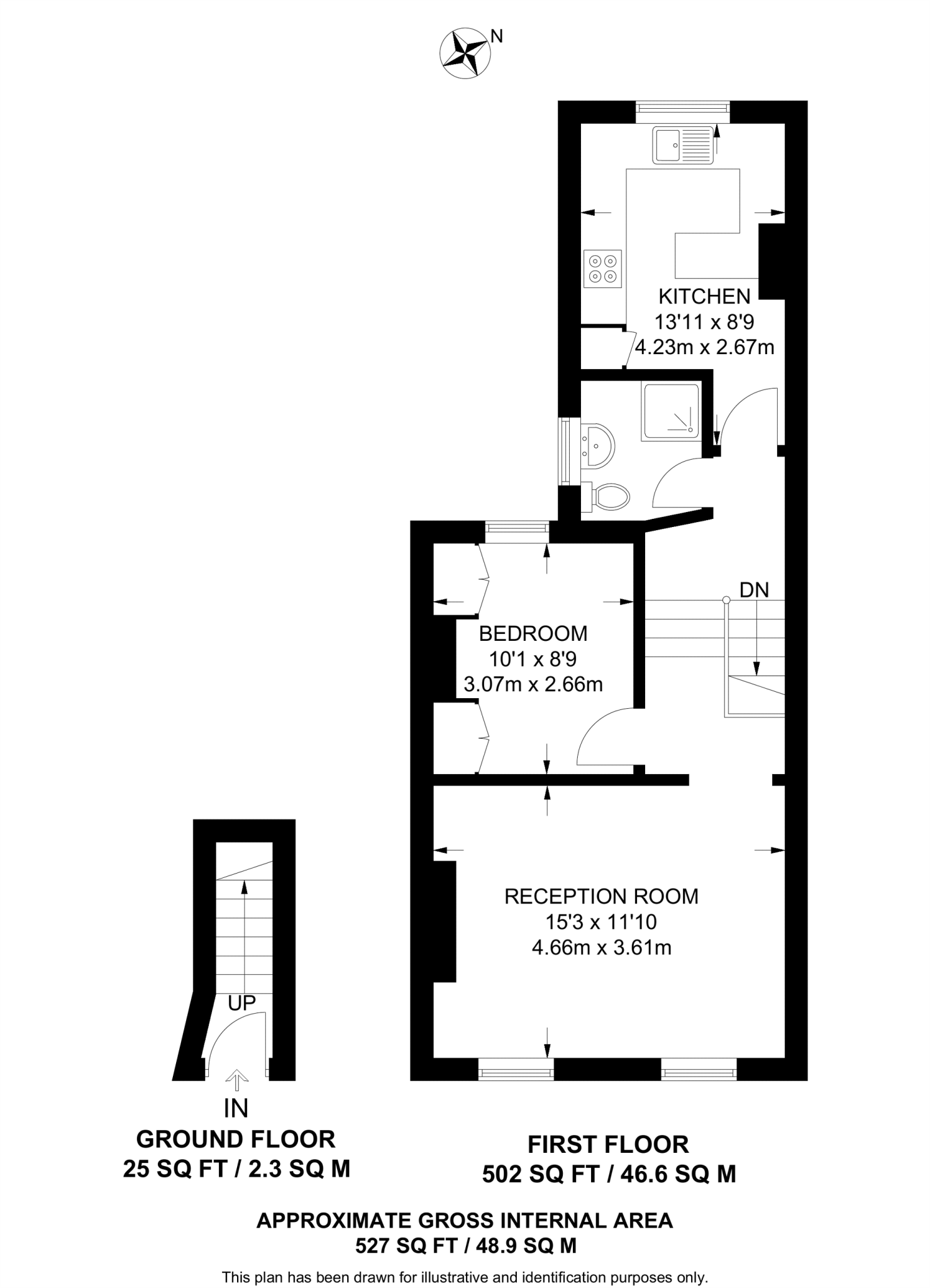
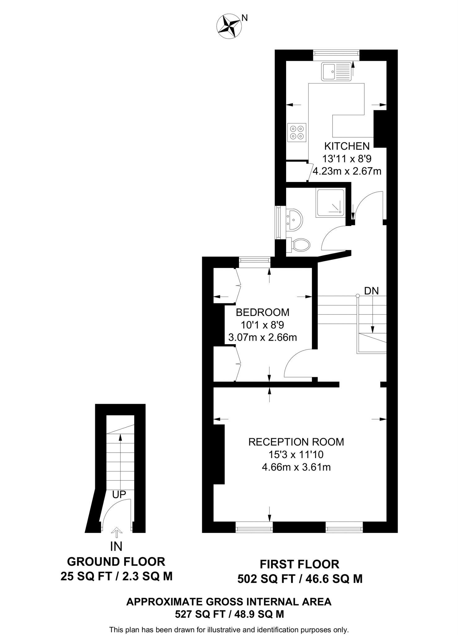
Generous reception room with high ceilings and large window
Sizeable double bedroom, good natural light throughout
Modern fully fitted eat-in kitchen, space for dining
Approx 527 sq ft — average-sized one-bedroom flat
Leasehold with 109 years remaining; ground rent £10 (unknown detail)
Solid brick walls likely uninsulated — potential retrofit costs
Very low flooding risk; mains gas boiler and radiators
Local area: fast broadband, excellent mobile signal; crime above average
Light-filled one-bedroom flat ideal for a first-time buyer seeking character and convenience in central Peckham. The property sits on a residential road a short walk from Peckham’s shops, cafes and Queens Road Peckham station, and offers a generous reception room and a sizeable double bedroom. The modern, fully fitted eat-in kitchen gives immediate practical living space and scope to personalise.
At around 527 sq ft the flat is an average-sized apartment with high ceilings in the reception and good natural light. Practical features include double glazing (unknown install date), mains gas boiler and radiators, and fast broadband with excellent mobile signal — useful for remote working or streaming.
Buyers should note material facts: the property is leasehold with 109 years remaining and a modest ground rent of £10 (details unknown). The building dates from 1900–1929 and has solid brick walls assumed to have no insulation, which could mean future retrofit costs. The local area is classed as very deprived with above-average crime rates, which may affect perceptions and insurance costs.
Overall this is a well-presented one-bedroom flat that offers immediate move-in potential and longer-term improvement upside. It suits a buyer who values proximity to transport, schools and Peckham’s amenities and who is comfortable with leasehold ownership and potential retrofit or insulation works.
1 bedroom flat for sale in Philip Walk, Peckham Rye, London, SE15 — £425,000 • 1 bed • 1 bath • 503 ft²
2 bedroom flat for sale in Peckham Road, Peckham, London, SE5 — £350,000 • 2 bed • 1 bath • 772 ft²
1 bedroom flat for sale in Carlton Grove, London, SE15 — £265,000 • 1 bed • 1 bath • 375 ft²
1 bedroom flat for sale in Southampton Way, Peckham, London, SE5 — £375,000 • 1 bed • 1 bath • 489 ft²
1 bedroom flat for sale in Vestry Road, London, SE5 — £375,000 • 1 bed • 1 bath • 485 ft²
2 bedroom flat for sale in Queens Road, Peckham, London, SE15 — £425,000 • 2 bed • 1 bath • 551 ft²






















































































































































































































