Private garden and easy access to Denmark Hill transport — ideal starter option.
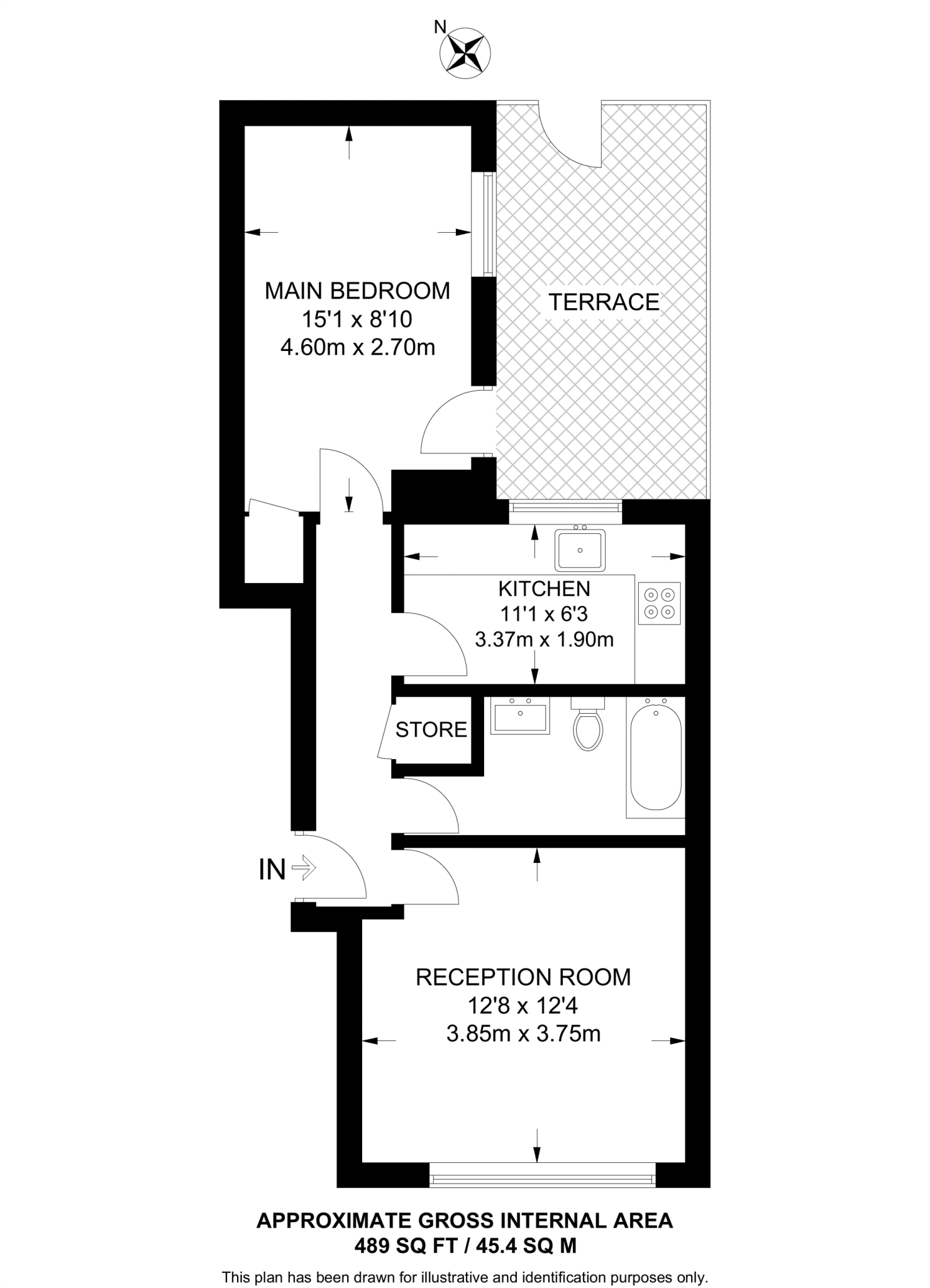
- Private garden, unusual for a one-bedroom flat
- Generous reception room for the flat's size
- Modern fitted kitchen with built-in appliances
- Sizeable double bedroom with built-in storage
- Leasehold: 101 years remaining
- Service charge approximately £1,735 (average)
- Solid brick walls, no assumed cavity insulation
- Area has above-average crime and local deprivation
A smartly presented one-bedroom flat occupying 489 sq ft in a Victorian mid-terrace on Southampton Way. The reception room is generous for the size and the kitchen is modern and fitted with built-in appliances. A private garden adds rare outdoor space for this type of property.
This home will appeal to first-time buyers seeking a ready-to-move-in London flat with excellent transport links; Denmark Hill and local bus routes are within easy reach and broadband and mobile signal are strong. Built-in storage and neutral decoration keep running costs and maintenance straightforward.
Practical points to note: the property is leasehold with 101 years remaining and an average service charge of £1,735. The building has solid brick walls with no assumed cavity insulation and secondary glazing, so heating costs may be higher than modern stock. The area has above-average crime figures and is relatively deprived, although nearby schools include several rated Good and Outstanding.
Overall this is a well-presented, compact city flat offering outdoor space and straightforward living; it suits buyers wanting an accessible, move-in-ready base with potential to improve thermal efficiency over time.
1 bedroom flat for sale in Havil Street, Camberwell, London, SE5 — £325,000 • 1 bed • 1 bath • 527 ft²
1 bedroom flat for sale in Valmar Road, Camberwell, London, SE5 — £290,000 • 1 bed • 1 bath • 455 ft²
1 bedroom flat for sale in Ava House, Kimberley Avenue, Nunhead, SE15 — £400,000 • 1 bed • 1 bath • 488 ft²
1 bedroom flat for sale in Grove Hill Road, London, SE5 — £475,000 • 1 bed • 1 bath • 523 ft²
2 bedroom flat for sale in Venetian Road, London, SE5 — £575,000 • 2 bed • 1 bath • 729 ft²
1 bedroom flat for sale in Southwell Road, London, SE5 — £400,000 • 1 bed • 1 bath • 450 ft²


















































































