Spacious family home with large garden and garage.
Extended detached corner plot with generous external space
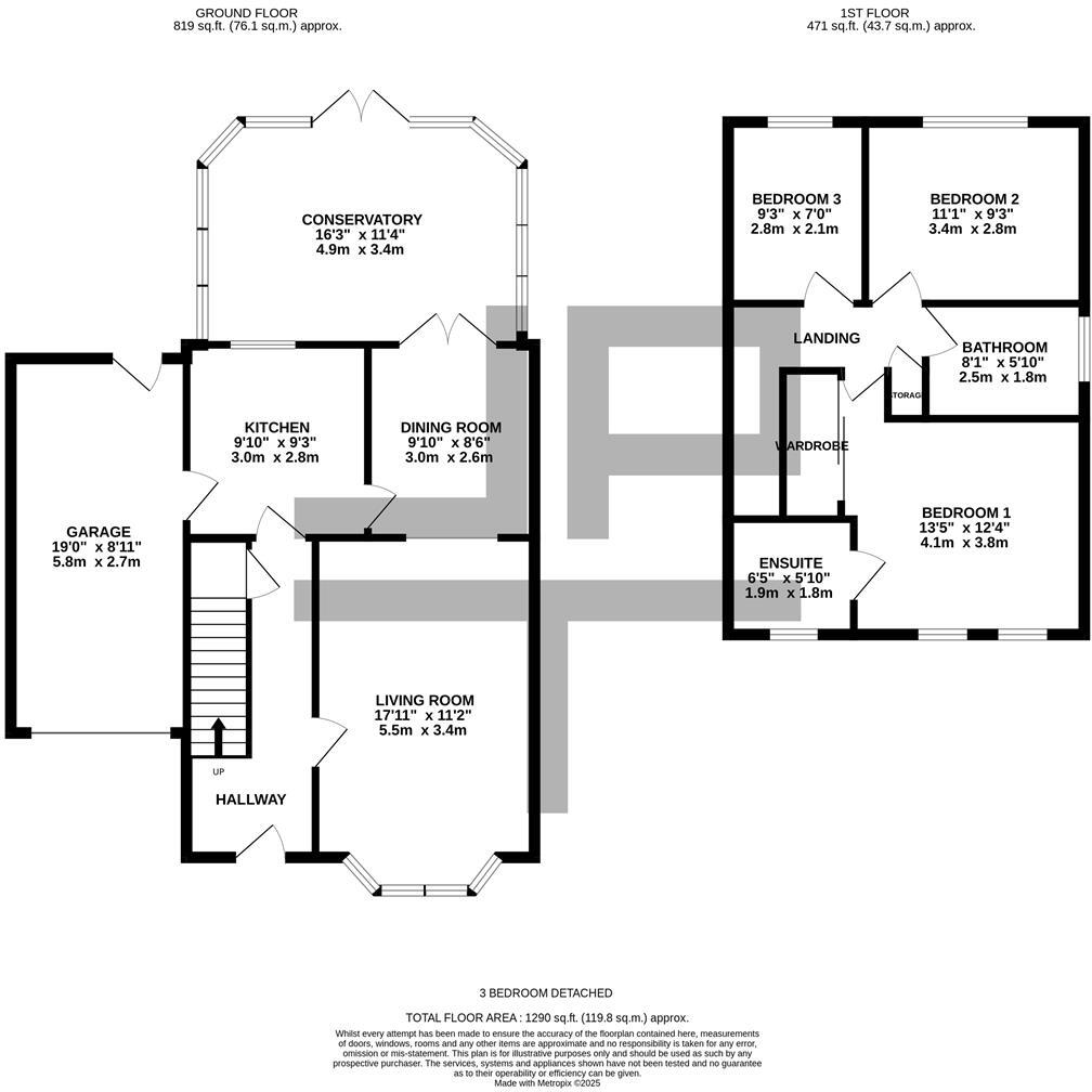
Set on an extended corner plot in a quiet cul-de-sac, this modern three-bedroom detached house offers substantial family living and clear development potential. Ground floor living is generous: open-plan living/dining, conservatory with French doors to the large enclosed rear garden, plus an integral garage and two driveways for ample parking.
The first floor includes two double bedrooms (master with ensuite and fitted wardrobes), a single bedroom and a family bathroom. Gas central heating, UPVC double glazing and a largely well-presented interior make the home ready to occupy while still offering scope to personalise or extend subject to local planning.
Practical benefits include a long lease (circa 969 years remaining), no flood risk, very low local crime, excellent mobile signal and fast broadband — positives for family life and potential rental income. Note the property sits in an area classified as ageing urban communities with higher area deprivation levels; buyers should consider local amenity and long-term resale factors.
Overall this is a roomy, well-sited family home with parking and garden privacy, suitable for buyers seeking immediate comfortable living with scope to add value through targeted refurbishment or extension.
3 bedroom semi-detached house for sale in Woodley Grove, Leigh, Greater Manchester, WN7 4UJ, WN7 — £205,000 • 3 bed • 1 bath • 894 ft²
5 bedroom detached house for sale in Priestfields, Leigh, Greater Manchester,WN7 2RG, WN7 — £525,000 • 5 bed • 4 bath • 1911 ft²
3 bedroom detached house for sale in Holden Road, Leigh, WN7 — £279,999 • 3 bed • 1 bath • 1129 ft²
3 bedroom detached house for sale in Schofield Street, Leigh, WN7 — £270,000 • 3 bed • 1 bath • 743 ft²
3 bedroom semi-detached house for sale in Radcliffe Gr, Leigh, WN7 — £260,000 • 3 bed • 1 bath • 995 ft²
3 bedroom detached house for sale in Redfield Croft, Leigh WN7 1EN, WN7 — £300,000 • 3 bed • 2 bath • 1012 ft²














































































































































































































