Substantial converted barn, large portal barn and 31+ acres with flexible agricultural and storage potential.
Approximately 31.62 acres of arable and pasture surrounding the buildings
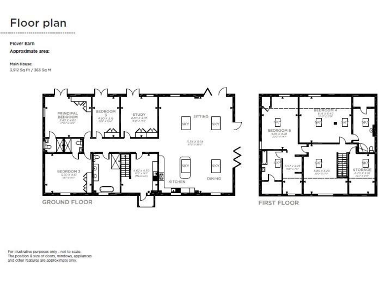
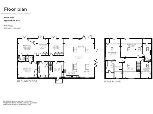
A rare rural holding close to Longcot, this property combines an extensive converted barn residence with a large portal‑framed storage building and about 31.62 acres of arable and pasture. The main barn offers nearly 4,000 sq ft of living space with generous open-plan areas and elevated views across the countryside to the White Horse at Uffington. The site sits at the junction of the A420 and Kings Lane, giving straightforward road access to Faringdon, Swindon and Oxford.
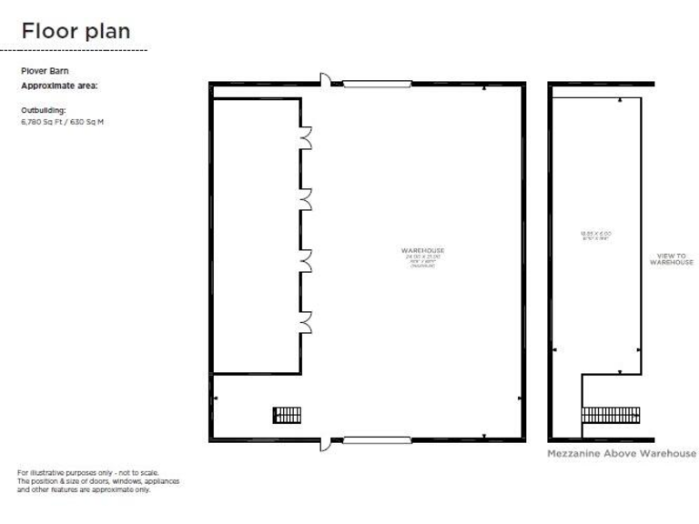
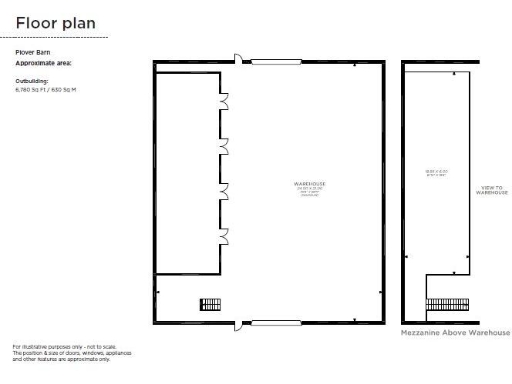
The adjacent steel portal‑framed building (approx. 6,780 sq ft) has high eaves, concrete floors, roller shutters and benefited from consent in March 2020 (ref P19/V3352/N4C) for Storage and Distribution (Use Class B8). It is currently let and used for storage and a gym, providing immediate income and flexibility for alternative uses subject to further planning. The land is a mix of Grade 2 and 3 soils, largely level and productive, and is well suited to continued agricultural use or diversification.
Practical considerations include private drainage, oil-fired heating, average mobile signal and slow broadband—factors to consider if primary residence or home-working is intended. The garden and domestic amenity space are modest compared with the overall holding; most of the acreage is farmland wrapping around the buildings. Parts of the yard have latent redevelopment potential but any change of use will require statutory consents.
This property will suit buyers seeking a substantial smallholding, farm diversification opportunity or an income-producing site with broad redevelopment possibilities. Inspectors and purchasers should commission surveys, ecological and soils reports and check rights of way, tenancies and wayleaves before offer.
Barn conversion for sale in Kings Lane, Longcot, Faringdon, Oxfordshire, SN7 — £2,500,000 • 1 bed • 1 bath • 6780 ft²
4 bedroom barn conversion for sale in The Dutch Barn, Stone Farm, Majors Road, Longcot, Faringdon, Oxfordshire SN7 7TR, SN7 — £1,250,000 • 4 bed • 3 bath • 2677 ft²
Land for sale in Broughton Poggs, Filkins, Lechlade, Oxfordshire, GL7 — £700,000 • 2 bed • 1 bath
Land for sale in Faringdon Road, Stanford In The Vale, Faringdon, SN7 — £425,000 • 1 bed • 1 bath
9 bedroom detached house for sale in Long Wittenham, Abingdon, Oxfordshire, OX14 — £2,500,000 • 9 bed • 7 bath • 8424 ft²
2 bedroom detached house for sale in Broughton Poggs, Filkins, Lechlade, Oxfordshire, GL7 — £700,000 • 2 bed • 1 bath






























































































































































