Huge rural holding with large storage barn, residential conversion and redevelopment potential.
Extensive holding: c.78 acres of mixed pasture and arable land
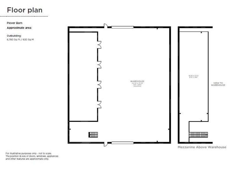
A rare, extremely large rural holding on the edge of Longcot, offered as a whole or in up to three lots. The site combines a substantial converted barn, an adjacent steel portal-framed building (6,780 sq ft) with high eaves and roller doors, and approximately 78 acres of mixed pasture and arable land with long-range countryside views toward the White Horse at Uffington.
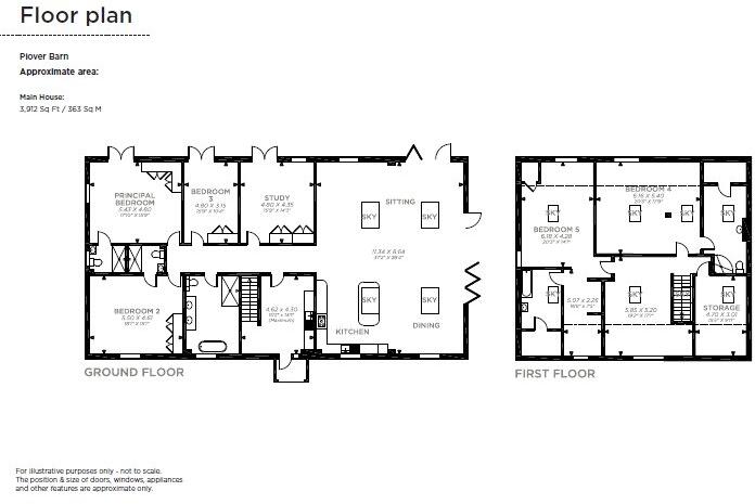
The steel-framed barn benefits from planning consent (March 2020, ref P19/V3352/N4C) for Storage and Distribution (Use Class B8) and is currently let and used for storage and a gym, giving immediate income and flexible operational use. The converted residential barn provides private outdoor space and driveway parking but the residential accommodation is modest relative to the overall holding and the immediate site is rural and secluded.
Practical considerations are clear: services include mains water and electricity, oil-fired heating and private drainage; broadband is slow and mobile signal average. The property presents genuine opportunity — continued agricultural use, an income-producing storage unit, or redevelopment subject to planning — but any change of use or significant redevelopment will require further planning approvals. Tenure details are not confirmed and the sale may be offered in lots, making this suitable for investors, farmers or developers prepared to work through planning and servicing constraints.
Viewings and offers should reflect the site’s scale, the mix of agricultural land quality, and the existing commercial tenancy on the storage barn. The holding suits buyers seeking an extensive countryside asset with immediate storage income and long-term redevelopment or agricultural potential.
Barn conversion for sale in Kings Lane, Longcot, Faringdon, Oxfordshire, SN7 — £1,950,000 • 1 bed • 1 bath • 4000 ft²
4 bedroom barn conversion for sale in The Dutch Barn, Stone Farm, Majors Road, Longcot, Faringdon, Oxfordshire SN7 7TR, SN7 — £1,250,000 • 4 bed • 3 bath • 2677 ft²
Land for sale in Faringdon Road, Stanford In The Vale, Faringdon, SN7 — £425,000 • 1 bed • 1 bath
Land for sale in Broughton Poggs, Filkins, Lechlade, Oxfordshire, GL7 — £700,000 • 2 bed • 1 bath
Farm land for sale in 3.71 Acres Of Land At Grove Farm (Lot 2), Grove Road, Goring, Reading, Berkshire, RG8 — £50,000 • 1 bed • 1 bath
6 bedroom barn conversion for sale in Waylands Barn, Silver Street, Fernham, Faringdon, Oxfordshire, SN7 — £1,575,000 • 6 bed • 5 bath • 5397 ft²










































































































































































