Light-filled central flat close to excellent transport and Barbican amenities.
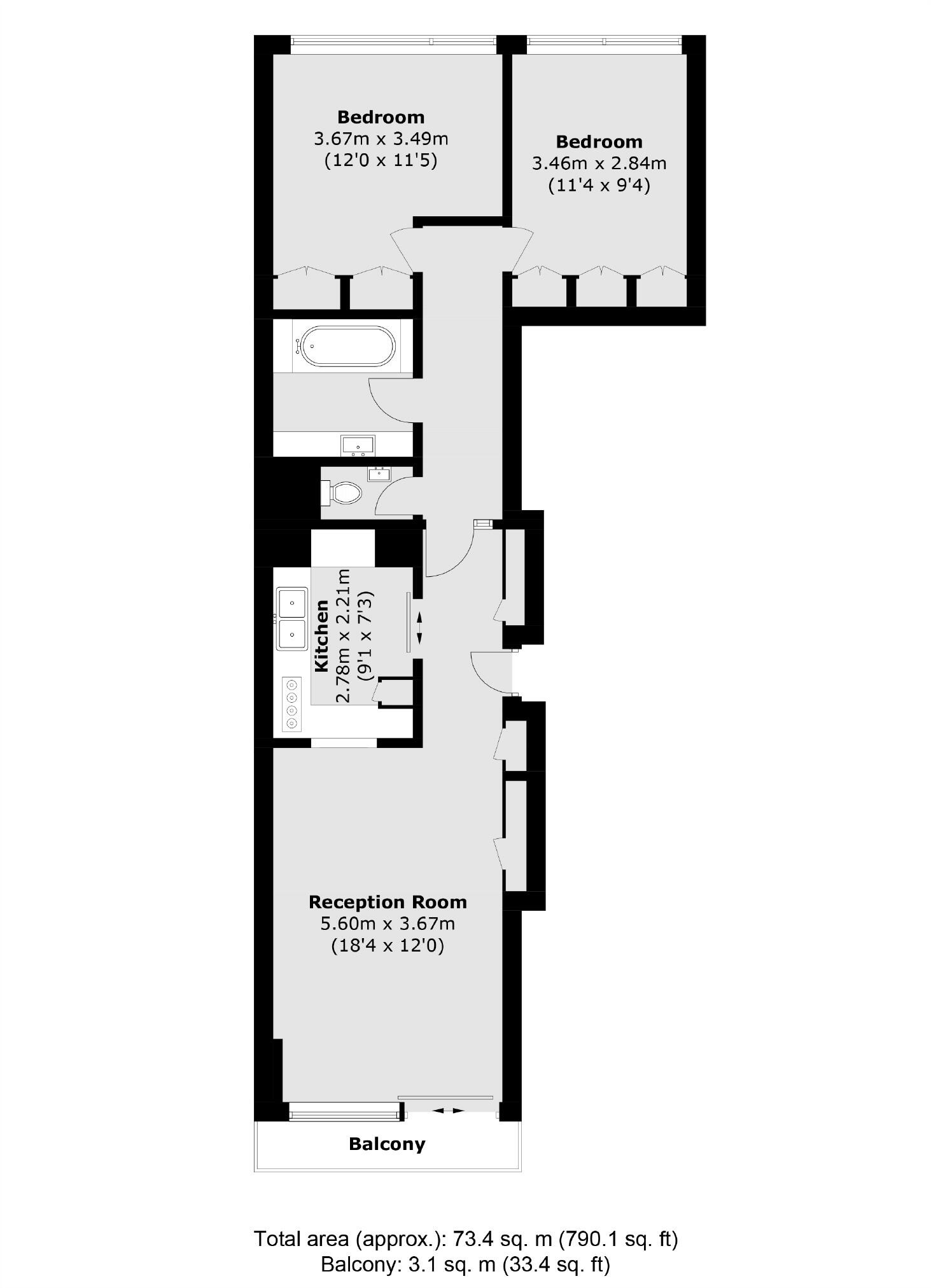
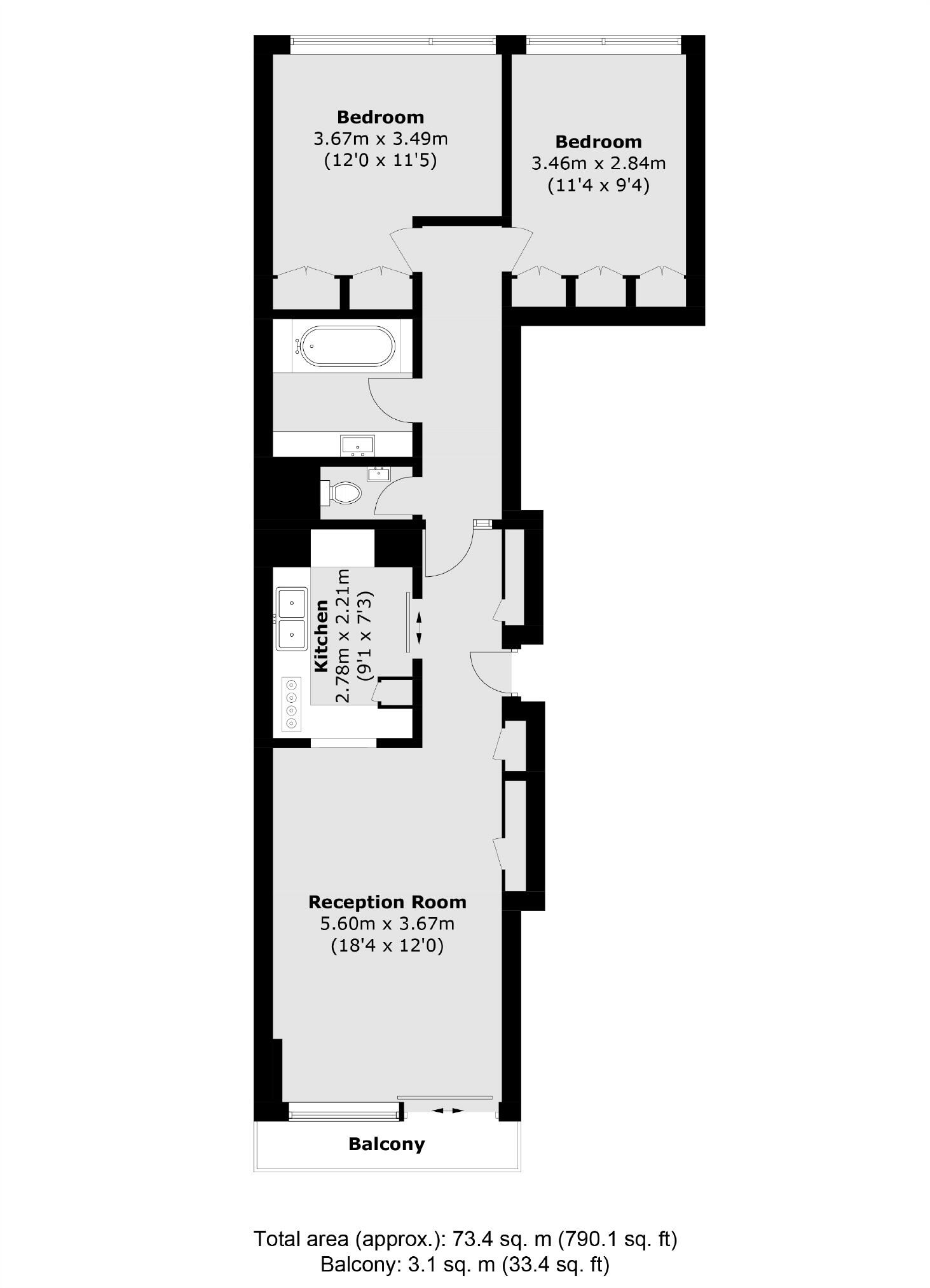
South-facing reception with full-height windows and balcony
Two double bedrooms with fitted wardrobes at rear
Long lease: 171 years remaining
Chain free — available without onward chain
Service charge £6,361 pa (above average) covering communal services
Council tax band E (above average)
Parking and storage available to rent from Corporation of London
1967–75 concrete construction; limited external wall insulation assumed
Set on the third floor of Defoe House, this two-bedroom Type 21 apartment offers bright, south-facing living with full-height windows framing the residents’ gardens. The open-plan reception leads to a balcony and provides generous day-to-day living space for professionals or a small family. Two double bedrooms sit to the rear, with fitted wardrobes and easy circulation around a separate WC and bathroom.
The apartment benefits from long leasehold security (171 years), communal underfloor heating, 24-hour porterage and well-maintained gardens — hallmarks of Barbican living. Residents can rent parking and storage separately from the Corporation of London. Transport links are excellent: the Elizabeth Line and Barbican station are within a short walk, making airports and central London easily accessible.
Buyers should factor in the service charge and local context. Annual service charges are relatively high and cover communal services, insurance and maintenance; council tax is above average. The building dates from the 1967–75 era and uses solid brick construction with no assumed external wall insulation — energy performance and future maintenance should be considered.
This property is offered chain-free and suits buyers seeking a genuinely central London home with mature communal amenities and long lease security. It will particularly appeal to buyers who value location, light and the Barbican’s distinctive urban character, while accepting the ongoing costs of estate living.
2 bedroom flat for sale in Barbican, Defoe House, EC2Y — £999,950 • 2 bed • 1 bath • 796 ft²
2 bedroom flat for sale in Barbican, London, EC2Y — £900,000 • 2 bed • 1 bath • 806 ft²
3 bedroom flat for sale in Frobisher Crescent, Barbican, EC2Y — £1,750,000 • 3 bed • 2 bath • 1290 ft²
3 bedroom flat for sale in Lauderdale Tower, Barbican, EC2Y — £1,450,000 • 3 bed • 2 bath • 1149 ft²
1 bedroom apartment for sale in Andrewes House, Barbican, London, EC2Y — £915,000 • 1 bed • 1 bath • 570 ft²
1 bedroom apartment for sale in Defoe House, Barbican, EC2Y — £825,000 • 1 bed • 1 bath • 597 ft²










































































