Auction opportunity near Lewisham transport links and local amenities.
Freehold end-of-terrace with private garden
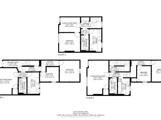
A substantial end-of-terrace freehold arranged as three self-contained flats (1 x 1 bed, 2 x 2 beds) offered vacant at auction. The block includes a private garden and sits close to Lewisham transport hubs (Lewisham and Hither Green) and local shops, making it suited to rental or short-term refurbishment-and-let schemes.
The building requires renovation throughout — internal photos and descriptions show unfinished floors, bare walls and dated fittings. There is clear scope for value uplift through refurbishment, and further extension or development could be possible subject to planning consent. Buyers should factor in refurbishment costs and time for any planning applications.
Practical considerations: the property will be sold at auction, is in a generally deprived area with above-average crime levels, and currently records one bathroom across the whole block. Broadband speeds are average but mobile signal is excellent. For investors, the combination of vacant possession, multiple self-contained units and proximity to transport offers redevelopment or multi-let income potential; for developers, the site provides scope for extension subject to consents.
3 bedroom block of apartments for sale in 7A and 7B St Stephens Grove, Lewisham, London, SE13 5AJ, SE13 — £650,000 • 3 bed • 1 bath
3 bedroom end of terrace house for sale in 11 Belmont Park Close, Lewisham, London, SE13 5BH, SE13 — £170,000 • 3 bed • 1 bath • 850 ft²
1 bedroom flat for sale in First Floor, 111 Radford Road, Hither Green, London, SE13 6SA, SE13 — £265,000 • 1 bed • 1 bath
2 bedroom terraced house for sale in 4A The Woodlands, London, SE13 6TY, SE13 — £382,500 • 2 bed • 1 bath
1 bedroom flat for sale in Flat A 61-63 Quentin Road, London, SE13 — £65,000 • 1 bed • 1 bath
3 bedroom flat for sale in Flat 4, 105 Blackheath Road, London SE10 8PD, SE10 — £230,000 • 3 bed • 1 bath • 848 ft²






















































































































