Auction opportunity near Hither Green station, vacant and ready for refurbishment.
One-bedroom first-floor flat in converted Victorian building
A one-bedroom first-floor flat in a converted Victorian building, offered vacant and for sale at auction. The property requires modernisation throughout, presenting clear scope for refurbishment and rental or resale uplift once updated. It benefits from a private garden and high ceilings characteristic of period conversions.
Situated a short walk from Hither Green station, the flat is well placed for regular Southeastern services and local shops on Hither Green Lane, Rushey Green and Lewisham High Street. Mountsfield Park, Lewisham Park and Ladywell Fields are nearby, adding outdoor amenity for future occupants.
Buyers should note material points: the property is leasehold, will be sold at auction, and needs comprehensive updating. The immediate area scores as deprived with above-average crime rates; these factors affect financing, insurance and rental demand. Conversely, fast broadband and excellent mobile signal support modern living and working from home.
This is a straightforward refurbishment opportunity for an investor or buyer comfortable buying at auction and managing a renovation. With the right budget and permissions, the flat could deliver improved capital value or steady rental income given its transport links and local amenities.
1 bedroom flat for sale in Flat 2, 312 Hither Green Lane, London , SE13 — £130,000 • 1 bed • 1 bath
1 bedroom flat for sale in Flat 26 Rowallan Court, Cumberland Place, Catford, London, SE6 1LB, SE6 — £82,500 • 1 bed • 1 bath
1 bedroom flat for sale in 44A Shardeloes Road, London, SE14 6SL, SE14 — £230,000 • 1 bed • 1 bath
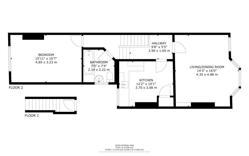
3 bedroom end of terrace house for sale in Sandhurst Road, London, SE6 — £380,000 • 3 bed • 1 bath • 970 ft²
1 bedroom flat for sale in George Lane, London, SE13 — £280,000 • 1 bed • 1 bath • 420 ft²
1 bedroom flat for sale in Thornford Road, London, SE13 — £240,000 • 1 bed • 1 bath • 457 ft²










































