Quiet cul-de-sac location near good schools and fast broadband.
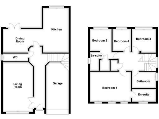
Chain free four-bedroom detached family home
A spacious four-bedroom detached home set on a decent plot in a quiet cul-de-sac on Chatsworth Avenue. The layout suits growing families: a generous living room with a front bay, an open plan living/dining kitchen with patio doors to the rear garden, and two double bedrooms with en suite bathrooms. The integral garage (partially converted to utility/storage) and driveway provide useful parking and storage.
Practical comforts include gas central heating and double glazing throughout, plus fast broadband — useful for home working and study. The property is offered chain free, close to several well-rated primary and secondary schools, and sits in a sought-after, affluent pocket of Pontefract.
Important considerations: the property is in an area recorded with higher-than-average crime rates and the legal tenure is not specified, which should be clarified before purchase. The garage has been adapted for utility use and may need reinstating if a full garage is required. Overall accommodation is well proportioned but of average overall size for this price bracket.
4 bedroom detached house for sale in Dandy Mill View, Pontefract, West Yorkshire, WF8 — £365,000 • 4 bed • 3 bath • 865 ft²
4 bedroom detached house for sale in Cranbrook Way, Pontefract, West Yorkshire, WF8 — £350,000 • 4 bed • 2 bath • 1556 ft²
4 bedroom detached house for sale in Ackworth Road, Pontefract, WF8 — £415,000 • 4 bed • 4 bath • 1768 ft²
3 bedroom detached house for sale in Westbourne Crescent, PONTEFRACT, WF8 — £280,000 • 3 bed • 2 bath • 958 ft²
4 bedroom detached house for sale in Ackworth Road, Pontefract, WF8 — £300,000 • 4 bed • 1 bath • 1167 ft²
4 bedroom detached house for sale in Portland Croft, Pontefract, WF8 — £474,950 • 4 bed • 3 bath • 2000 ft²






















































