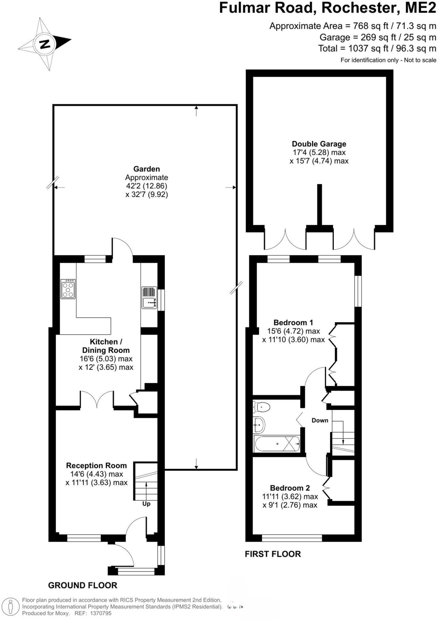
Two double bedrooms, double garage and generous west-facing garden—ideal for growing families.
Two double bedrooms with one first-floor bathroom
Two-storey extension increases living space (registered 1989)
Generous corner plot with west-facing wrap garden
Double garage with rear access and off-street parking
Spacious kitchen/diner opening to garden — good for families
EPC D; cavity walls partially insulated (assumed)
Title contains 1964 covenants—legal checks advised
Freehold; fast broadband and excellent mobile signal
This deceptively spacious two-double-bedroom end-of-terrace sits on a generous corner plot and benefits from a two-storey extension and a double garage. The front living room leads through to a large kitchen/diner with direct access to a west-facing wrap-around garden — a practical layout for family life and entertaining.
Presented with double glazing, mains gas central heating and fast broadband, the home is well suited to everyday living. There is one first-floor bathroom and two well-proportioned bedrooms; the extension increases overall space but the property remains an average overall size at around 768 sq ft.
Important practical notes: the extension was registered in 1989 and the title contains covenants and restrictions dating from 1964. The EPC is grade D, cavity walls appear partially insulated, and buyers should commission their own survey and legal checks to confirm services, insulation levels and any planning or covenant implications.
Located in Strood with good access to nearby primary and secondary schools, local buses and amenities, the house offers a family-friendly position in a city/major town setting. The freehold tenure, rear access and double garage add clear functional value and parking convenience.
4 bedroom semi-detached house for sale in Iden Road, Strood, Rochester, Kent. ME2 — £400,000 • 4 bed • 1 bath • 1109 ft²
3 bedroom semi-detached house for sale in Carnation Road, Rochester, Kent. ME2 — £300,000 • 3 bed • 1 bath • 936 ft²
4 bedroom semi-detached house for sale in Rushdean Road, Rochester, Kent, ME2 — £400,000 • 4 bed • 1 bath • 1231 ft²
2 bedroom terraced house for sale in Holcombe Road, Chatham, Kent. ME4 5RU, ME4 — £240,000 • 2 bed • 1 bath • 926 ft²
2 bedroom end of terrace house for sale in Weston Road, Rochester, Kent, ME2 — £225,000 • 2 bed • 1 bath • 710 ft²
3 bedroom semi-detached house for sale in Cadnam Close, Strood, Rochester, ME2 — £380,000 • 3 bed • 1 bath • 1004 ft²


































































