Spacious garden and parking potential near schools and main roads.
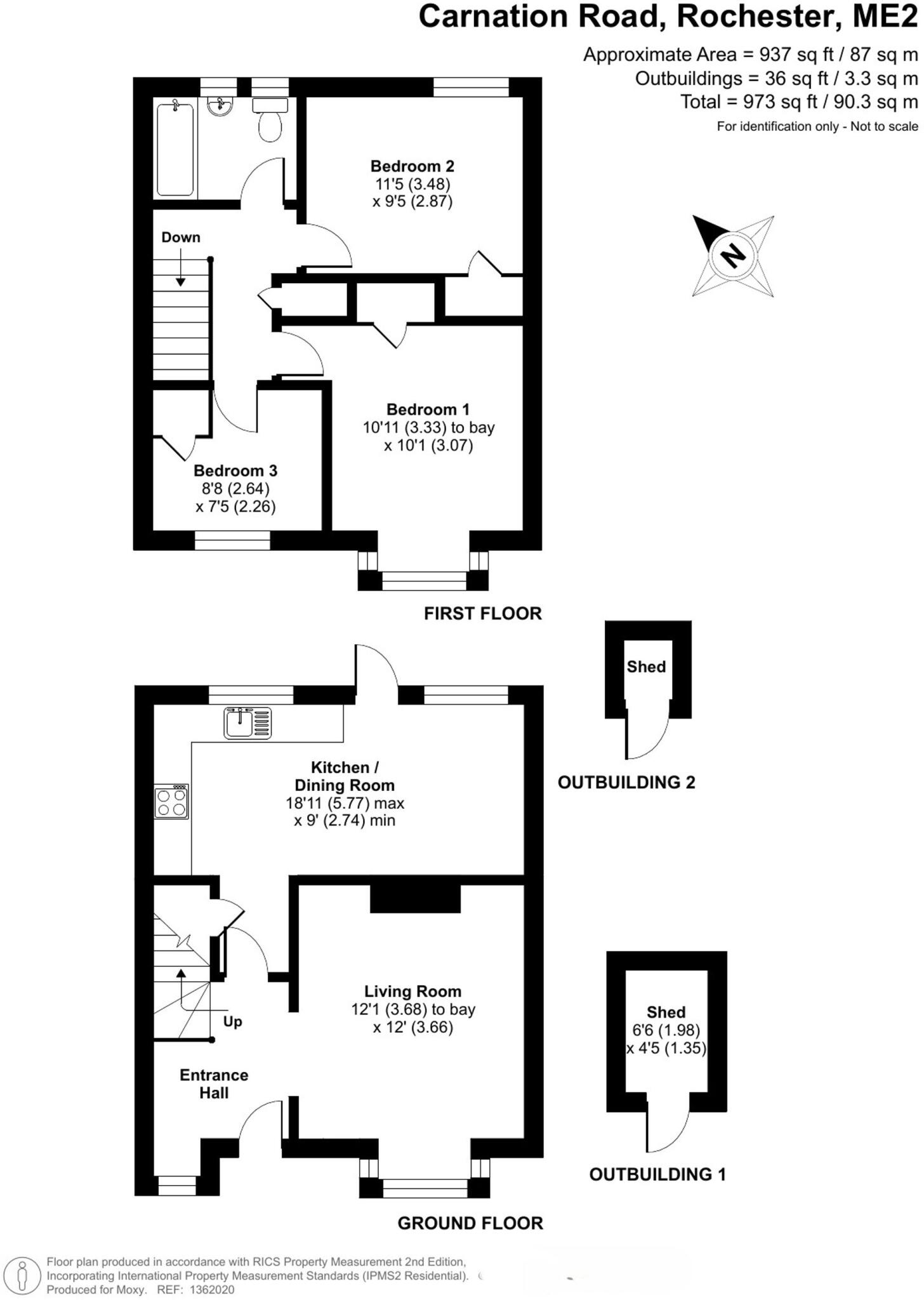
- Elevated, set‑back position with bay‑front living room
- Kitchen/diner opening onto a large rear garden
- Potential to create parking area from rear access
- Three good‑size bedrooms and single first‑floor bathroom
- Double glazing and gas central heating installed
- EPC Grade D; may need energy improvements
- Area has above‑average crime and higher deprivation
- Title contains restrictive covenants to review
This semi‑detached three‑bed home sits elevated and set back from Carnation Road, offering a bright front living room with a bay window and a modern kitchen/diner that opens directly onto a large rear garden. The layout suits families seeking outdoor space and easy access to local shops, schools and the M2/A2.
Bedrooms and the family bathroom occupy the first floor, providing straightforward living across 936 sq ft. The generous garden includes gated rear access and scope to create a parking area at the rear — a practical improvement for modern car owners. Double glazing and gas central heating are already in place.
Buyers should note practical and local considerations: the property has an EPC rating of D, sits in an area with above‑average crime and higher deprivation, and some legal covenants affect the land title. Council Tax Band C is affordable, but the house may benefit from targeted updating or improvements to maximise value.
Overall this is a well‑located, family‑focused home with genuine potential for refurbishment or value‑adding changes (parking creation, garden landscaping, interior modernisation). Prospective buyers should verify tenure, title covenants and fixtures with their solicitor and surveyor before exchange.
3 bedroom semi-detached house for sale in Carnation Road, Strood, ME2 — £310,000 • 3 bed • 1 bath • 967 ft²
4 bedroom semi-detached house for sale in Iden Road, Strood, Rochester, Kent. ME2 — £400,000 • 4 bed • 1 bath • 1109 ft²
3 bedroom terraced house for sale in Maidstone Road, Rochester, Kent. ME1 — £340,000 • 3 bed • 1 bath • 845 ft²
2 bedroom terraced house for sale in Chester Close, Strood, Rochester, Kent. ME2 — £280,000 • 2 bed • 1 bath • 826 ft²
3 bedroom semi-detached house for sale in Copperfield Road, ROCHESTER, ME1 — £300,000 • 3 bed • 1 bath • 679 ft²
3 bedroom semi-detached house for sale in Grasmere Grove, Rochester, ME2 — £375,000 • 3 bed • 1 bath • 969 ft²






























































