Three-bed semi with 120ft garden, double garages and scope to extend (STP)..
Large rear garden approximately 120ft with fruit trees and lawn
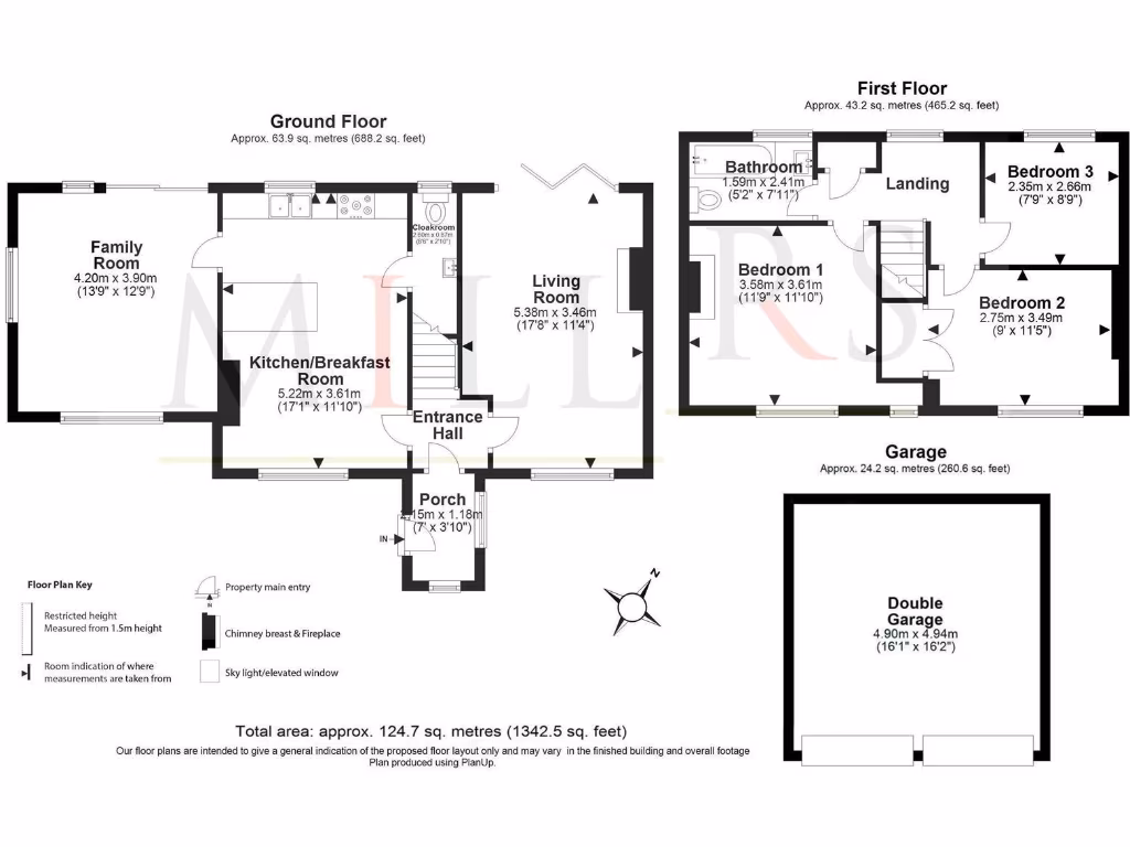
Three bedrooms, three reception rooms and open-plan kitchen/breakfast
Scenic long-range countryside views from garden and living areas
Two garages en bloc to the side; parking provided but detached from plot
Oil-fired boiler and radiators — oil supply, not communal
Single family bathroom; potential need for additional/en-suite facilities
Potential to extend rear (subject to planning) to increase living space
Local crime levels reported higher than average; council tax above average
Set in a peaceful semi-rural lane in Theydon Mount, this 1930s semi-detached cottage offers character, generous outdoor space and far-reaching countryside views. The house provides three bedrooms, three reception rooms and an open-plan kitchen/breakfast room—well suited to family life and flexible layouts. The rear garden extends to around 120ft, with fruit trees and lawn, and there is scope to extend the footprint to the rear subject to planning permission.
Practical features include two garages located en bloc to the side, double glazing and an oil-fired boiler with radiators. The interior retains period charm—fireplaces and wooden floors—paired with practical family spaces such as a ground-floor cloakroom. Commutable links are reasonable: the station is approximately 2.3 miles away and Epping town amenities are a short drive.
Buyers should note a few material points: heating is oil-fired (not on a community supply), there is a single family bathroom, and the garages are detached from the main plot. The area records higher local crime statistics and council tax is above average. The property is presented in generally good condition externally, but internal inspection is recommended to confirm condition and any modernisation needs.
This home will suit buyers seeking rural character, large gardens and extension potential—families wanting outside space and anyone aiming to add value through sympathetic updating and possible rear extension (STP).
3 bedroom cottage for sale in Stewards Green Road, Epping, CM16 — £500,000 • 3 bed • 1 bath • 777 ft²
3 bedroom cottage for sale in Stewards Green Road, Epping, CM16 — £500,000 • 3 bed • 1 bath • 771 ft²
2 bedroom link detached house for sale in Abridge Road, Theydon Bois, Epping, CM16 — £700,000 • 2 bed • 2 bath • 1389 ft²
3 bedroom detached house for sale in Mount End, Theydon Mount, CM16 — £895,000 • 3 bed • 1 bath • 1855 ft²
3 bedroom link detached house for sale in Abridge Road, Theydon Bois, CM16 — £925,000 • 3 bed • 2 bath • 1695 ft²
4 bedroom detached house for sale in Mount End, Theydon Mount, CM16 — £1,100,000 • 4 bed • 2 bath • 1636 ft²






































































































































