**Standout Features:**
- Exclusive development in sought-after Old Shepperton
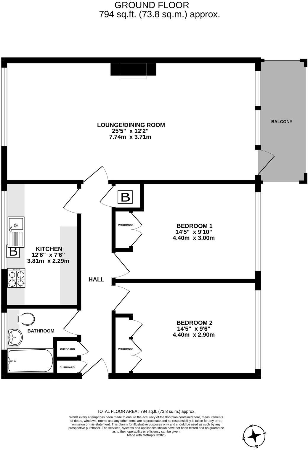
- 2 spacious double bedrooms with fitted wardrobes
- Bright lounge/diner with access to a private balcony overlooking well-maintained communal gardens
- Garage in a block and additional parking available
- Only 0.5 miles from Shepperton High Street and train station
- Close to the scenic River Thames
- Leasehold with 129 years remaining, low ground rent of £30/year
**Potential Concerns:**
- Average-sized property for this development
- Older building with no cavity insulation as assumed
This charming ground floor apartment in an exclusive development offers the perfect blend of space and tranquility. With two generous double bedrooms featuring fitted wardrobes, a bright double-aspect lounge/diner, and a private balcony that opens onto beautifully-kept communal gardens, this home exudes comfort. The property benefits from a well-appointed kitchen equipped with modern appliances and a tiled bathroom. Enjoy the convenience of a garage and ample resident parking, all within walking distance of local shops, cafes, and the Shepperton train station for easy commuting to London. Plus, the picturesque River Thames is just a stone's throw away! With no onward chain, this property is perfect for families or investors looking for a comfortable, attractive residence in a highly desirable area. Don’t miss out on this rare opportunity—schedule a viewing today!
2 bedroom apartment for sale in Fairwater Drive, Shepperton, Surrey, TW17 — £315,000 • 2 bed • 2 bath • 764 ft²
2 bedroom apartment for sale in Fairwater Drive, Shepperton, TW17 — £350,000 • 2 bed • 2 bath • 850 ft²
1 bedroom apartment for sale in Fairwater Drive, Shepperton, TW17 — £279,950 • 1 bed • 1 bath • 570 ft²
2 bedroom apartment for sale in Fairwater Drive, Shepperton, Surrey, TW17 — £325,000 • 2 bed • 2 bath • 578 ft²
2 bedroom apartment for sale in Shepperton Court Drive, Shepperton, TW17 — £280,000 • 2 bed • 1 bath • 635 ft²
1 bedroom apartment for sale in Fairwater Drive, Shepperton, TW17 — £299,900 • 1 bed • 1 bath • 552 ft²














































































































