Auction lot with refurbishment upside for experienced buyers.
Vacant two-bedroom Victorian terraced house, ideal for buy-to-let
Private driveway for off-street parking and small rear garden
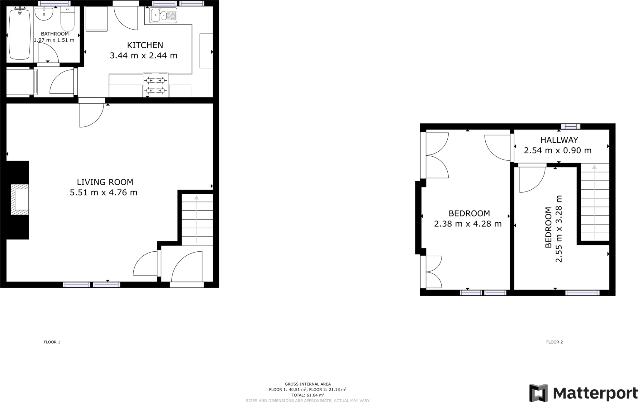
Average interior size ~689 sq ft across two storeys
Sold at auction — Buyer's Premium applies to the purchase
Property is dated and will require modernisation and maintenance
Freehold tenure; no identified flood risk for the postcode
Located in a comfortable neighbourhood with fast broadband
Small plot size limits extension potential without planning
This two-bedroom Victorian terraced house in Seaton Burn is a straightforward investment lot with immediate vacant possession and a private driveway. The property offers a private rear garden and average-sized rooms across two storeys, suitable for rental or refurbishment to add value.
Sold at auction with a Buyer's Premium, the house is best suited to serious investors or developers prepared to modernise. The interior is dated and will require updating; expect cosmetic and possible maintenance work to bring the living room, kitchen and bathroom up to modern standards.
The location sits in a comfortable neighbourhood with good local amenities, fast broadband and excellent mobile signal — practical for tenants. Nearby primary schools have good Ofsted ratings, while transport links and local shops make the property lettable once refurbished.
Material considerations: this is a small-plot terrace with average internal space (approximately 689 sq ft). The property is freehold and has no identified flood risk, but the sale method and required Buyer's Premium mean purchasers should factor in additional transaction costs.
2 bedroom terraced house for sale in Waterbeach Place, Newcastle Upon Tyne, NE5 — £102,000 • 2 bed • 1 bath • 829 ft²
2 bedroom terraced house for sale in Garth Twentyseven, Newcastle Upon Tyne, NE12 — £105,000 • 2 bed • 1 bath • 718 ft²
2 bedroom terraced house for sale in Lesbury Street, Newcastle Upon Tyne, NE15 — £77,000 • 2 bed • 1 bath • 699 ft²
2 bedroom terraced house for sale in Kingston Avenue, Newcastle Upon Tyne, NE6 — £110,000 • 2 bed • 1 bath • 646 ft²
2 bedroom terraced house for sale in Fossway, Walker, Newcastle upon Tyne, Tyne and Wear, NE6 4UJ, NE6 — £45,000 • 2 bed • 1 bath • 665 ft²
2 bedroom terraced house for sale in Sea View, Ashington, NE63 — £55,000 • 2 bed • 1 bath • 668 ft²


































































