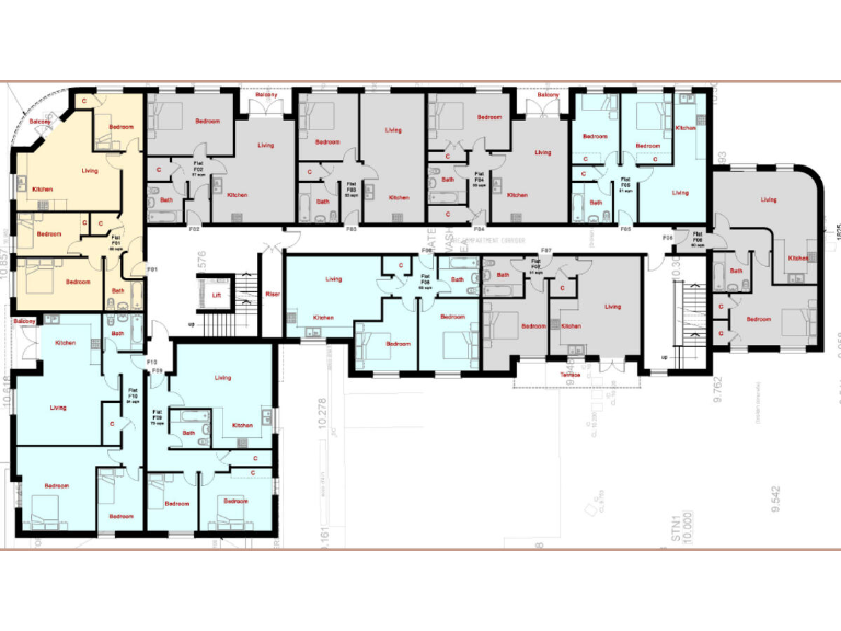
**Standout Features:**
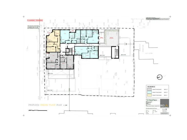
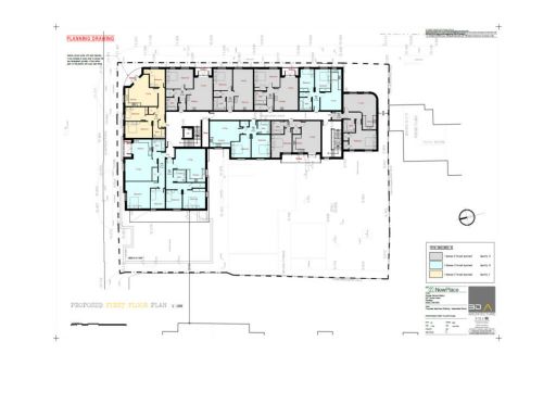
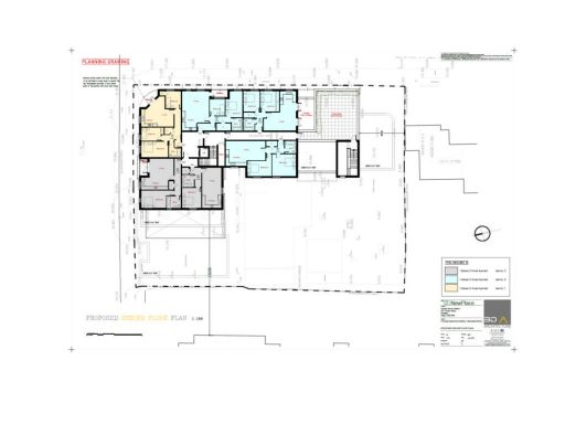
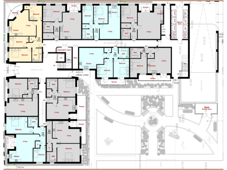
- Full planning approved for 26 apartments
- Mix of 1, 2, and 3-bedroom units available
- Allocated off-street parking and underground secure parking
- Private balconies and terraces for many units
- Large plot size of 17,693 sq ft in a sought-after area
**Property Overview:**
An exceptional investment opportunity in Rayleigh with approved planning for 26 modern apartments, set to attract first-time buyers, investors, and those looking to downsize. This large freehold site offers sufficient scope for a mixture of one, two, and three-bedroom units, complete with private outdoor spaces including balconies and terraces, ensuring appeal and comfort for future residents.
Situated in a desirable suburb with an average crime rate and affluent surroundings, this location benefits from excellent transport links and ample amenities, including nearby schools with good Ofsted ratings. However, the existing structure—a derelict garage and workshop—will require renovation, presenting an opportunity for creative redevelopment into a high-quality living space.
With interested parties encouraged to act quickly, this project represents a unique chance to make a mark in a growing community and capitalise on Rayleigh's vibrant market. Interested investors can inquire for detailed GDV information.
Land for sale in London Road, Rayleigh, SS6 — £1,300,000 • 1 bed • 1 bath • 17693 ft²
Land for sale in Hullbridge Road, Rayleigh, SS6 — £700,000 • 4 bed • 2 bath • 2019 ft²
Plot for sale in Bracken Dell, Rayleigh, SS6 — £600,000 • 1 bed • 1 bath
Commercial development for sale in Castle Road , Rayleigh , Essex, SS6 7QD, SS6 — £1,200,000 • 1 bed • 1 bath
Land for sale in Lot, LAND Poyntens, Rayleigh SS6 7DH, SS6 — £2,000,000 • 1 bed • 1 bath
2 bedroom apartment for sale in High Street, Rayleigh, SS6 — £350,000 • 2 bed • 2 bath • 837 ft²


































































