**Standout Features:**
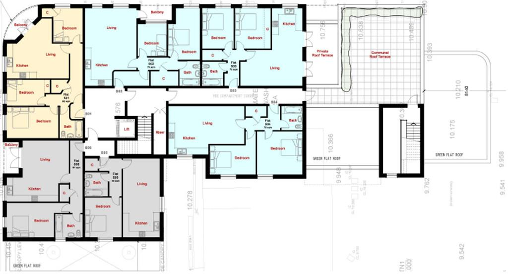
- Full planning approval for 26 high-quality apartments (1, 2, and 3-bedroom options).
- Prime location in sought-after Rayleigh near the vibrant high street.
- Excellent transport links, including nearby rail and major roads.
- Allocated and secure underground parking with no CIL payments required.
- Freehold tenure with potential for mixed-use development alternatives.
This exceptional development opportunity sits in the heart of Rayleigh, featuring planning approval for 26 modern apartments designed to meet the strong demand in this affluent area. Each apartment will boast private balconies or terraces, enhancing the living experience, while residents will benefit from allocated and secure underground parking. The mixed-use property is perfectly situated just moments from the high street, offering unparalleled access to shops, restaurants, and essential amenities. With the region's excellent commuter links—direct trains to London Liverpool Street and easy access to major roadways—this development is ideal for property investors, families, and first-time buyers alike.
Currently attracting interest, this site offers a unique investment potential with no affordable housing obligation, making it a rare find in today’s market. Potential buyers will appreciate the wellbeing aspect of living in a comfortable suburban environment while enjoying a significant opportunity to contribute to the local community. Planning approval (21/00180/FUL) originally granted on 19/01/2023 ensures a seamless transition to building, with future possibilities for renovations or alternative schemes subject to planning (STP). Don’t miss out on this promising offer, as opportunities like this in such a desirable location might not be available for long!
Land for sale in Service Station, Rayleigh,, SS6 — £1,300,000 • 1 bed • 1 bath • 17693 ft²
Commercial development for sale in Castle Road , Rayleigh , Essex, SS6 7QD, SS6 — £1,200,000 • 1 bed • 1 bath
Land for sale in Hullbridge Road, Rayleigh, SS6 — £700,000 • 4 bed • 2 bath • 2019 ft²
Plot for sale in Bracken Dell, Rayleigh, SS6 — £600,000 • 1 bed • 1 bath
Land for sale in Lot, LAND Poyntens, Rayleigh SS6 7DH, SS6 — £2,000,000 • 1 bed • 1 bath
Land for sale in Lot, Land East Of, Hullbridge Road, Rayleigh SS6 9QG, SS6 — £1,000,000 • 1 bed • 1 bath






































































































