**Standout Features:**
- **Type:** 1-bedroom apartment in a popular retirement block
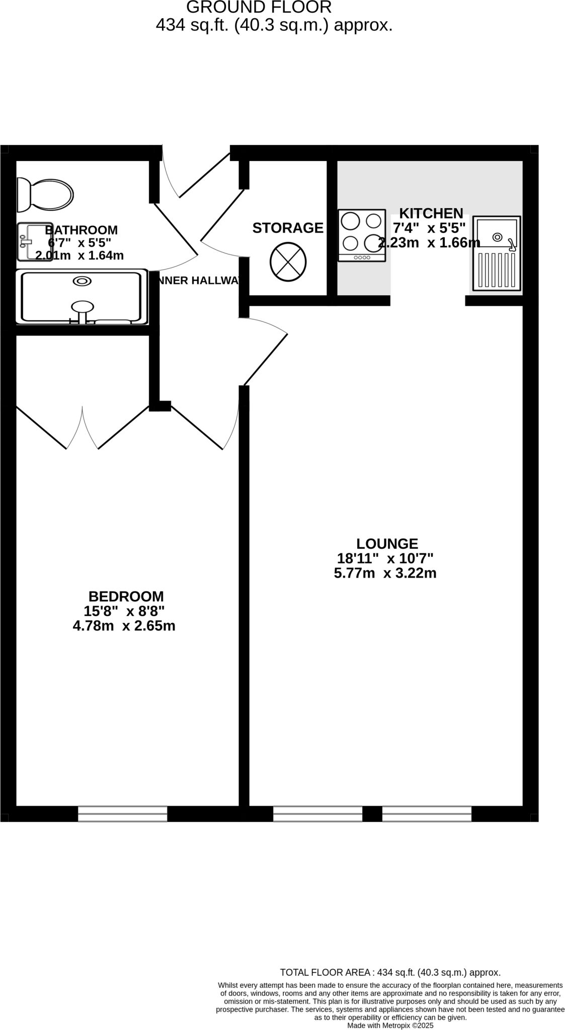
- **Size:** 434 sq ft, second-floor location
- **Condition:** Requires modernization, offering renovation potential
- **Amenities:** Off-street parking, communal garden, laundry, residents lounge with snooker table
- **Location:** Near local shops and the beach
- **Price:** £45,000, chain-free and very affordable council tax
This charming 1-bedroom retirement apartment is a diamond in the rough, nestled in a vibrant cosmopolitan neighborhood close to Portsmouth's stunning beach. While it requires some modernisation, this offers a unique opportunity for buyers to customize their kitchen and bathroom, making it an ideal project for those looking to create their dream space without breaking the bank.
The apartment boasts lovely views over rooftops from its medium-sized living room and features a spacious double bedroom with built-in wardrobes, with additional amenities including a communal garden and a welcoming residents' lounge—perfect for socialising or unwinding.
Situated in a block renowned for its friendly atmosphere, you’ll also benefit from excellent local shops and fast broadband speeds, making it suitable for both retirees and potential investors. Given the attractive price and desirable location, this apartment won't last long on the market! Don't miss your chance to own a slice of this thriving community.
1 bedroom apartment for sale in Cottage Grove, Southsea, Hampshire, PO5 — £55,000 • 1 bed • 1 bath • 402 ft²
1 bedroom apartment for sale in Grove Road North, Southsea, Hampshire, PO5 — £65,000 • 1 bed • 1 bath • 424 ft²
1 bedroom apartment for sale in Victoria Road North, Southsea, Hampshire, PO5 — £59,995 • 1 bed • 1 bath • 413 ft²
1 bedroom apartment for sale in Granada Road, Southsea, PO4 — £85,000 • 1 bed • 1 bath • 393 ft²
1 bedroom apartment for sale in Eastern Villas Road, Southsea, Hampshire, PO4 — £125,000 • 1 bed • 1 bath • 457 ft²
1 bedroom apartment for sale in Eastern Villas Road, Southsea, Hampshire, PO4 — £120,000 • 1 bed • 1 bath • 497 ft²






























