PO5 1DU - 1 bedroom apartment for sale in Cottage Grove, Southsea, Ha…

View on Property Piper

1 bedroom apartment for sale in Cottage Grove, Southsea, Hampshire, PO5

Summary - Cottage Grove, Southsea, Hampshire, PO5 PO5 1DU

1 bed 1 bath Apartment

Affordable one-bed retirement flat with parking and communal facilities, ideal for downsizers.
Chain free one-bedroom first-floor retirement apartment
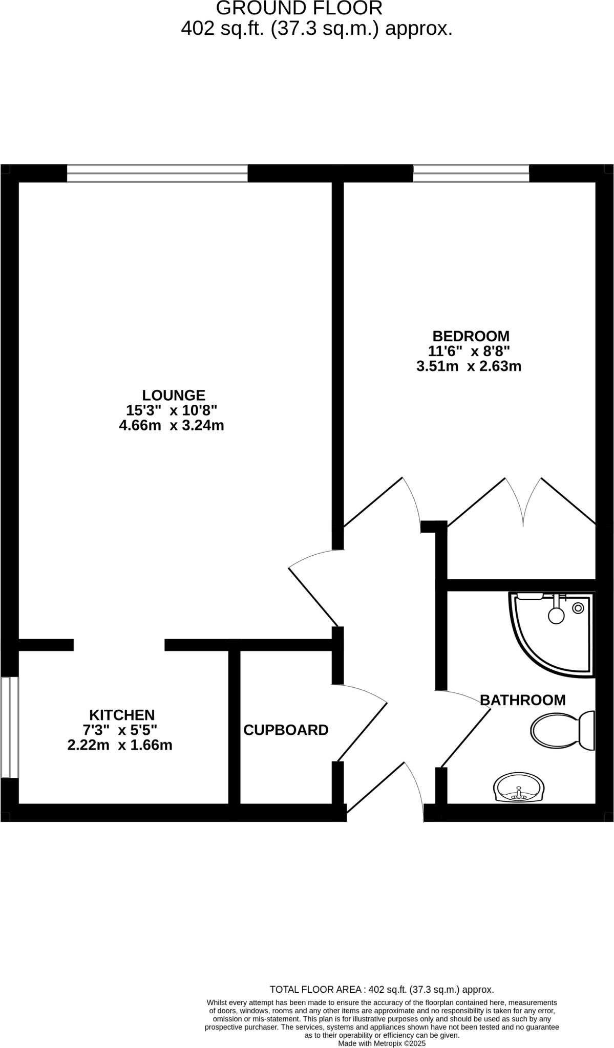
A compact first-floor retirement apartment positioned at the quiet end of a well-regarded block, offered chain free. The layout includes a double bedroom, large sitting room, kitchen with window and a bathroom — a practical one-bedroom home for someone wanting single-level living close to local shops and transport.

The block offers resident-focused amenities: off-street parking, pretty communal gardens, residents’ lounge, laundry and lift access. The flat sits next to an internal corridor with no neighbour on one side, giving extra privacy and quieter living than many similar schemes.

Important practical points: the property is small (around 402 sq ft) and described as dated, so it will benefit from modernisation to refresh the living areas. The lease has 57 years remaining, which may restrict mortgage availability and affect future resale — buyers should check lender requirements and consider lease-extension costs. The surrounding area has higher crime and local deprivation indicators, offset by fast broadband, excellent mobile signal and many nearby amenities.

This apartment suits a downsizer or retiree seeking an affordable, low-maintenance base with communal support facilities. Viewings are recommended to assess the size, condition and to consider the lease position before committing.

Property Details

Image Descriptions

Floorplan Description

Rooms

Textual Property Features

Target Audience

AI Tags

Detected Visual Features

Nearby Schools

Nearest Bars And Restaurants

,,,,}

Nearest General Shops

,,}

Nearest Grocery shops

,,}

Nearest Supermarkets

,,}

Nearest Religious buildings

,,}

Nearest Medical buildings

,,,}

Nearest Airports

}

Nearest Leisure Facilities

,,,,}

Nearest Tourist attractions

,,}

Nearest Train stations

,,,,}

Nearest Bus stations and stops

,,,,}

Nearest Hotels

,,}

Tags

Local Market Stats

AirBnB Data

Similar Properties

Meta

High Res Images

Compatible Images

Low res Images

Thumbnails

Raw Images

High Res Floorplan Images

Compatible Floorplan Images

Low res Floorplan Images

FloorplanImages Thumbnail

Raw Floorplan Images