Long rear garden with a powered cabin — ideal for family life or home working.
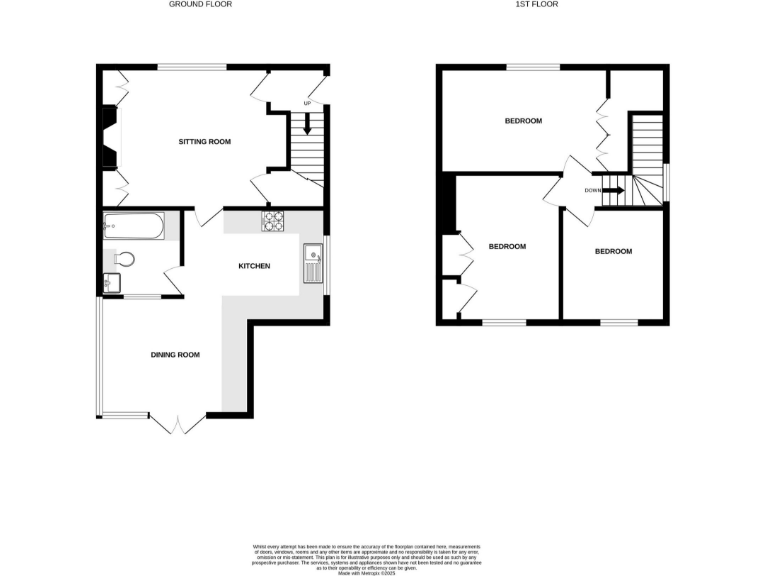
Three bedrooms across two floors, practical family layout
A spacious-feeling three-bedroom end-of-terrace arranged over two floors, set on a modest plot in Deal. The sitting room features a focal fireplace and built-ins, while the extended kitchen/dining room opens directly to a long rear garden that is divided into three areas — excellent for children, entertaining and gardening. At the bottom of the garden is a sizeable cabin (approx 13'4" x 13'3") with power and water, useful as a home office, studio or hobby space.
Practical features include gas-fired central heating, double glazing throughout and off-street driveway parking. The property is offered freehold and comes with a relatively low council tax band, making it affordable to run compared with larger homes nearby. Local primary schools are within easy reach and the town amenities are close by.
Buyers should note the house is modest in overall size (approx 689 sq ft) and has a single family bathroom, so it will suit families who value outdoor space and location over internal floor area. The EPC rating is D and the cavity walls are assumed uninsulated, so there is scope to improve energy efficiency and running costs. There is also a neighbour’s right of access along the rear, which provides practical rear access but does pass along part of the garden.
This home will suit a family or couple seeking an extended period property with a long garden and versatile outbuilding, and for buyers prepared to invest in energy upgrades to maximise comfort and value.
3 bedroom semi-detached house for sale in Redsull Avenue, Deal, CT14 — £269,950 • 3 bed • 1 bath • 797 ft²
3 bedroom end of terrace house for sale in Douglas Road, Deal, Kent, CT14 — £300,000 • 3 bed • 1 bath
3 bedroom terraced house for sale in Douglas Road, Deal, Kent, CT14 — £290,000 • 3 bed • 1 bath • 590 ft²
3 bedroom semi-detached house for sale in Addelam Road, Deal, CT14 — £349,950 • 3 bed • 1 bath • 775 ft²
3 bedroom semi-detached house for sale in Frederick Road, Deal, CT14 — £315,000 • 3 bed • 1 bath • 861 ft²
3 bedroom semi-detached house for sale in St Richards Road, Deal, CT14 — £375,000 • 3 bed • 2 bath • 1195 ft²






































































