CT14 9BZ - 3 bed culdesac family home in Addelam Road, CT14 9BZ

View on Property Piper

3 bedroom semi-detached house for sale in Addelam Road, Deal, CT14

Summary - 27 ADDELAM ROAD DEAL CT14 9BZ

3 bed 1 bath Semi-Detached

Three-bedroom semi with huge driveway and conservatory, ideal for families..
Three bedrooms: two doubles and one good single
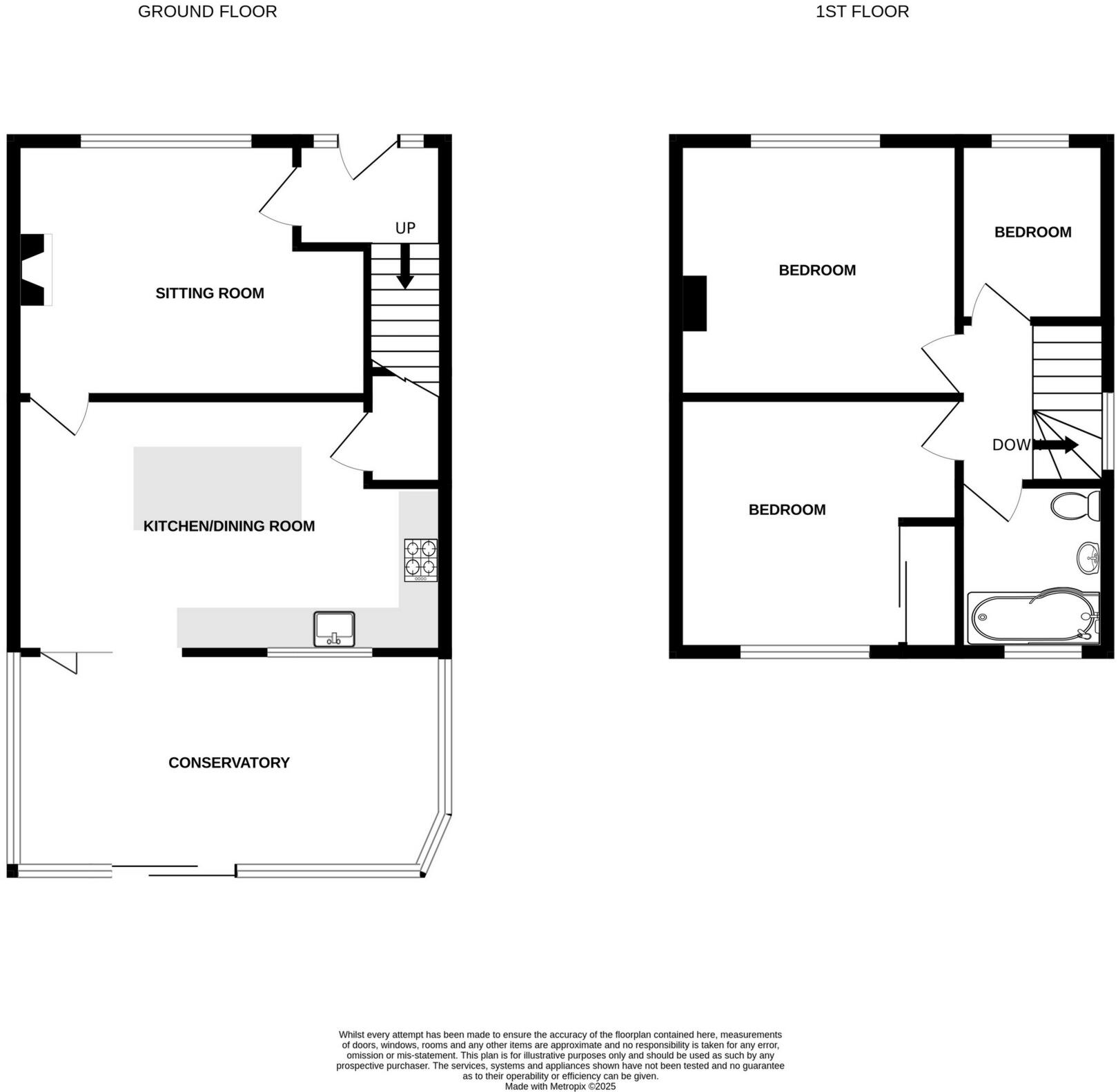
A practical three-bedroom semi-detached home positioned at the end of a quiet cul-de-sac on Addelam Road, ideal for families who value parking and outside space. The ground floor flows from a front sitting room into a kitchen/dining area with a large breakfast bar and bi-folding doors into a roomy conservatory, adding flexible living space. Upstairs are two double bedrooms and a good single, served by a single family bathroom.

Outside, a very large paved driveway provides off-street parking for multiple vehicles and gated side access leads to an enclosed rear garden with patio and raised decking — low-maintenance and private. The house has double glazing and mains gas central heating. Tenure is freehold and there is no flood risk.

Practical points to note: the property is mid-century (1950s–60s) and presents as a tidy, average-sized family home rather than a premium new build. The EPC is rated D and there is only one family bathroom. There is clear scope to update interior fittings or consider an extension subject to planning, which could increase space and value.

This home will suit buyers seeking straightforward family accommodation with excellent parking, decent outdoor amenity and quick, flexible living space via the conservatory. It is especially convenient for nearby primary schools and local town amenities, while offering practical potential for cosmetic improvement or modest enlargement.

Property Details

Brochure Descriptions

Image Descriptions

Floorplan Description

Rooms

Textual Property Features

Target Audience

AI Tags

Detected Visual Features

EPC Details

Nearby Schools

Nearest Bars And Restaurants

,,,,}

Nearest General Shops

,,}

Nearest Grocery shops

,,}

Nearest Supermarkets

,,}

Nearest Religious buildings

,,}

Nearest Medical buildings

,,,}

Nearest Leisure Facilities

,,,,}

Nearest Tourist attractions

,,}

Nearest Train stations

,,,,}

Nearest Bus stations and stops

,,,,}

Nearest Hotels

,,}

Tags

Local Market Stats

AirBnB Data

Similar Properties

Meta

High Res Images

Compatible Images

Low res Images

Thumbnails

Raw Images

High Res Floorplan Images

Compatible Floorplan Images

Low res Floorplan Images

FloorplanImages Thumbnail

Raw Floorplan Images