**Key Features:**
- Excellent development potential for conversion to residential use (subject to planning permission).
- Fully renovated in 2020 with modern facilities and high-quality finishes.
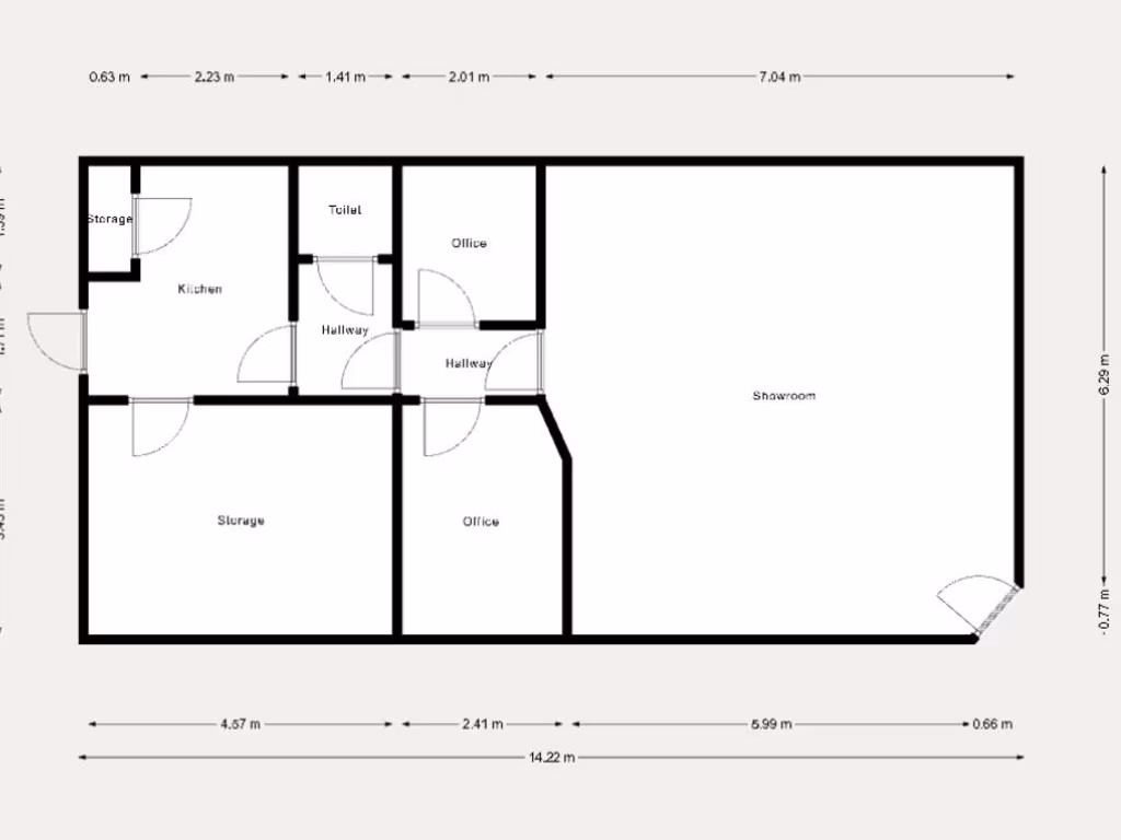
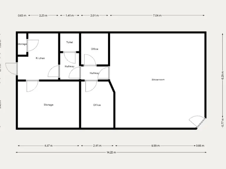
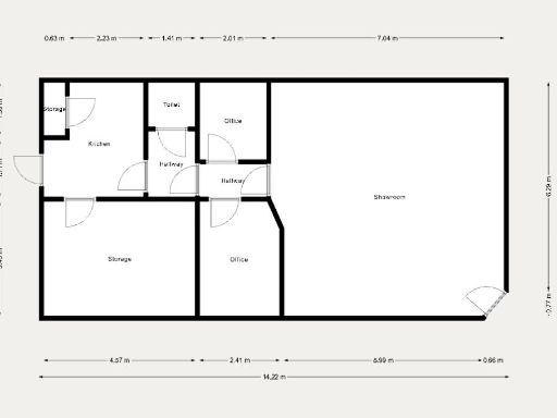
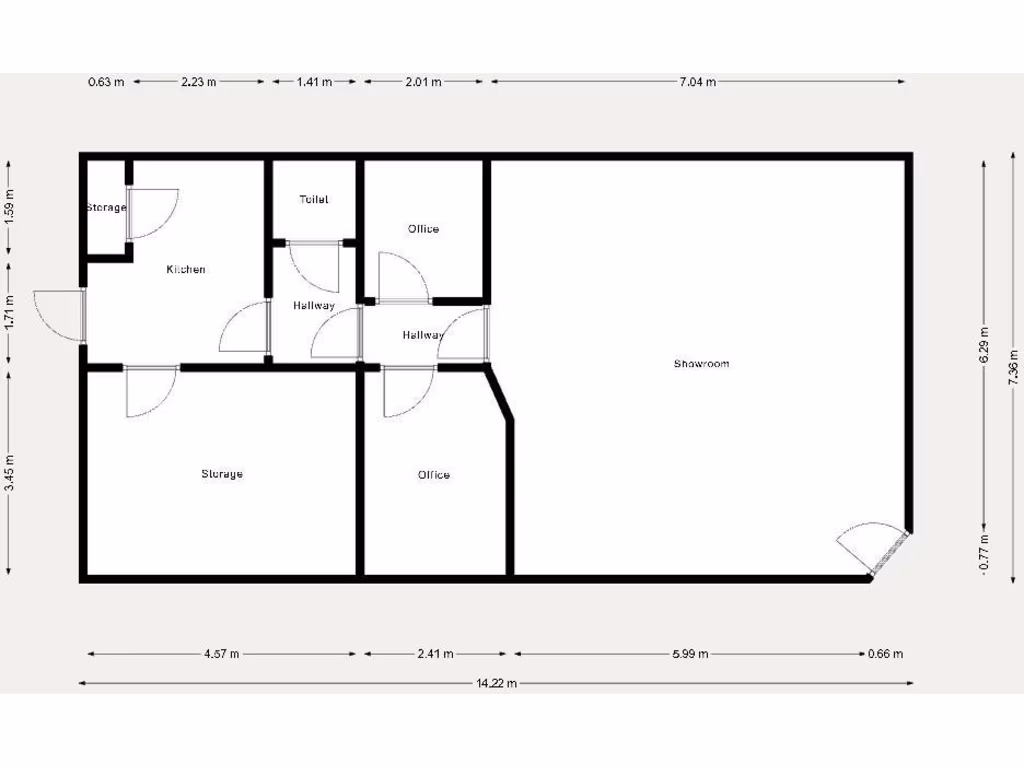
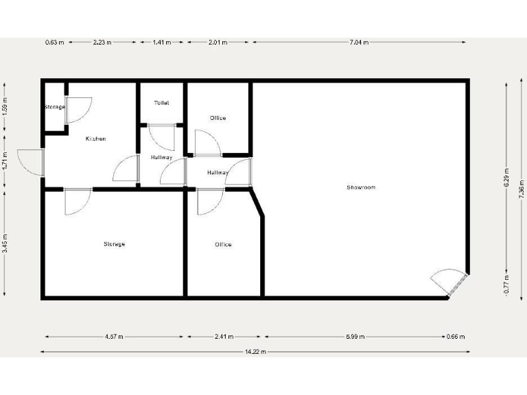
- Spacious layout includes a fitted kitchen, gas combi heating system, 2 offices, and a storeroom.
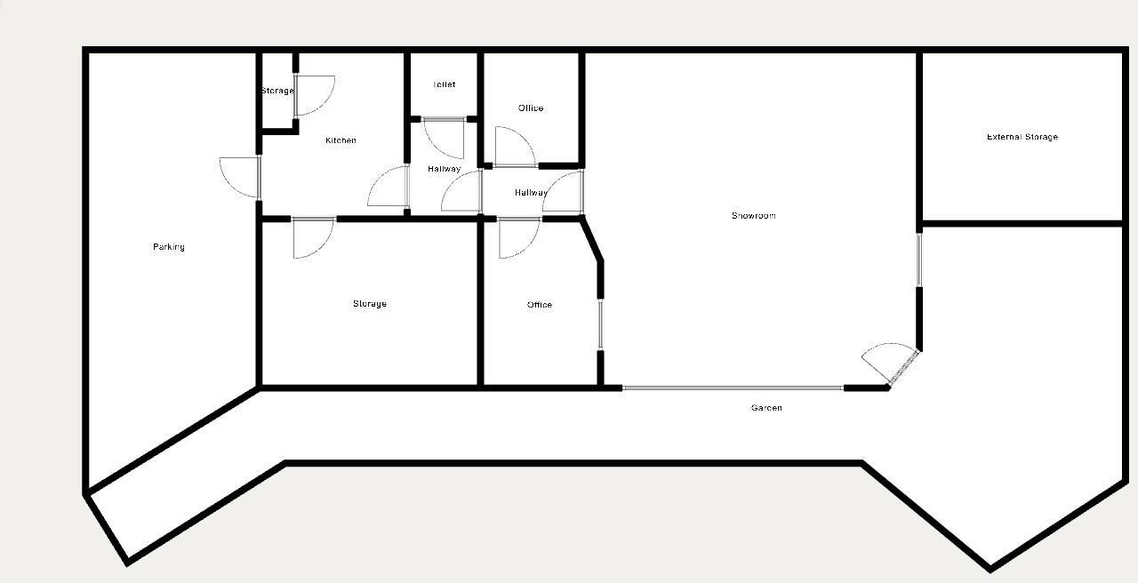
- Off-street parking for two vehicles and additional front storage area.
- Large loft area with the possibility for loft conversion to add extra living space.
This exceptional single-story commercial property on Easton Drive in Shieldhill presents a rare opportunity for investors or developers. Recently renovated, it boasts a modern interior complete with essential amenities like a fitted kitchen, contemporary WC, and well-defined office spaces. The generous footprint of 1,384 sq. ft. allows for flexible adaptation, whether you envision transforming it into a substantial bungalow or subdividing it into two smaller residences.
With ample parking options and potential garden space, this property is not just a commercial unit; it’s a blank canvas for your future. Situated in a comfortable suburban setting, it’s within easy reach of local amenities and great transport links, making it appealing to both families and professionals. Don’t miss out on this versatile investment—explore the potential today and secure your place in this desirable neighborhood!
Commercial property for sale in Vacant Unit and Land with Accommodation, 13-15 Glasgow Road, Dennyloanhead, FK4 1QS, FK4 — £330,000 • 1 bed • 1 bath • 1413 ft²
4 bedroom detached house for sale in Vacant Retail Unit with Accommodation, 13-15 Glasgow Road, Dennyloanhead, Scotland, FK4 1QS, FK4 — £295,000 • 4 bed • 1 bath
Commercial property for sale in 7 Chapel Street, High Valleyfield, Dunfermline, KY12 8SJ, KY12 — £39,000 • 1 bed • 1 bath • 648 ft²
Out-of-town retail property for sale in Grahams Road, Falkirk, Stirlingshire, FK1 — £900,000 • 1 bed • 1 bath • 6972 ft²
Commercial property for sale in New Horizons (Hallglen) Ltd 406 Greengairs Road, Greengairs, Airdrie, ML6 7TQ, ML6 — £360,000 • 1 bed • 1 bath • 8000 ft²
Commercial property for sale in 64 West Main Street, Harthill, ML7 5QD, ML7 — £99,000 • 1 bed • 1 bath • 1082 ft²














































































































