ML6 7TQ - Commercial property for sale in New Horizons (Hallglen) Ltd…

View on Property Piper

Commercial property for sale in New Horizons (Hallglen) Ltd 406 Greengairs Road, Greengairs, Airdrie, ML6 7TQ, ML6

Summary - 406, GREENGAIRS ROAD ML6 7TQ

1 bed 1 bath Commercial Property

**Standout Features:**
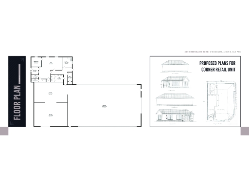
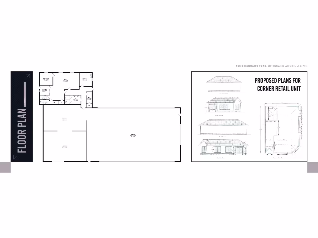
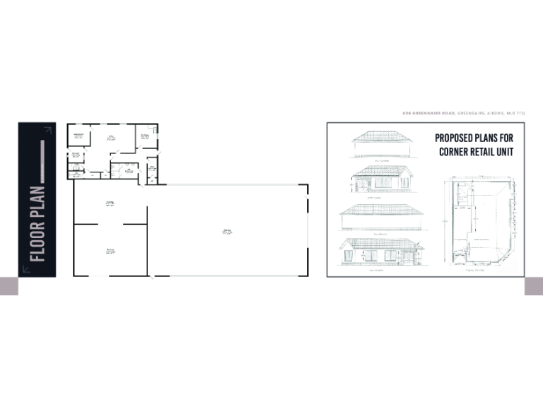
- Exceptional commercial unit spanning approximately 8,000 sq ft.
- Located on a substantial 1.46-acre site with development potential.
- Previously approved plans for 16 homes and a 140 sq meter retail unit.
- Large goods entrance with roller shutter for efficient logistics.
- Versatile workshop and open-plan office space.
- Generous yard offering abundant parking and storage.

**Potential Downsides:**
- Lapsed planning permissions may require reapplication for development.
- Average mobile coverage.

Nestled in the heart of Greengairs, Airdrie, this expansive commercial distribution and manufacturing warehouse presents a unique investment opportunity. Encompassing around 8,000 sq ft, the property is ideally positioned for businesses looking to flourish in the bustling Glasgow/Edinburgh corridor. The site features significant development potential, having previously secured planning for 16 residential homes and a retail unit—options that could easily be revisited with a fresh application.

The facility boasts a large goods entrance, accommodating seamless loading and unloading, and houses both a spacious workshop and modern office setup for effective client engagement. A generous one-acre yard enhances operational efficiency, making this space perfect for businesses requiring ample storage or parking.

Though the property comes with the possibility of expanding into residential development, prospective buyers should note that the previous planning permissions are now lapsed. With an attractive price point of £360,000, this property caters to entrepreneurs and expanding companies alike. Don't miss the chance to establish or grow your business in this strategic location—early viewings are highly recommended!

Property Details

Brochure Descriptions

Image Descriptions

Floorplan Description

Rooms

Textual Property Features

Detected Visual Features

Nearest Bars And Restaurants

,,,,}

Nearest General Shops

,,}

Nearest Grocery shops

,,}

Nearest Supermarkets

,,}

Nearest Religious buildings

,,}

Nearest Medical buildings

,,,}

Nearest Airports

,}

Nearest Leisure Facilities

,,,,}

Nearest Tourist attractions

,,}

Nearest Train stations

,,,,}

Nearest Bus stations and stops

,,,,}

Nearest Hotels

,,}

Tags

Local Market Stats

Similar Properties

Meta

High Res Images

Compatible Images

Low res Images

Thumbnails

Raw Images

High Res Floorplan Images

Compatible Floorplan Images

Low res Floorplan Images

FloorplanImages Thumbnail

Raw Floorplan Images