Affordable city home with garden and clear upgrade potential for buyers.
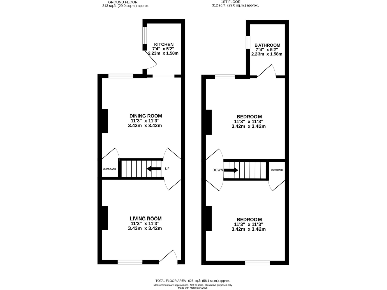
Vacant two-bedroom Victorian mid-terrace, approx 625 sq ft
Modern kitchen and bathroom; redecorated throughout
Long bisected rear garden with alley access; small plot
Freehold tenure; Council Tax Band A (very cheap)
Sold by livestream auction; additional fees and legal pack apply
Heating via electric room heaters; no central heating present
Solid brick walls likely uninsulated; potential energy upgrade needed
EPC E; suitable for immediate occupation or light refurbishment
This Victorian mid-terrace offers a compact, well-presented two-bedroom layout ideal for a first-time buyer or investor seeking a city property with rental potential. The house is vacant, has been redecorated throughout, and benefits from a modern kitchen and bathroom — ready to occupy or let immediately.
Practical positives include double glazing, fast broadband and excellent mobile signal, a long bisected rear garden with alley access, and very low council tax (Band A). The property is freehold and sits within convenient walking distance of local shops, schools and public transport in north Norwich.
Buyers should note material details: heating is by electric room heaters, the walls are original solid brick (likely uninsulated), and the EPC is rated E. The plot is small and the property is an average overall size (about 625 sq ft), so further insulation or heating upgrades and some garden work would improve comfort and energy costs. The property will be sold at livestream auction — check the legal pack for disbursements and note the administration fee (£1,200 inc VAT) and buyer’s premium (£600 inc VAT) payable on exchange.
This house suits someone wanting an affordable Victorian home close to amenities, or an investor after a straightforward let-ready property with clear, short-term upgrade opportunities.
4 bedroom end of terrace house for sale in 103 Gloucester Street, Norwich, Norfolk NR2 2DY, NR2 — £275,000 • 4 bed • 1 bath • 1197 ft²
1 bedroom end of terrace house for sale in 18 Oak Lane, Norwich, Norfolk NR3 3QJ, NR3 — £115,000 • 1 bed • 1 bath • 570 ft²
3 bedroom terraced house for sale in Cardiff Road, Norwich, Norfolk, NR2 — £175,000 • 3 bed • 1 bath • 753 ft²
1 bedroom ground floor flat for sale in 124A Waterloo Road, Norwich, Norfolk NR3 3HZ, NR3 — £60,000 • 1 bed • 1 bath • 327 ft²
3 bedroom terraced house for sale in 47 Cardiff Road, Norwich, Norfolk NR2 3HR, NR2 — £195,000 • 3 bed • 1 bath • 733 ft²
2 bedroom flat for sale in Flat 2, Kent House, 44 St. Stephens Road, Norwich, Norfolk NR1 3RE, NR1 — £120,000 • 2 bed • 2 bath • 689 ft²






















































