Four-bedroom Victorian home near university with strong rental and refurbishment potential.
Bay-fronted Edwardian living room with high ceilings and sash bay windows
Recently replaced gas boiler; redecorated and new carpets throughout
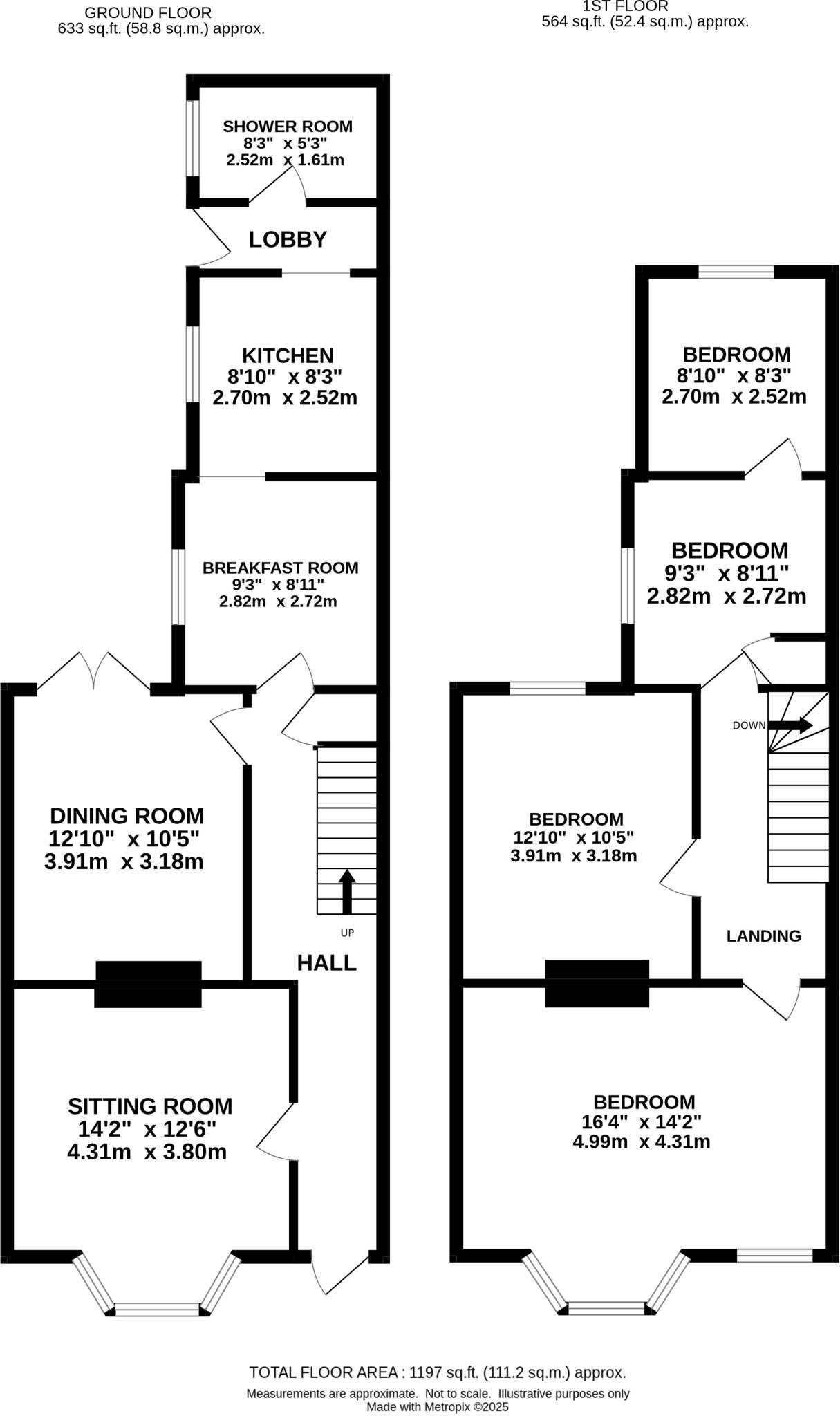
Single bathroom; third bedroom currently divided into two areas
Small, non-bisected courtyard-style rear garden; modest plot size
Solid brick walls, likely no insulation; EPC rating E
Sold by livestream auction on 22 Oct 2025; fees and legal pack apply
Freehold; long-term lets previously possible — now vacant for immediate use
Requires kitchen and bathroom modernisation; renovation potential
Set in the sought-after Golden Triangle just off Unthank Road, this four-bedroom Victorian end-terrace offers strong rental appeal and owner-occupation potential. The house has been recently redecorated, new carpets fitted and benefits from a recently replaced gas boiler. A bay-fronted living room and flexible first-floor layout create immediate usable space while the property awaits modernisation in parts.
The interior includes a bay-front lounge, dining room, breakfast room, kitchen, bathroom and three bedrooms on the first floor (the third bedroom is currently divided, allowing scope to reinstate a fourth bedroom or add a first-floor bathroom). The small, non-bisected courtyard-style rear garden provides private outdoor space but the plot is modest in size. Construction predates 1900 with solid brick walls and no known insulation in the cavity, so energy improvements are likely required—EPC rated E.
Important sale details: the property is offered freehold and will be sold by livestream auction on 22 October 2025 at 10:00am; buyers should check the legal pack for disbursements. An administration fee of £1,200 (inc. VAT) and a buyer’s premium of £600 (inc. VAT) are payable on exchange. The house has been vacant after long-term tenancy, giving immediate possession for investors or new owners.
This home suits buyers seeking a character property with refurbishment potential in a cosmopolitan student and professional neighbourhood. Proximity to the university, hospital and local amenities supports rental demand, while sensible investment in insulation, kitchen and bathroom modernisation could raise comfort and value.
3 bedroom terraced house for sale in 10 Rutland Street, Norwich, Norfolk NR2 2AZ, NR2 — £200,000 • 3 bed • 1 bath • 717 ft²
3 bedroom terraced house for sale in 47 Cardiff Road, Norwich, Norfolk NR2 3HR, NR2 — £195,000 • 3 bed • 1 bath • 733 ft²
2 bedroom terraced house for sale in 48 Bull Close Road, Norwich, Norfolk NR3 1NG, NR3 — £100,000 • 2 bed • 1 bath • 538 ft²
3 bedroom terraced house for sale in Cardiff Road, Norwich, Norfolk, NR2 — £175,000 • 3 bed • 1 bath • 753 ft²
4 bedroom semi-detached house for sale in 15 Wakefield Road, Norwich, Norfolk NR5 8JE, NR5 — £160,000 • 4 bed • 2 bath • 867 ft²
3 bedroom terraced house for sale in 187 Queens Road, Norwich, Norfolk NR1 3PP, NR1 — £180,000 • 3 bed • 1 bath • 770 ft²






























































