Solar panels and south garden ideal for cost-conscious buyers or landlords.
Two double bedrooms with modern refitted kitchen and bathroom
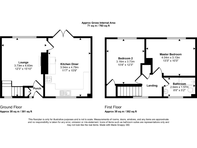
A compact two-bedroom semi in central Peterlee offering clear value for first-time buyers or buy-to-let investors. The house comes with freehold solar panels, double glazing and gas central heating, helping to keep running costs low. Interiors include a modern refitted kitchen and bathroom and comfortable living spaces across approximately 763 sq ft.
Outside, the south-facing rear garden and secure playing fields to the front are genuine pluses for families and tenants who want outdoor space. The plot is small and the exterior shows wear from the original 1930–49 build period, so modest external refurbishment and garden tidying will be needed to unlock full kerb appeal.
This property sits in an area with high crime levels and marked social and economic deprivation; those factors should be weighed against the low asking price of £75,000 and an estimated achievable rent of about £625 pcm. Council tax is very low, and transport links and local schools rated Good make the location practical despite wider area challenges.
Overall this is a straightforward, affordable purchase with immediate rental potential or scope for modest improvement. It will suit buyers who prioritise value and running-cost efficiencies from the solar panels, and who are comfortable managing or mitigating local-area issues.
2 bedroom semi-detached house for sale in Eden Lane, Peterlee, Durham, SR8 5ND, SR8 — £75,000 • 2 bed • 1 bath • 770 ft²
2 bedroom house for sale in Eden Lane, Peterlee, SR8 — £77,000 • 2 bed • 1 bath • 965 ft²
2 bedroom semi-detached house for sale in South Crescent, Peterlee, SR8 — £60,000 • 2 bed • 1 bath • 689 ft²
2 bedroom end of terrace house for sale in Harrison Close, Peterlee, SR8 — £70,000 • 2 bed • 1 bath • 948 ft²
2 bedroom terraced house for sale in Kirkstone Avenue, Peterlee, County Durham, SR8 — £70,000 • 2 bed • 1 bath
3 bedroom house for sale in Adrian Place, Peterlee, England, SR8 — £60,000 • 3 bed • 1 bath


























































































