**Standout Features:**
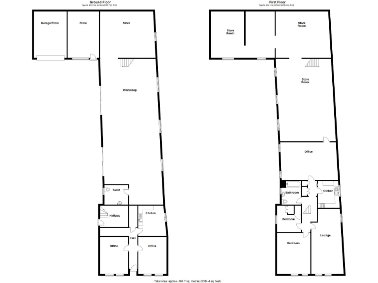
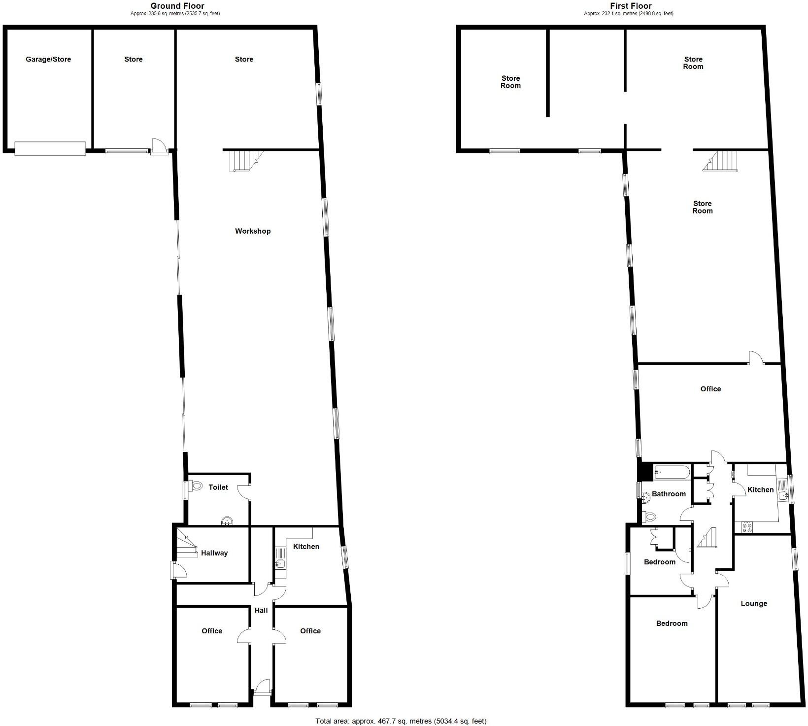
- **Sizeable Property**: Total area of 5,030 sqft on 0.2 acres, including 3,495 sqft of warehouse and storage space.
- **Versatile Spaces**: Combination of offices and a modernized residential apartment with two bedrooms.
- **Prime Location**: Situated in the thriving village of Kirton, near a vibrant center with essential amenities.
- **Investment Potential**: Ideal for commercial ventures, residential development, or rural workshops.
- **Excellent Access**: Off-street parking available, contributing to convenience for business activities.
**Summary:**
This expansive two-storey freehold commercial property on Station Road, Kirton, presents an exciting opportunity for investors or business owners seeking multifunctional space. Spanning 5,030 sqft with a 3,495 sqft warehouse, the property offers flexibility for various uses. The ground floor is ideal for warehousing or as open office space, while the modernized first-floor apartment boasts two bedrooms, perfect for potential rental income or staff accommodation.
Kirton is a growing village with over 5,000 residents and is experiencing significant residential development, enhancing its appeal for future growth. Local amenities like cafes, shops, and schools are within easy reach, which can attract customers or tenants. This property not only provides ample space but also the possibility to capitalize on mixed-use development or create workshops, ensuring a strong return on investment.
Please be aware of the above-average crime rate in the area; however, the affluence and rural charm of the neighborhood contribute to its secure community feel. With its competitive pricing and vacant possession, this property represents a rare opportunity that shouldn't be overlooked.
High street retail property for sale in High Street, Kirton, Boston, PE20 1DR, PE20 — £325,000 • 1 bed • 1 bath • 13504 ft²
Commercial property for sale in Willington Road, Kirton, Boston, PE20 — £85,000 • 1 bed • 1 bath • 900 ft²
3 bedroom town house for sale in Station Road, Kirton, PE20 1EF, PE20 — £200,000 • 3 bed • 2 bath • 549 ft²
Industrial development for sale in Freiston Enterprise Park, Priory Road, Boston, Lincolnshire, PE22 0JZ, PE22 — £925,000 • 1 bed • 1 bath • 18427 ft²
2 bedroom detached house for sale in Lighton Avenue, Kirton, PE20 1BY, PE20 — £218,000 • 2 bed • 2 bath • 1066 ft²
Commercial property for sale in Main Road, Fosdyke, Boston, PE20 — £799,000 • 1 bed • 2 bath • 8000 ft²






























































