**Standout Features:**
- Freehold high street retail property with vacant possession
- Expansive site of 0.31 acres (1,294sqm)
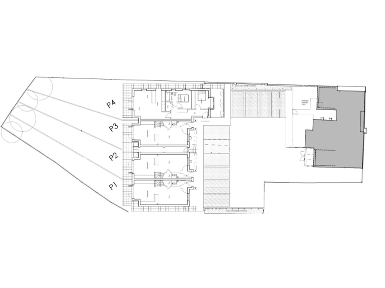
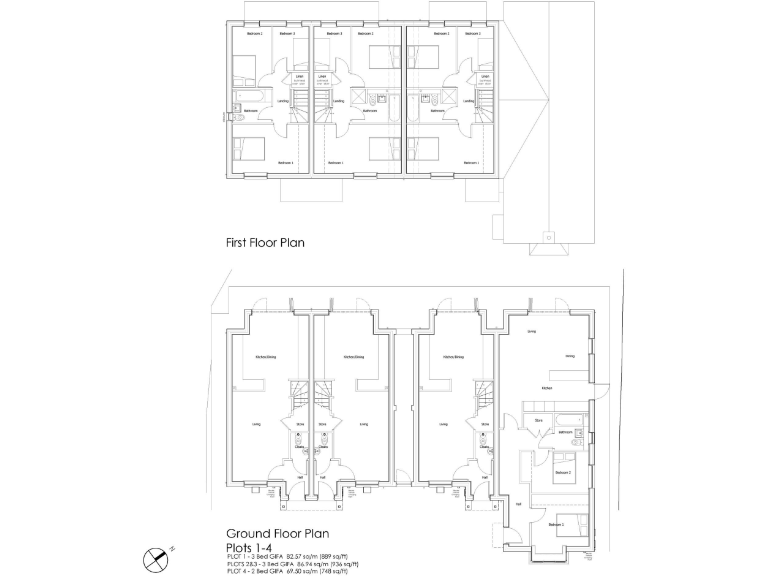
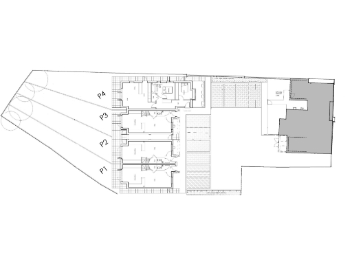
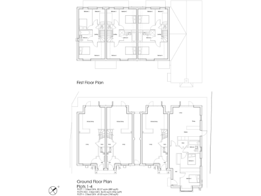
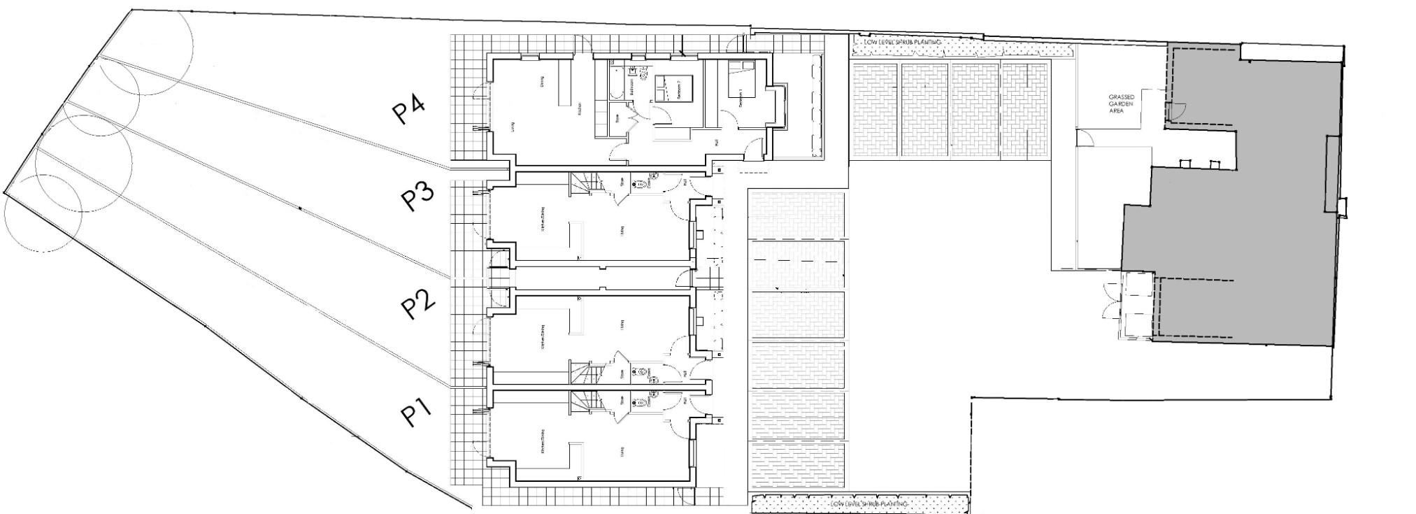
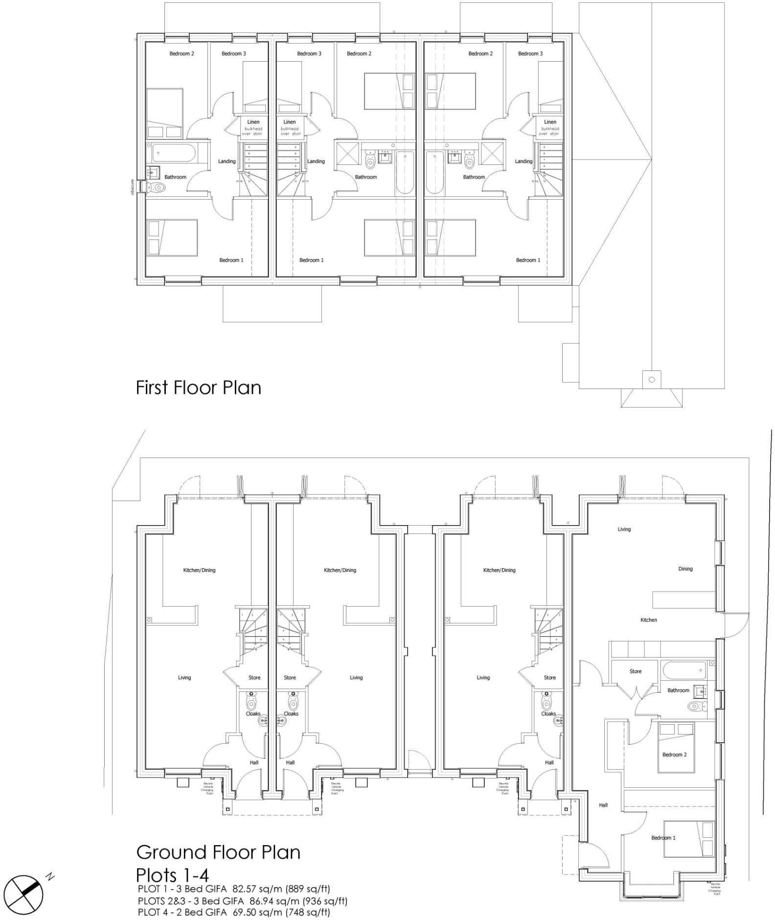
- Existing buildings totaling 4,400sqft with planning approval for 3 three-bedroom terraced houses and 1 two-bedroom bungalow
- Prime central location in the growing village of Kirton, with a population of over 5,000
- Surrounded by a mix of commercial and residential properties
- Accessibility to a variety of local amenities
- Garage and enclosed courtyard with vehicular access
**Summary:**
Unlock the potential of this substantial development site located centrally on High Street in Kirton, Boston. Spanning 0.31 acres, this property features existing structures totaling 4,400sqft, including both commercial and residential spaces ripe for renovation. With planning consent in place for three three-bedroom terraced homes and a two-bedroom bungalow, it presents a fantastic opportunity for investors or builders looking to tap into the burgeoning residential market in the area.
Nestled among a blend of residents and businesses, the property offers easy access to essential amenities, including schools, health services, and shops within walking distance. While the property may require renovation work given its previous commercial use, its large plot and generous footprint allow for great flexibility in design and future developments. Explore the possibilities and envision creating a vibrant mix of homes in this appealing, community-centered locale. Don't miss out on this unique opportunity—properties like this are rare!
Commercial property for sale in Station Road, Kirton, Boston, PE20 1LD, PE20 — £340,000 • 2 bed • 1 bath • 5030 ft²
Industrial development for sale in Freiston Enterprise Park, Priory Road, Boston, Lincolnshire, PE22 0JZ, PE22 — £925,000 • 1 bed • 1 bath • 18427 ft²
8 bedroom detached house for sale in 97 and 99, London Road, Kirton, PE20 1JH, PE20 — £375,000 • 8 bed • 1 bath • 21780 ft²
3 bedroom town house for sale in Station Road, Kirton, PE20 1EF, PE20 — £200,000 • 3 bed • 2 bath • 549 ft²
Land for sale in Strait Bargate, Boston, Lincolnshire, PE21 — £3,250,000 • 1 bed • 1 bath
Commercial property for sale in Willington Road, Kirton, Boston, PE20 — £85,000 • 1 bed • 1 bath • 900 ft²






































































