Large single-storey home with garage, garden and loft potential.
Three double bedrooms and large living spaces
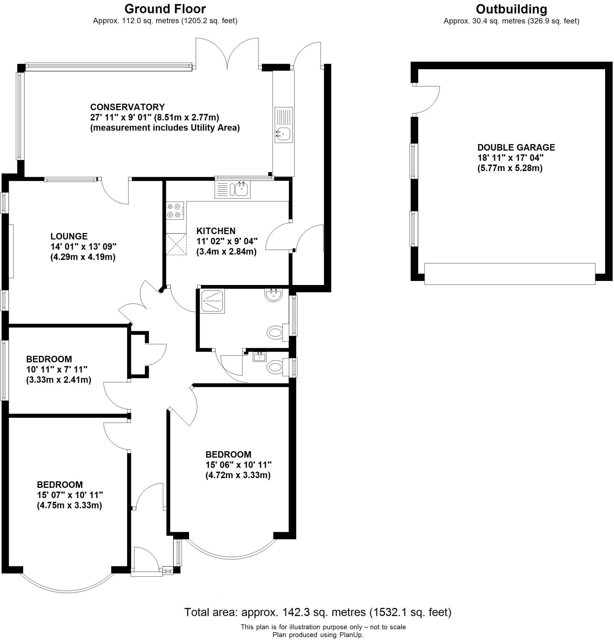
A roomy three-bedroom detached bungalow on a large plot in Orpington, offered chain free and within comfortable walking distance of the High Street and station. The home feels bright through large bay windows and a long conservatory that opens onto a well-proportioned rear garden — ideal for children and outdoor entertaining. The generous plot includes off-street parking and a double garage accessed via a rear service road.
The layout is traditional and practical: entrance hall, lounge, kitchen, utility area, wet-room shower, separate WC and three bedrooms. There is clear scope to add value by extending into the loft (subject to planning) or modernising the interior — many neighbouring properties have successfully extended. The conservatory provides considerable additional living space and garden views.
Buyers should note some material facts: the house is of solid brick construction with no confirmed cavity insulation, double glazing was installed before 2002, and the accommodation is single-storey with one principal bathroom (wet-room style) plus a separate WC. Council Tax Band E reflects higher running costs. These are practical considerations for anyone budgeting for ongoing maintenance or updating works.
For families seeking an established, spacious home in an affluent suburb with excellent local schools and fast connections into central London, this property represents a strong blank-canvas opportunity. The combination of plot size, garage parking and loft-extension potential will appeal to buyers wanting space now and scope to increase value later.
3 bedroom detached bungalow for sale in Court Road, Orpington, BR6 — £550,000 • 3 bed • 1 bath • 894 ft²
2 bedroom detached bungalow for sale in Goddington Lane, Orpington, BR6 — £550,000 • 2 bed • 1 bath • 840 ft²
3 bedroom semi-detached bungalow for sale in Somerden Road, Orpington, BR5 — £465,000 • 3 bed • 1 bath • 826 ft²
3 bedroom bungalow for sale in Forest Way, Orpington, BR5 — £625,000 • 3 bed • 1 bath • 1171 ft²
3 bedroom bungalow for sale in Mungo Park Way, Orpington, BR5 — £450,000 • 3 bed • 1 bath • 1024 ft²
4 bedroom semi-detached house for sale in Court Road, Orpington, BR6 — £550,000 • 4 bed • 1 bath • 1142 ft²










































































































