Spacious open-plan living close to top-rated schools and fast trains to London.
Chain-free, share of freehold with 999-year lease from 2019
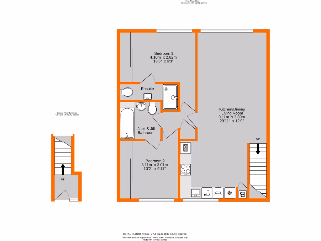
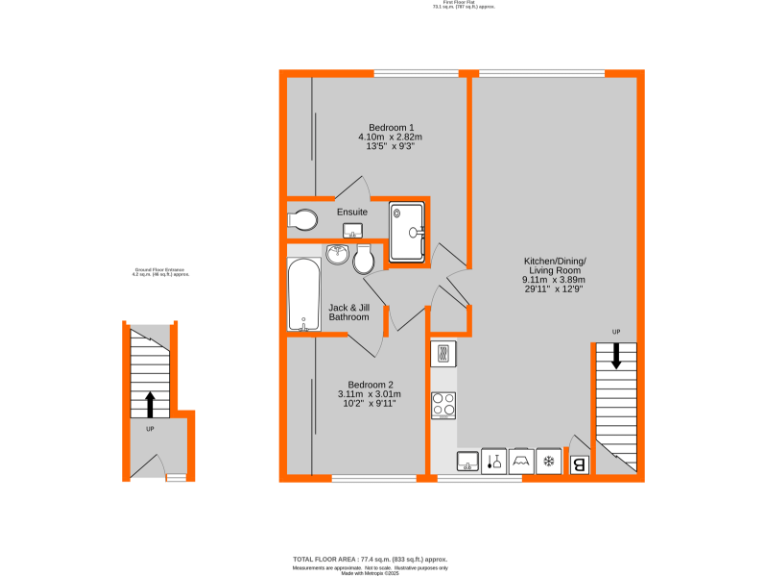
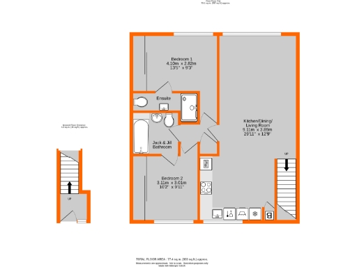
Bright, chain-free and recently modernised, this two-bedroom first-floor maisonette sits at the end of a quiet cul-de-sac in Bromley. The heart of the home is a 29'11" open-plan kitchen/dining/living room with contemporary fitted units and integrated appliances, ideal for sociable family evenings or flexible working-from-home layouts. The principal bedroom benefits from fitted wardrobes and an en suite shower; a second double bedroom and a Jack-and-Jill bathroom complete the accommodation.
Practical features appeal to everyday life: a garage en bloc, your own front lawned garden, gas central heating via a Vaillant boiler, double glazing and a very long lease (999 years from 2019). Local conveniences include outstanding primary schools (Pickhurst Infant and Junior), nearby green spaces and regular buses to Bromley High Street and Bromley South station (about 0.9 mile), with fast services to central London.
Buyers should note the block is mid‑century construction (c.1950–66) with cavity walls where external insulation is not recorded; external areas have a simple, slightly dated finish and may need cosmetic attention. The garage is en bloc rather than immediately adjacent private parking. Overall this property suits first‑time buyers or investors seeking a ready-to-move-in maisonette close to schools and transport, while buyers wanting a completely modernised exterior or confirmed wall insulation should factor in potential follow-up works.
2 bedroom maisonette for sale in Mapleton Close, Bromley, BR2 — £355,000 • 2 bed • 1 bath • 786 ft²
2 bedroom maisonette for sale in Stanstead Close, Bromley, BR2 — £375,000 • 2 bed • 1 bath • 823 ft²
2 bedroom maisonette for sale in South Hill Road, Bromley, BR2 — £499,000 • 2 bed • 1 bath • 822 ft²
2 bedroom maisonette for sale in Penshurst Walk, Bromley, Kent, BR2 — £350,000 • 2 bed • 1 bath • 914 ft²
2 bedroom maisonette for sale in Tredwell Close, Bromley, BR2 — £425,000 • 2 bed • 1 bath • 881 ft²
2 bedroom maisonette for sale in Valley Road, Bromley, BR2 — £275,000 • 2 bed • 1 bath • 898 ft²






































