Ideal low-maintenance home close to Carpenders Park station for commuters.
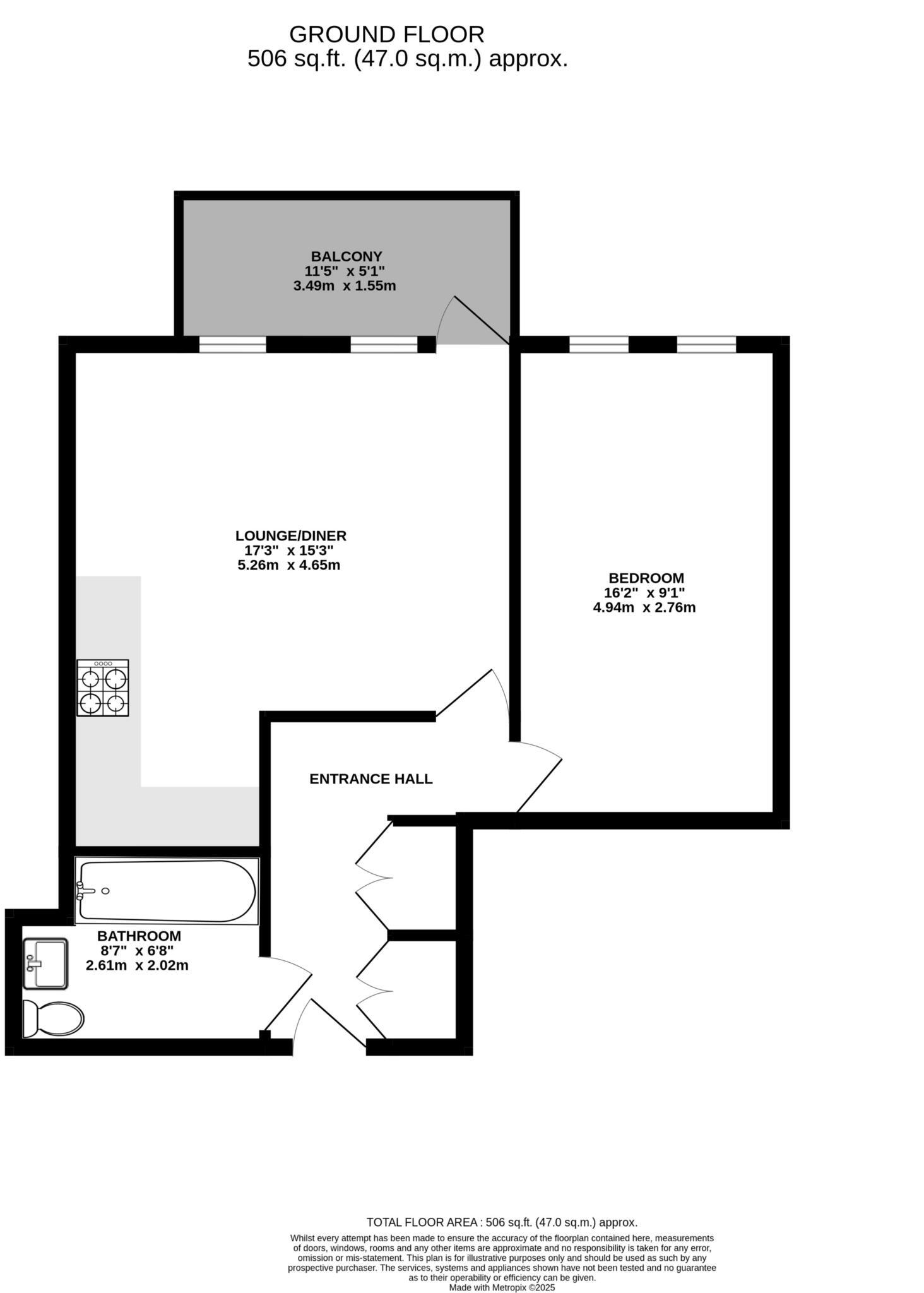
Large double bedroom with space for triple wardrobe
Open-plan living area with integrated kitchen and balcony access
Private balcony overlooking courtyard; good natural light
Underground garage parking and lift to all floors
245-year lease remaining; zero ground rent
Service charge £1,644 per year (includes buildings insurance)
Built 2020; NHBC guarantee has around three years left
Area has high crime and significant local deprivation
Move straight into this well-presented one-bedroom apartment in Bowerman Court, built in 2020 and newly renovated. The open-plan living/kitchen faces large windows and a private balcony, creating a bright living space ideal for a commuter or first-time buyer seeking low-maintenance modern living. Underground garage parking and lift access add practical convenience.
The flat benefits from a long lease of 245 years and NHBC New Build Guarantee (approximately three years remaining). Service charge is £1,644 per year (includes buildings insurance); there is zero ground rent. Heating is by electric boiler and radiators; main fuel is electricity.
Location is highly convenient — minutes from Carpenders Park station, local shops, supermarket, gym and leisure facilities. However, the property sits in an area with higher crime rates and significant local deprivation, which should be considered by buyers and reflected in local market values.
Overall this is a low-maintenance, contemporary apartment that suits a first-time buyer or investor wanting straightforward rental appeal. Buyers should verify lease and service charge details with their solicitor and note the short remaining period on the NHBC warranty.
2 bedroom flat for sale in Blackwell Place, South Oxhey, WD19 — £398,750 • 2 bed • 2 bath • 810 ft²
1 bedroom flat for sale in Pearkes House, Fairfield Avenue, South Oxhey, WD19 — £269,500 • 1 bed • 1 bath • 517 ft²
1 bedroom flat for sale in Pearkes House, Fairfield Avenue, South Oxhey, WD19 — £257,500 • 1 bed • 1 bath • 517 ft²
1 bedroom flat for sale in Oxhey Drive, Watford, WD19 — £230,000 • 1 bed • 1 bath • 484 ft²
1 bedroom flat for sale in Pearkes House, Fairfield Avenue, South Oxhey, WD19 — £295,000 • 1 bed • 1 bath • 517 ft²
2 bedroom flat for sale in Waddington House, South Oxhey, WD19 — £365,000 • 2 bed • 1 bath • 657 ft²










































