Affordable Lifetime Lease option for over-60s in sunny Southsea.
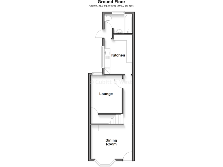
- Two bedrooms, approximately 689 sq ft
A compact Victorian terraced house in sunny Southsea, this two-bedroom freehold offers period bay windows, a small low-maintenance rear garden and straightforward room layouts across about 689 sq ft. The property is chain free and presents an opportunity for an over-60 buyer to access a Home for Life Lifetime Lease price significantly below the full market figure.
The Home for Life plan (for purchasers aged 60+) can reduce the purchase cost versus the full market price; a guide Lifetime Lease figure for this property is £152,500 compared with a market value of £230,000. The scheme allows buyers to purchase up to a 50% share to safeguard assets; actual price depends on age and circumstances and should be confirmed with Homewise or their online calculator.
The house retains original features but requires modernization throughout — expect decorator work, kitchen and bathroom updates and possible damp or mould in older parts. Construction is early 20th century with cavity walls assumed uninsulated, so improving insulation and updating heating controls could reduce running costs. Parking is on-street and the plot is small but private, with a shed and paved patio suited to low-effort outdoor use.
This property suits an over-60 buyer seeking an affordable entry into Southsea with immediate occupation potential, or an investor willing to modernise. Be aware the area records above-average crime and the house will benefit from targeted repairs and energy improvements before expecting premium resale or rental returns.
2 bedroom terraced house for sale in Sutherland Road, Southsea, Hampshire, PO4 — £155,500 • 2 bed • 1 bath • 518 ft²
2 bedroom terraced house for sale in Landguard Road, Eastney, Portsmouth, Hampshire, PO4 — £152,500 • 2 bed • 1 bath • 485 ft²
2 bedroom terraced house for sale in Goodwood Road, Southsea, Hampshire, PO5 — £172,000 • 2 bed • 1 bath • 765 ft²
2 bedroom ground floor flat for sale in Waverley Road, Southsea, Hampshire, PO5 — £109,500 • 2 bed • 1 bath • 408 ft²
2 bedroom semi-detached house for sale in Curzon Howe Road, Portsmouth, Hampshire, PO1 — £254,500 • 2 bed • 1 bath • 926 ft²
2 bedroom terraced house for sale in Stapleton Road, Portsmouth, Hampshire, PO3 — £152,500 • 2 bed • 1 bath • 894 ft²














































