Spacious family living with garage, garden and beach nearby..
Built in 2020 — modern construction and mains gas central heating
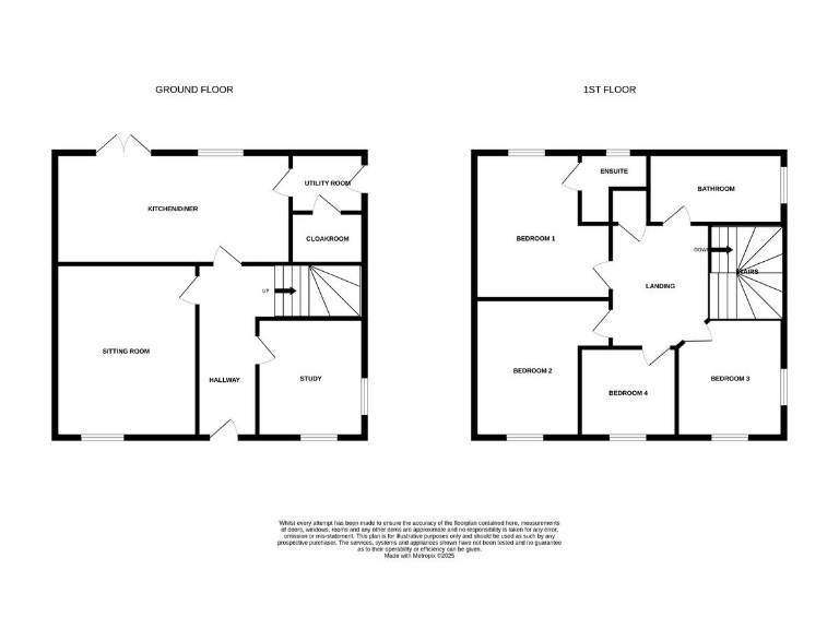
This modern detached house, built in 2020, offers roomy family living across two floors with four good bedrooms and three bathrooms. The master benefits from an en-suite and upstairs bedrooms are well proportioned, making daily routines straightforward for families.
The ground floor centres on an open-plan kitchen/diner with French doors onto an enclosed rear garden — a secure, sunny space for children and pets. A separate study provides useful home-working space or could be used as a ground-floor bedroom if needed. A utility room, cloakroom and additional reception room (second lounge or playroom) add flexibility.
Practical features include a garage, driveway parking and fast broadband, with easy access to local shops, several good schools, James Paget Hospital and Gorleston Beach. The property has mains gas central heating and a moderate council tax band.
Notes and considerations: the area records average crime and mobile signal, and the home follows a traditional internal layout that may suit buyers seeking conventional family spaces rather than an ultra-open-plan aesthetic. Overall this is a comfortable, low-risk family home in a popular town-fringe location.
4 bedroom detached house for sale in Grayling Close, Bradwell, NR31 — £400,000 • 4 bed • 2 bath • 1367 ft²
4 bedroom detached house for sale in Hogarth Close, Bradwell, NR31 — £312,500 • 4 bed • 2 bath • 1089 ft²
4 bedroom detached house for sale in Delph Road, Bradwell, NR31 — £360,000 • 4 bed • 2 bath • 1324 ft²
3 bedroom detached bungalow for sale in Darnell Close, Bradwell, Great Yarmouth, NR31 — £295,000 • 3 bed • 2 bath • 882 ft²
4 bedroom detached house for sale in Marguerite Close, Bradwell, Great Yarmouth, NR31 — £450,000 • 4 bed • 1 bath • 1378 ft²
5 bedroom detached house for sale in Howard's Way, Bradwell, NR31 — £450,000 • 5 bed • 2 bath


























































































