Well-appointed modern house close to beach and good schools.
Five bedrooms with ensuite to master
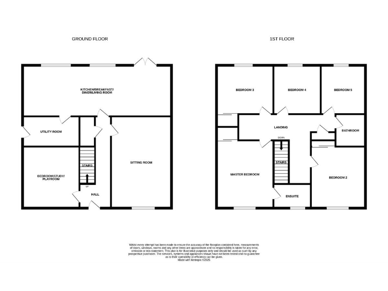
This well-presented five-bedroom detached house sits on a popular modern estate in Bradwell, backing onto a pleasant communal green. The layout suits family life with an open-plan kitchen/dining/family room that opens through French doors to an enclosed, low-maintenance rear garden, plus a separate front lounge and ground-floor fifth bedroom suitable as a study or playroom.
The principal bedroom includes an ensuite, and four further bedrooms share a family bathroom on the first floor. Practical features include a double garage, double-width driveway, utility room, downstairs cloakroom and gas central heating. High-quality fixtures and sealed-unit double glazing are fitted throughout.
Location is a key strength: close to Gorleston beach, nearby hospital facilities and a range of primary and secondary schools (several rated Good or Outstanding). Broadband and mobile signal are strong, and the property sits in a very affluent area with no reported flood risk.
Notable points to consider are the above-average council tax band and average local crime level. The house is presented in good order but, as with any modern family home, buyers should check specifics such as service histories and any estate management arrangements during survey and pre-contract enquiries.
4 bedroom detached house for sale in Delph Road, Bradwell, NR31 — £360,000 • 4 bed • 2 bath • 1324 ft²
4 bedroom detached house for sale in Mace Road, Bradwell, NR31 — £360,000 • 4 bed • 3 bath • 1195 ft²
4 bedroom detached house for sale in Marguerite Close, Bradwell, Great Yarmouth, NR31 — £450,000 • 4 bed • 1 bath • 1378 ft²
3 bedroom end of terrace house for sale in Royal Sovereign Crescent, Bradwell, NR31 — £250,000 • 3 bed • 2 bath • 851 ft²
4 bedroom detached house for sale in Colby Drive, Bradwell, NR31 — £380,000 • 4 bed • 2 bath • 1344 ft²
4 bedroom detached house for sale in Cotman Drive, Bradwell, NR31 — £450,000 • 4 bed • 2 bath • 1512 ft²






































































































