Low-maintenance garden, two parking spaces and easy access to Oxford transport links.
Two good-sized bedrooms and one family bathroom
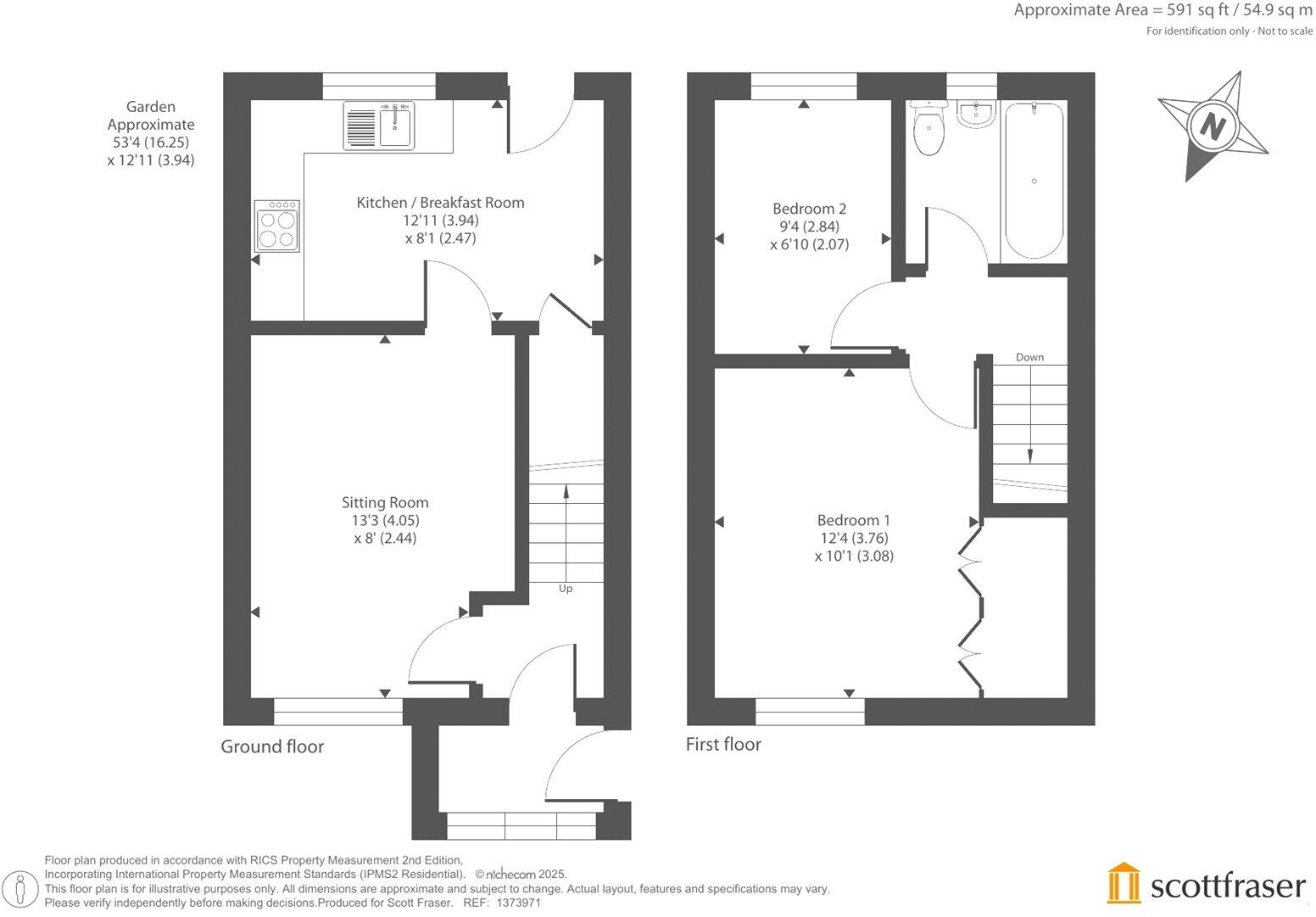
A well-presented two-bedroom semi detached home in Botley, ideal for first-time buyers or buy-to-let investors seeking a low‑maintenance property close to Oxford. The house offers a spacious sitting room, kitchen/breakfast room and a private south-facing garden laid out for ease of upkeep. Off-street driveway parking for two is a rare convenience in this area.
The property is freehold, built in the 1980s, and benefits from gas central heating, double glazing and a sensible layout across approximately 591 sq ft. Transport links are strong: regular buses nearby, quick access to the A420 and A34, and Oxford rail station about 2.25 miles away — good for commuters.
Practical considerations: the house is modest in overall size and has a single family bathroom, so storage and room sizes are limited compared with larger family homes. Local schools include both Good-rated and lower-rated options; Botley Primary is in the catchment but currently requires improvement. There is no flood risk and local crime levels are low.
This home suits someone seeking an affordable entry into the area or an uncomplicated rental. It offers straightforward maintenance, parking and a sunny rear garden while presenting scope for cosmetic updating to personalise the space.
2 bedroom terraced house for sale in Bushy Close, Botley, OX2 — £340,000 • 2 bed • 2 bath • 541 ft²
2 bedroom semi-detached house for sale in Pottle Close, Botley, OX2 — £350,000 • 2 bed • 1 bath • 482 ft²
3 bedroom semi-detached house for sale in Botley, Oxford, OX2 — £475,000 • 3 bed • 1 bath • 656 ft²
4 bedroom detached house for sale in Bushy Close, Oxford, OX2 — £525,000 • 4 bed • 2 bath • 1157 ft²
3 bedroom semi-detached house for sale in Lime Road, Oxford, OX2 — £495,000 • 3 bed • 1 bath • 1012 ft²
3 bedroom semi-detached house for sale in Botley, Oxford, OX2 — £450,000 • 3 bed • 1 bath • 894 ft²










































