Spacious two‑bed Victorian conversion with communal gardens and one parking space..
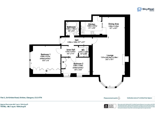
Ground‑floor Victorian conversion with high ceilings and large rooms
Generous lounge with three‑section bay window and traditional fireplace
Two bedrooms; main bathroom plus separate W.C.
Modern fitted kitchen and gas central heating
Extensive communal gardens reflecting mansion house origins
Shared driveway with one off‑street parking space only
EPC D and Council Tax Band F — running costs likely high
Located in an area with higher deprivation indicators
Set within an impressive late‑Victorian villa remodelled circa 1900, this ground‑floor two‑bedroom conversion combines generous room proportions and period character with modern convenience. High ceilings, a three‑section bay window and a substantial fireplace create a spacious, light-filled lounge opening to a dining area and fitted kitchen.
The apartment benefits from two bathrooms (main bathroom plus separate W.C.), gas central heating and a useful side entrance via a stone archway into a small covered courtyard. Residents share extensive, well‑maintained communal gardens that reflect the building’s original mansion status, plus a shared driveway providing one off‑street parking space.
Practical points to note: the property sits in an area with higher deprivation indicators and carries an EPC rating of D and a high council tax band (F). The garden and driveway are communal, and parking is limited to one resident space. The flat’s generous size and period features offer strong potential for improvement or reconfiguration to suit family living or rental investment.
Overall, this freehold ground‑floor apartment will appeal to buyers seeking character, space and garden access in a desirable Victorian building, while accepting the communal arrangements and running costs associated with the location.
2 bedroom apartment for sale in Kirklee Gardens, Kirklee, Glasgow, G12 — £349,000 • 2 bed • 1 bath • 1130 ft²
2 bedroom apartment for sale in Kirklee Road, Kirklee, Glasgow, G12 — £525,000 • 2 bed • 2 bath • 1565 ft²
2 bedroom flat for sale in Kirklee Quadrant, Kelvinside, G12 — £285,000 • 2 bed • 1 bath • 1421 ft²
2 bedroom apartment for sale in Cleveden Drive, Kelvinside, Glasgow, G12 — £259,000 • 2 bed • 1 bath • 814 ft²
2 bedroom apartment for sale in Park Terrace, Park, Glasgow, G3 — £535,000 • 2 bed • 2 bath • 1689 ft²
2 bedroom apartment for sale in Bowmont Gardens, Dowanhill, Glasgow, G12 — £425,000 • 2 bed • 2 bath • 1224 ft²


























































































































