Large Victorian conversion with private parking and communal gardens, close to Botanic Gardens.
Approximately 1,130 sq ft of loft-style period living
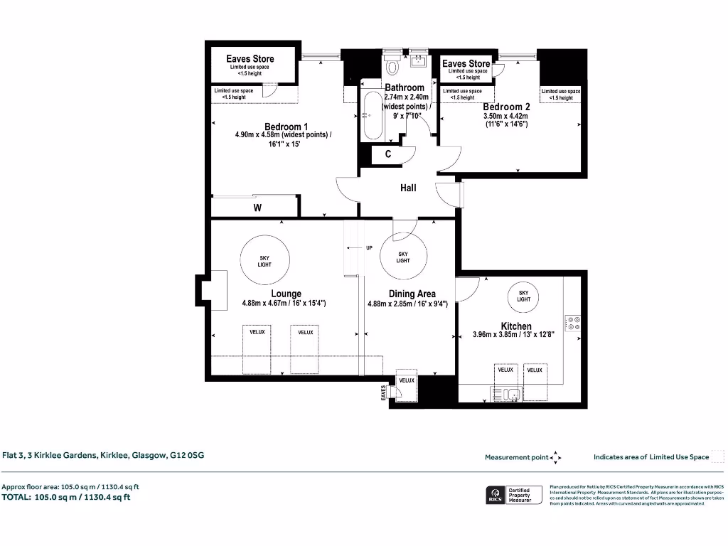
A rare, large two-bedroom second-floor conversion in a handsome blonde sandstone terrace, this flat combines Victorian character with contemporary loft-style living. At about 1,130 sq ft the accommodation feels unusually spacious for the area, with high ceilings, split-level lounge/dining, three Velux skylights and two triple-glazed cupola windows that flood the space with light.
Practical benefits are clear: the building was fully re-roofed in 2023, the flat is freehold, gas central heating is installed, and a private off-street parking space sits behind an electric entrance gate. There is also plentiful storage with a large shared store and generous communal cellar, plus a pleasant communal garden overlooking mature trees.
This apartment will suit buyers who value West End character and space — professionals, couples and downsizers looking for a substantial, well-presented home within easy reach of the Botanic Gardens, Byres Road and Glasgow University. It is particularly attractive if you need private parking in a central location.
Buyers should note material considerations honestly: the property sits in a cosmopolitan student neighbourhood and the wider area is classified as deprived, which may influence long-term resale or rental dynamics. Council Tax is band F and therefore relatively expensive. The flat has one bathroom only and many principal spaces are part of a shared communal building, so communal upkeep and neighbourly standards are relevant factors.
2 bedroom flat for sale in Kirklee Quadrant, Kelvinside, G12 — £285,000 • 2 bed • 1 bath • 1421 ft²
2 bedroom apartment for sale in Kirklee Road, Kirklee, Glasgow, G12 — £359,000 • 2 bed • 2 bath • 954 ft²
2 bedroom apartment for sale in Park Terrace, Park, Glasgow, G3 — £535,000 • 2 bed • 2 bath • 1689 ft²
2 bedroom apartment for sale in Kirklee Road, Kirklee, Glasgow, G12 — £525,000 • 2 bed • 2 bath • 1565 ft²
2 bedroom flat for sale in North Woodside Road, Kelvinbridge, Glasgow, G20 6NN, G20 — £249,000 • 2 bed • 1 bath • 1023 ft²
4 bedroom apartment for sale in Kirklee Terrace, Kirklee, Glasgow, G12 — £575,000 • 4 bed • 2 bath • 2305 ft²










































































































































