Renovated four-bed with panoramic sea views and convenient village location.
4 bedrooms with master ensuite and sea views
Renovated and extended to a high standard throughout
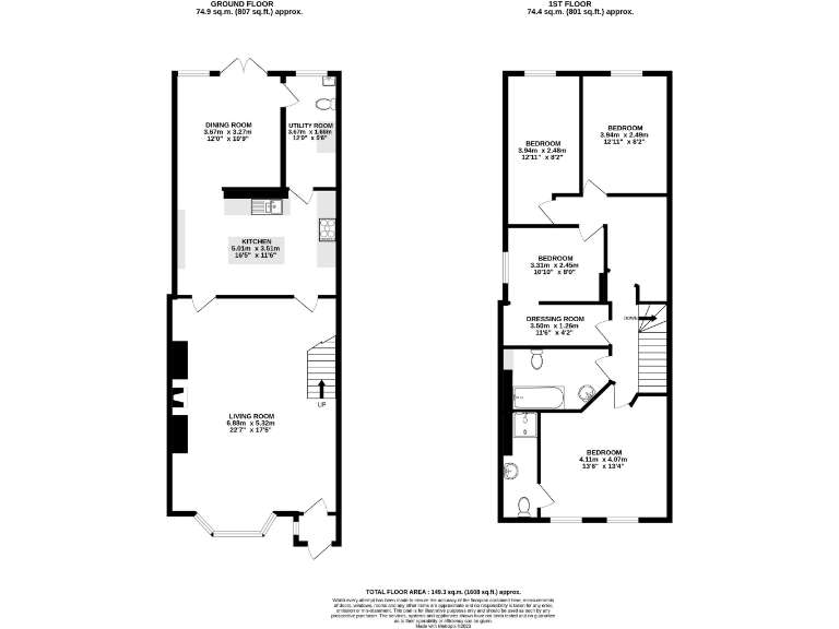
Open-plan kitchen/dining with adjacent utility and ground-floor WC
Sitting room with bay window, wood burner and coastal outlook
Raised sea-facing deck with storage beneath, two off-street parking spaces
Sunny enclosed rear garden with pedestrian gate to public footpath
Oil-fired central heating (oil tank on site) — not gas
Broadband speeds reported as slow; small plot size
Set on Tintagel Terrace in Port Isaac, this recently renovated four-bedroom house offers far-reaching sea views across to Tintagel Head. The living spaces are arranged over two floors and finished to a high standard, with an open-plan kitchen/dining area, a separate sitting room with a wood burner and a raised sea-facing deck for outdoor entertaining. Two off-street parking spaces and a sheltered rear garden add practical family conveniences.
The ground floor layout suits everyday family life: entrance porch, bay-fronted sitting room, open kitchen/diner with adjacent utility and WC. Upstairs, the principal bedroom enjoys sea views and an ensuite, joined by three further double bedrooms and a family bathroom. Oil-fired central heating and mains services are installed, and the accommodation totals around 1,600 sq ft.
This property will suit buyers seeking a comfortable main residence or a coastal second home who value views and immediate walkable access to village amenities including shops, pubs and cafés. Important practical points: the home runs on oil heating and broadband speeds are reported as slow, which may matter for remote working. The plot is relatively small, and the property is freehold with very low local crime and no flood risk.
Overall, Pen-Eglos is a well-presented, characterful family house with strong coastal appeal and sensible outdoor space. Buyers looking for a turn-key coastal home that prioritises views and village convenience will find it appealing; those needing high-speed internet or a larger garden should consider the listed limitations.
4 bedroom detached house for sale in 4 Tintagel Terrace, PL29 — £455,000 • 4 bed • 2 bath • 1505 ft²
3 bedroom semi-detached house for sale in Merlin's View, PL29 — £595,000 • 3 bed • 2 bath • 1078 ft²
4 bedroom semi-detached house for sale in Edgehill, PL29 — £675,000 • 4 bed • 2 bath • 1197 ft²
3 bedroom house for sale in 65 Fore Street, PL29 — £695,000 • 3 bed • 2 bath • 1761 ft²
3 bedroom terraced house for sale in 87 Fore Street, PL29 — £425,000 • 3 bed • 1 bath • 982 ft²
3 bedroom terraced house for sale in Varley View, Port Isaac, PL29 — £375,000 • 3 bed • 2 bath • 868 ft²


































































































